质朴材料诠释少即是多餐厅办公住宅多功能综合楼设计
该项目为位于阿尔斯特市中心的一块小型街角地块赋予了全新面貌。城市街角的建筑类型在其中也扮演着核心角色。相较于公共广场,街角更像是从交叉路口和相交线条中衍生出来的,是人们在不同地点间穿梭的基本特征。正因如此,在阿尔斯特这样的小镇环境中,这块小小的街角地块蕴含着巨大的潜力。在本次设计中,对这个街角进行了最大限度的利用。
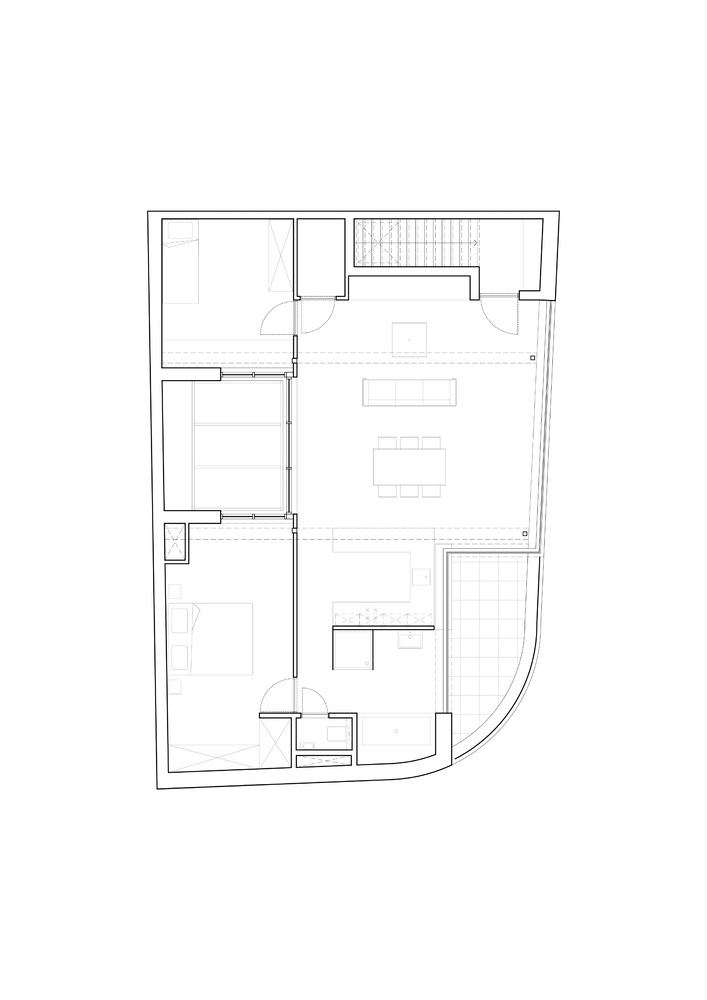
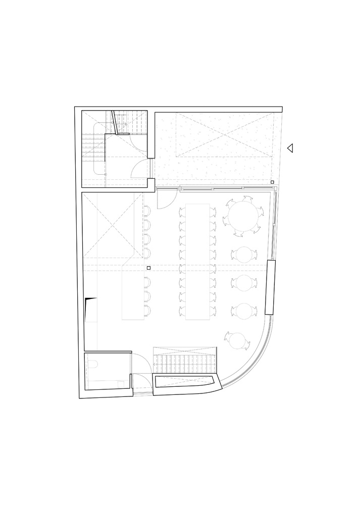
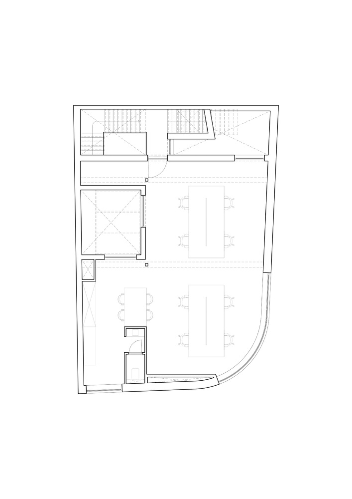
该项目由三个精简的实体堆叠而成,各个功能相互交织。有限的面积,加上广泛的功能规划以及各种(城市)建筑限制因素,使得设计和建造必须紧凑且高度实用。没有一平方米的空间被浪费。在狭小的面积内,精心组合出一个实用的布局,同时仍能保证足够的建筑品质。一个中央庭院 / 采光通道为所有楼层和公共楼梯间提供采光。采光、透明度以及各功能区之间的连接是设计的重点。
底层以及大部分地下楼层是名为 “Wally” 的餐厅。餐厅被设计成一个紧凑、开放的就餐和烹饪空间。窗户开口设置在就座高度,这样在不减少座位的情况下,外立面可以大面积打开。一层是一个多功能的共享办公空间。这个办公空间配有独立卫生间和小厨房,同样被设计成一个开放空间,可以俯瞰邻近的广场,并且与有顶的入口区域相连。最顶层是一套两居室公寓。
在设计中,以质朴且简洁的材料运用为核心。外墙使用了不同规格的西班牙砖。砖块色调的变化以及不同砌砖饰面的运用为设计增添了趣味性。承重砖墙和混凝土构件始终外露。毛坯结构即装饰。保留其所有的美感和瑕疵。为了与原始的建筑纹理相搭配,室内采用了木质装饰元素、色彩丰富的水磨石地板以及绿灰色的钢材装饰。通过专注于简单、质朴且经济实惠的材料,努力营造出一种少即是多的整体效果。毛坯结构的装饰不会显得过于粗糙。通过这些具体的设计选择,这座建筑完美地诠释了一个新的街角。它融入了周围建筑的风格,不张扬却依然引人注目。