隐藏在山海之间用悬挑扛住地中海阳光的别墅设计
“空中别墅”设计(Villa Air)是根植于突尼斯景观的当代建筑的纯粹表达。这座 1500 平方米的住宅坐落在莫尔内格(Morneg)一块两公顷的地块上,其落成是建筑形态与地形之间的一场沉思对话。场地以舒缓的坡度和开阔的视野为特色,最终以杰巴尔・埃尔萨斯(Jbal Errsas)山脉醒目的轮廓为顶点 —— 这片自然地平线构成了建筑叙事的基调。从项目伊始,其核心便围绕着一组二元对立展开:庄重与轻盈、稳固与悬浮之间的张力。这种矛盾感巧妙地融入别墅的命名中,成为整个设计的结构主线。
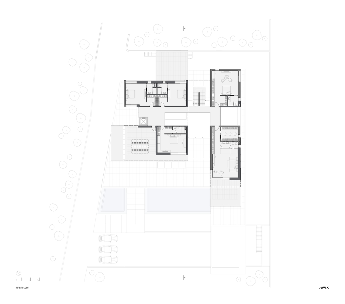
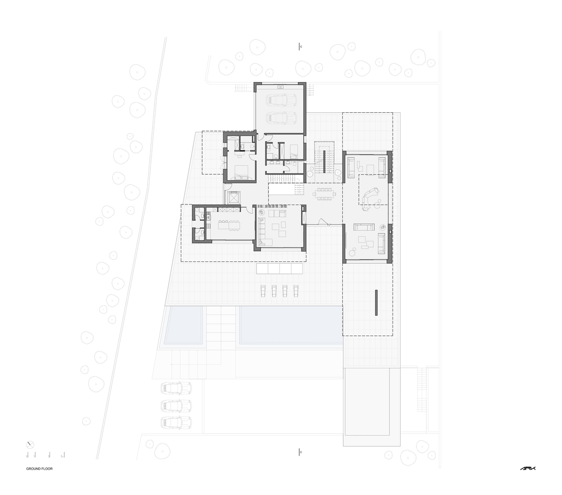
住宅分布于三层,以一系列水平层叠的结构呈现,其间穿插着醒目的悬挑设计。这些悬挑结构仅 45 厘米厚,却异常纤细,既展现了结构上的大胆创新,又呼应了环境需求 —— 它们投下精准的阴影线条,调和了地中海的强烈日光。
建筑并未试图凌驾于地形之上,而是选择与之呼应。别墅以克制的方式与土地互动,让自然轮廓引导其形态。土色调的质感饰面与地面形成色彩上的延续,而建筑体量沿斜坡层叠而下,仿佛是从地质中自然生长而出,而非人为强加于环境的产物。主立面浓缩了项目的核心理念:经过精确设计的开窗将景观框选为一系列动态的生活画卷。每个立面都与其朝向相呼应,营造出既沉浸又具沉思性的空间体验。在此,建筑不再是一道边界,而是一扇观察世界的窗口。
材料的运用刻意追求简约。纯净的白色体量捕捉着地中海变幻的光线,使表面在每日的光影交织中充满生机。石灰华和木材带来触觉上的温暖,而混凝土构件 —— 巧妙地融入沙色颜料 —— 则让建筑扎根于环境,强化了其材料归属感。室内空间布局注重连续性与流动性。交通动线并非单纯的连接通道,而是经过精心设计的过渡空间。双层通高的体量将日光引入建筑核心,垂直路径则化作高架长廊,为周围景观提供不断变化的视角。
建筑探索着一个核心悖论:私密与开放、封闭与暴露的调和。这种张力通过精心设计的过渡层次得以化解 —— 室内空间逐渐融入露台和开放平台,模糊了内外的界限。两座无边际泳池将建筑的几何线条延伸至地平线,强化了轻盈感与空间悬浮感。水与天在无声的对话中交融,实现了项目的愿景:不仅存在于景观之中,更与之为共生。
空中别墅是特定场地的地中海现代主义的见证 —— 它注重简洁、精准与感官深度。它不仅是一座功能性住宅,更唤起了一种诗意的居住状态:在这里,形式、材质与感知在静谧的共鸣中交汇。