混凝土奇迹与虚拟影像的完美协奏光影交织的梦幻影院设计
该电影院设计是在巴黎第 19 区的拉维莱特公园内,由弗朗索瓦丝・雷诺领导的建筑事务所 loci anima 于 2024 年 12 月完成了对拉吉奥德(La Géode)及其半球形电影院的翻新工程,该建筑最初由阿德里安・范西尔伯设计,业主为法国国立科学研究中心(Universcience),运营商为百代电影院(Pathé Cinémas)。此前,IMAX 屏幕的观影体验已经很沉浸,而现在整个电影院都被改造成了全方位沉浸式体验空间。甚至在进入影院之前,二向色性的外立面就将游客引入一个梦幻般的境界,自然光仿佛透过格子天花板洒下。
这种外立面呼应了当代彩色玻璃的美学,光影交错。其质朴的几何设计营造出一种整体的彩色玻璃效果,透明度、色彩与建筑的严谨性完美融合,这是对电影艺术本身的致敬。loci anima 将此次翻新设计成了一种多感官体验,融合了视觉和味觉。从糖果售卖区开始,建筑与幻想相互交融,将游客带入一个美妙的梦幻世界,随后引领他们进入一个光影摇曳的巨大圆形空间。
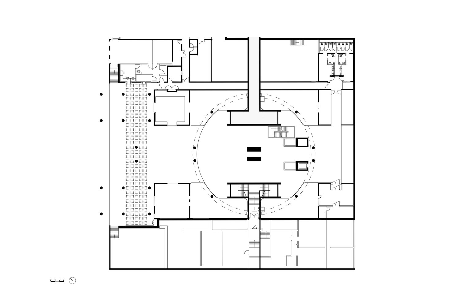
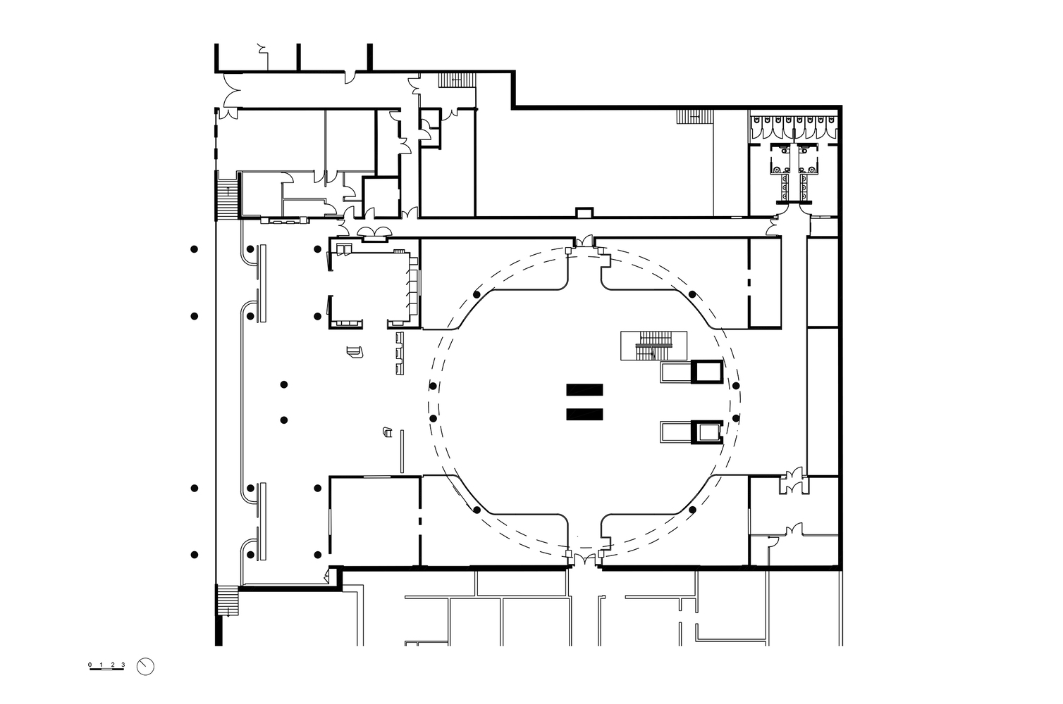
拉吉奥德的内部是 1985 年由阿德里安・范西尔伯打造的建筑和技术奇迹,其特点是倒置的蘑菇形混凝土结构,仅由一个 4 平方米的中央支柱支撑。为了放置 IMAX 投影仪而增设的平台和填充大厅坑洞的另一个平台,都必须在不破坏这种看似反重力的微妙结构平衡的前提下完成。loci anima 通过去除所有传统电影院元素,进一步提升了这座野兽派杰作(从精神层面来说,它就像一座混凝土大教堂)的魅力。实际上,观影体验从踏入影院的那一刻就已经开始。
墙壁上 360° 的投影鼓励游客探索这个空间,建筑遗产在灯光的映照下再次焕发光彩。两部全景电梯和一座 11 米长的悬浮楼梯贯穿整个建筑,将大厅与礼堂入口相连。门厅让游客能够近距离观察球形结构,这可不是胆小者能轻易尝试的。礼堂现在配备了一块新的 1000 平方米的半球形屏幕,专为新型 4K 激光投影仪设计,并搭配 IMAX 6.0 音响系统。
座位数量从 400 个减少到 286 个定制座椅,这些座椅有六种不同的倾斜角度,以提升观众的舒适度。在影片放映前,游客还能通过穹顶进行拉维莱特公园的虚拟游览,此时的测地穹顶就像一扇通往外界的窗户,这是为丰富游览体验而设计的最后一个梦幻环节。拉吉奥德的内部翻新实现了结构材料与虚拟图像的完美融合,将视频映射和空间音效融入其中,直到观众回归现实。