混凝土裸出城市肌理木材坦然对话山林咖啡馆工作室兼住宅设计
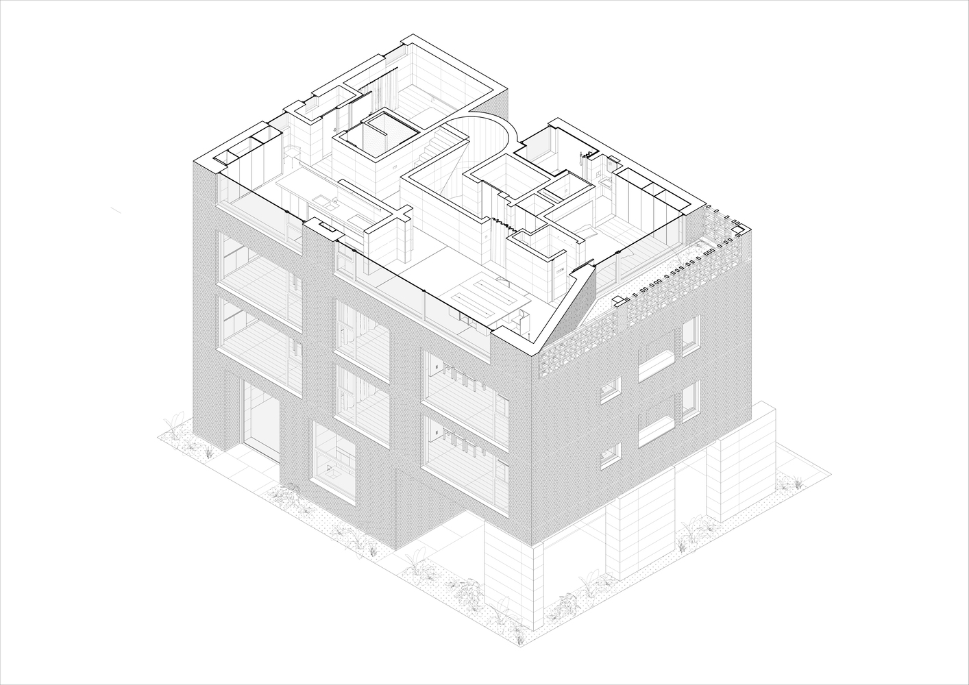
Raw House 是一座位于韩国首尔东部的咖啡馆兼住宅工作室设计开发项目,旨在与自然和城市环境和谐共生。该项目包含一家咖啡馆、公寓以及一间兼作办公空间的顶层阁楼。其南立面将周边茂密植被的开阔景致框入视野,将自然引入室内;而北立面则采用更为内敛的设计,形成与街道的缓冲。这种对比凸显了项目的构造设计,大胆的材料运用与简洁的线条构建出强烈的建筑存在感,平衡了开放性与私密性。建筑师撰写的设计纲要强调,要打造耐用的建筑结构,优先考虑空间清晰度与居住体验,而非市场预期或视觉堆砌。

在这个现实模糊且刺激过载的时代,人们日益被迫表现或伪装,该项目提供了一处静修之所 —— 一个让人能感受真实与自在的家。为实现这一目标,材料保持原始状态。混凝土、石材和木材以本真面貌呈现,不为效果而修饰,只为营造静谧而诚实的存在感。没有任何覆盖或伪装,建筑不刻意造作,只是纯粹地提供支撑。
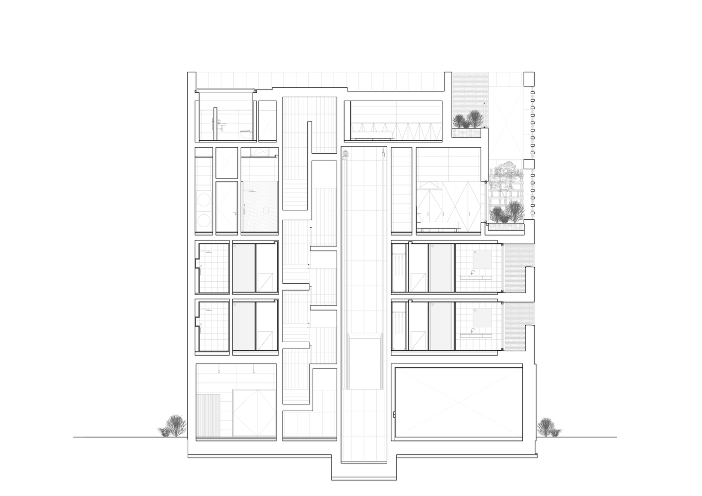
设计不仅关注材料本身,还注重其布局。每一面墙和天花板都经过精确设计与规划:从裸露混凝土中的欧式模板线条,到胶合板与石材的分区,再到楼板布局和木地板朝向。天花板与地面采用统一网格,连接各空间,使墙壁和家具如同置于更大场域中的独立体。在可能的情况下,尽量减少接缝,让石材和木材表面呈现为整体块状而非拼接板,为空间带来统一与连续的质感。Raw House 的理念并非做更多,而是以更审慎的态度做更少,创造一个坚实、真切且极具人性温度的空间。
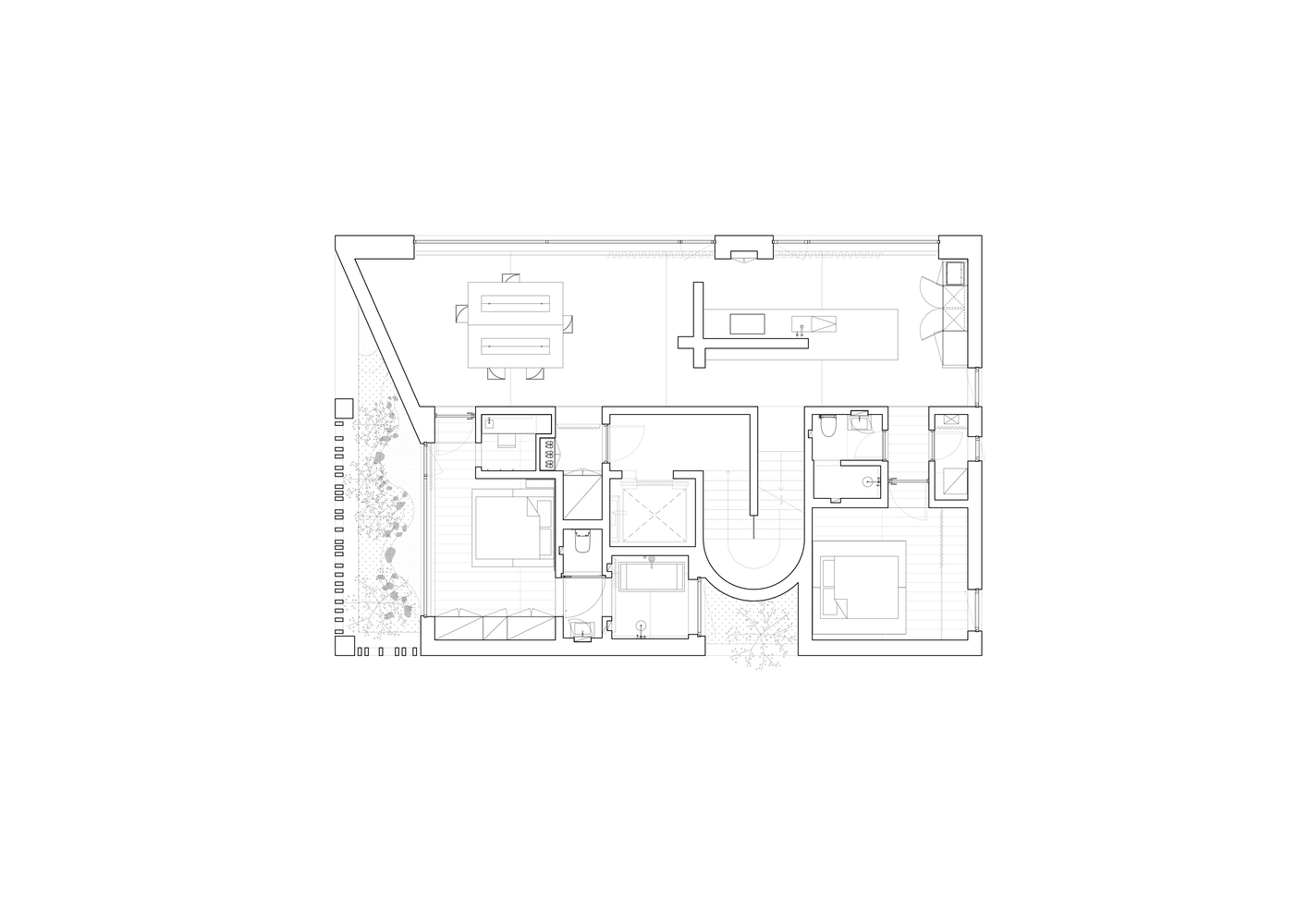
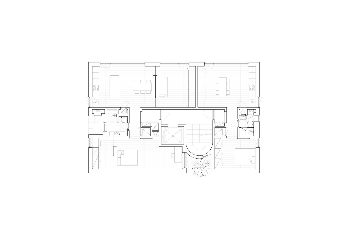
Raw House 重新思考了在高密度城市环境中,建筑如何提供静谧、专注且与自然相连的体验,同时避免孤立感或视觉杂乱。它挑战了 “更多房间、更高密度或装饰性饰面定义价值” 的观念,转而将居住品质和感官清晰度放在首位。一项巧妙的创新在于对每平方米空间的有意利用:半圆形的楼梯平台减少了角落闲置空间,成为面向街道的视觉标志,同时在北侧开设洞口,框取建筑自身的几何形态,在不影响隐私的前提下柔和引入光线。建筑的南向布局主导了整体空间规划:起居区域充分享受阳光照射和山林景观,而私密房间则位于北侧,隔绝噪音与强光。
天花板省去直接照明,避免视觉干扰。取而代之的是间接灯光从天花板交界处柔和地洒向墙面,营造出舒适放松的氛围。这也让居住者能自由选择灯具和家具,个性化布置空间。Raw House 的创新并非技术层面,而是空间与体验层面的。它将建筑简化至本质,同时增强用户自主性和情感共鸣,展示了设计如何以静谧精准的方式回应复杂需求,创造一个让人放慢脚步、感受安稳并塑造自我生活方式的场所。
Raw House 为更优质的城市生活提供了一个小巧却贴心的范例。它通过朝向设计、材料克制和空间静谧,促进环境适应性和用户福祉。被动式策略定义了空间布局:公共起居区和厨房朝南,充分利用日光和季节性温暖;卧室位于北侧,避免阳光直射,有助于提升睡眠质量并降低制冷需求。建筑的混凝土结构提供热质量,白天吸收热量,夜间释放,同时帮助调节室内湿度。
照明设计精心考量,以支持休息和认知舒适。不同于天花板灯具,隐蔽的间接照明从天花板边缘柔和洒落,柔化空间氛围,促进放松,尤其在夜晚营造出视觉宁静且有利于生理健康的环境。尽管使用了胶合板,但仅选择性应用,并与钢筋混凝土和石材等更耐用材料结合。表面处理简洁,减少更换、涂覆或维护需求。内置元素保持最少,以减少材料浪费,并允许随时间推移进行个性化改造。
这并非绿色技术的展示品,而是一座拥抱 “适足性、长寿命和适应性” 的静谧耐用建筑。Raw House 的价值在于其审慎的设计理念,它表明,设计中细微而精准的选择能切实支持地球与居住者的福祉。