陶土瓦偷偷圈住一片绿这栋楼让自然成了主角的工作室设计
Jul 22 , 2025 |
Views :
837
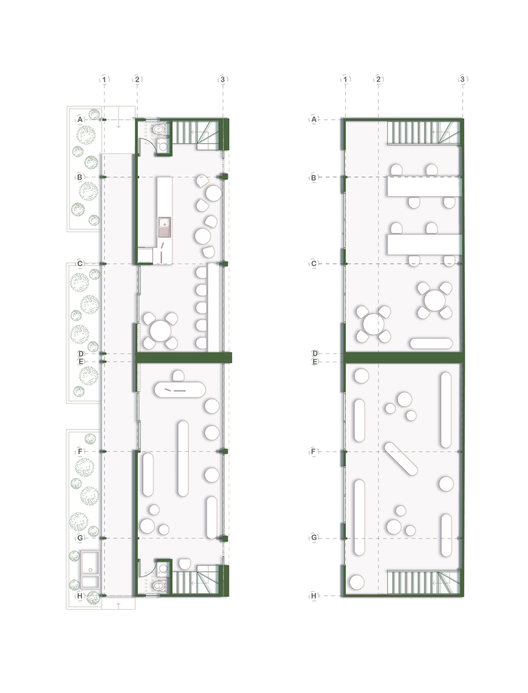
该艺术工作室兼商店设计在昆巴亚(Cumbayá)的核心地带,坐落着一栋名为 “Bloque Este(东街区)” 的建筑,它致力于重新定义建筑与自然环境之间的关系。该项目包含两个商业空间,并将一面长长的空白墙体改造为全新的功能性立面。
“Bloque Este” 的选址颇具策略性,位于一面旧围墙与 “Espacio Versátil(多功能空间)” 同样有着悠久历史的中央花园之间。这栋建筑刻意避免过于醒目,力求与周边环境和谐相融,将那棵高大的鳄梨树及其周边花园置于核心地位。功能性立面同时向街道与花园延伸,在两个空间之间搭建起视觉对话的桥梁。
在这条充斥着空白立面与硬质材料的街道上,“Bloque Este” 通过近乎通透的一层设计,构建起花园与街道之间的视觉连接。以往行人眼中只有沥青路面,如今却能欣赏到自然赋予的丰富景致。我们在现有围墙上开凿出展示空间和临街入口,并将隔墙与花园对齐,以确保视觉联系的连贯性与吸引力。
该建筑以地基板为基础,采用简约的木质框架与干砌砖石框架系统。陶土瓦(瓷砖)制成的外部饰面,以及对部分围墙的拆除处理,凸显了设计的简洁性与功能性。建筑以低调的姿态呈现,让自然成为绝对的主角。
“Bloque Este” 不仅丰富了昆巴亚的城市景观,还在人工建筑环境与自然之间架起了桥梁。