海是背景钢琴是主角悬崖度假别墅设计的夏日团圆剧场
Jul 22 , 2025 |
Views :
524
这栋位于哈韦阿(Jávea)的壮观夏季海边度假别墅设计面积达 572 平方米,设有 6 间卧室和宽敞的开放式家庭聚会区域,是西班牙白色海岸(Costa Blanca)最引人注目的项目之一。
由于专为夏季设计,户外空间成为项目的核心。别墅坐落在悬崖之上,为了进一步凸显周边的绝美景观,设计中加入了一座无边际泳池。这一住宅及社区项目由 inHAUS 打造,配套设施从休闲区到匹克球球场一应俱全。
这栋位于哈韦阿的专属住宅完全为客户量身定制。客户希望建造一座夏季居所,让居住在世界各地的家人得以团聚,因此住宅的所有空间都以家庭聚会为设计核心。
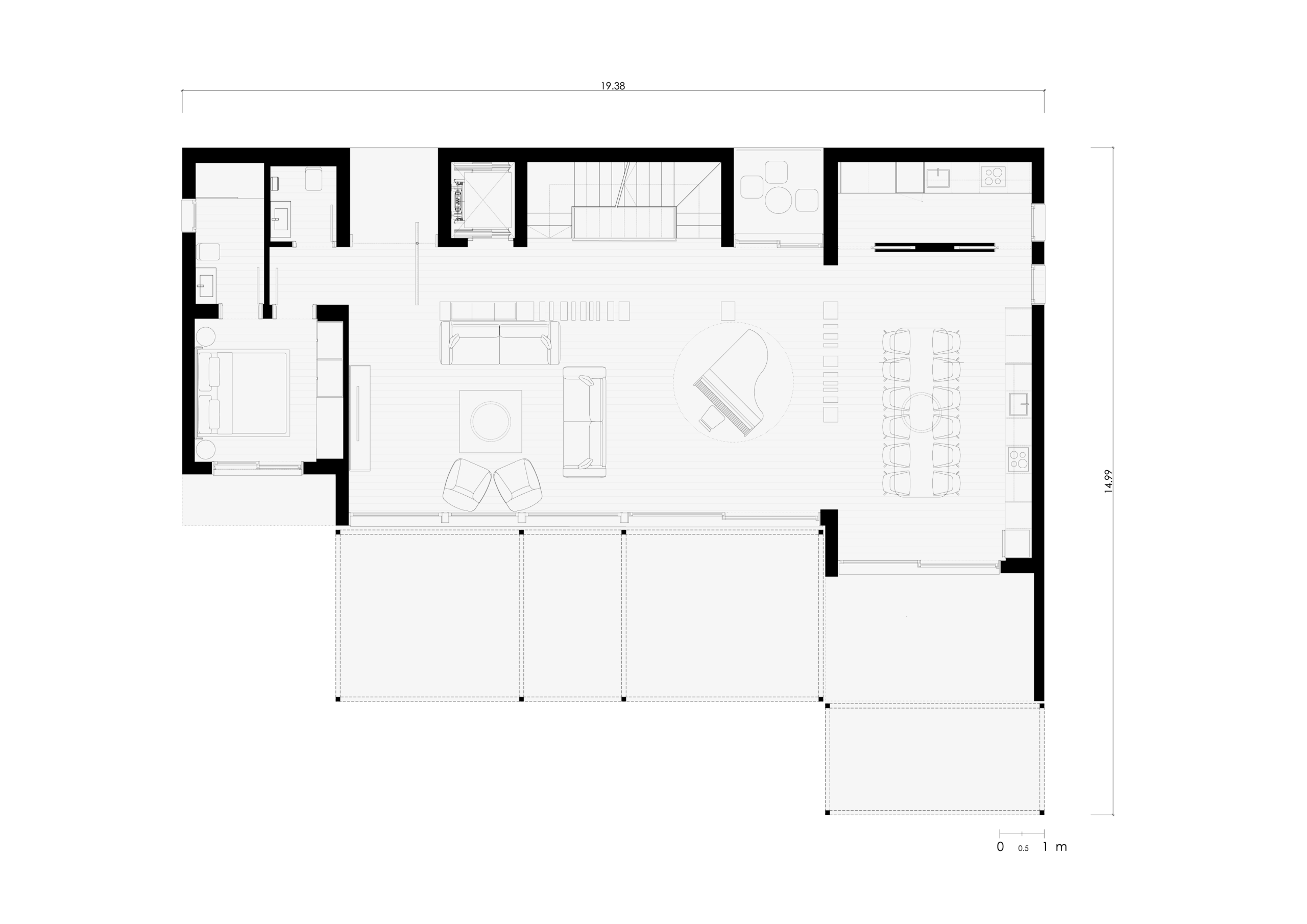
室内的开放式空间处处彰显着家庭的个性,而位于住宅中心的钢琴则是核心亮点。
这是一栋设计独特的住宅,建筑细节精雕细琢。纯粹的线条、精致的建筑细节与壮观的景致,让这栋别墅成为宜居的梦想之地。