原野里的梯田光影和剧场灵感半露天的农场有机餐厅设计
Set n Rise 是一家半露天亚洲烧烤有机餐厅,其设计旨在体现并彰显巴厘岛独特的梯田景观。餐厅位于佩雷雷南(Pererenan)—— 一个宁静低调的社区,距离热闹的苍古(Canggu)地区仅几分钟路程。该项目的灵感源自巴厘岛传统的 “terasering” 水稻梯田系统。
餐厅所在场地狭长且带有坡度,从前端到后端有 5 米的高差。建筑形态经过精心设计,顺应场地的自然轮廓而生。它没有采用突兀的单一造型,而是顺着地形逐渐向下延伸,形成的空间序列与周边梯田的层叠特质相呼应。
建筑的三角形平面朝东和朝南方向敞开,既能最大限度地引入自然光,又能将梯田景观尽收眼底。这样的朝向设计确保了建筑几乎每个角落都能与户外保持紧密的视觉联系,强化了室内空间与自然的无缝衔接。
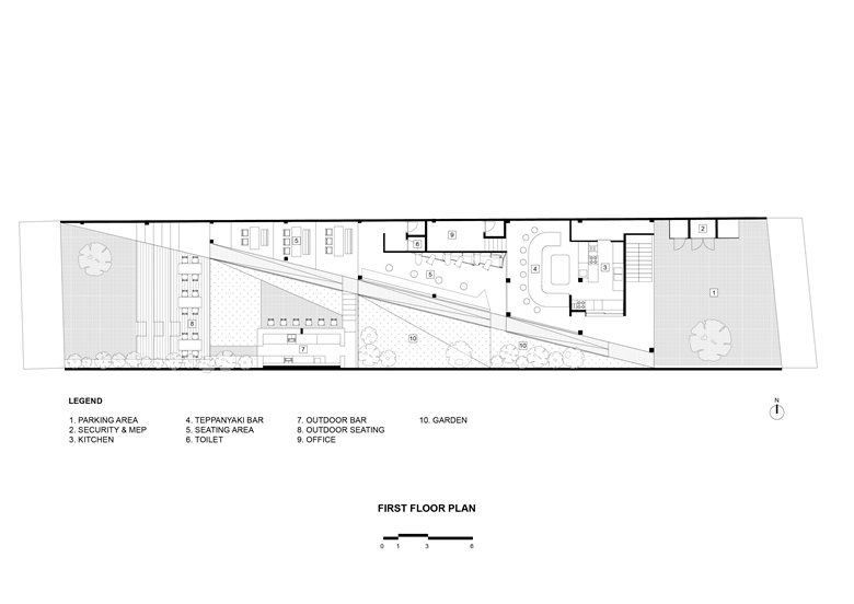
该项目在紧凑的场地内平衡了餐饮与零售功能 —— 一层为餐厅,上层为时尚精品店。餐厅内部的用餐区分布在四个错落有致的平台上,每个平台都与场地的自然地形相契合。一条中央坡道作为主要的交通动线,让客人能够在空间中流畅穿行,同时确保各楼层都易于到达。
每个平台都能带来独特的空间体验:
平台 1(街道层):设有烧烤区和主厨房。吧台台面采用木材基底浇筑树脂制成,下方是带有纹理的混凝土基座 —— 由此奠定了充满质感的自然材质基调。
平台 2:提供多样化的座位选择,包括悬浮混凝土长凳和嵌入式沙发,服务区后方还设有卫生间。
平台 3:配备标准四人餐桌,紧邻户外吧台和 DJ 台 —— 专为社交聚会或晚间活动设计。
平台 4(最低层):作为过渡空间,通往花园和户外活动区。其尽头是梯田式圆形剧场,让客人能最贴近稻田。
花园延续了建筑的三角形几何形态,将室内的空间节奏延伸至景观之中。它既是郁郁葱葱的热带背景,也是带有阶梯式座椅的功能性活动空间。从这一最低处,客人能与稻田平视,让用餐体验更深入地融入场地的生态环境。
项目的材质选择始终围绕本地化、可持续性和感官体验三大原则。各平台的地面采用着色水泥铺设,粗糙纹理的混凝土与本地木材搭配,在厚重感与温暖感之间形成富有质感的对话 —— 这种粗犷与精致的表面对比,与周边景观的纹理相得益彰。
建筑立面包裹着水平木质鳍片 —— 灵感源自从高空俯瞰时水稻梯田的等高线。这些木条既能起到被动遮阳和防雨的作用,又能让光线和微风渗透进来,在巴厘岛的热带气候中提升了建筑的环境适应性。木质鳍片柔化了三角形建筑的体量感,提供了统一的纹理;在起到防护作用的同时,又保持了视觉通透性,让室内与外界始终相连。
Set n Rise 对环境的回应不仅体现在形式和材质上,更蕴含在精神内核中。它顺应场地的自然坡度,向周边景观敞开怀抱,将传统空间逻辑融入现代功能之中。最终呈现出的,是一种层次丰富、沉浸式的用餐体验 —— 既扎根于土地,又拥有开阔的视野。该项目为巴厘岛建筑领域的发展趋势注入了新的活力:在巴厘岛,越来越多的建筑尝试打造植根于本土的现代空间,让气候、文化与社区在具有场地回应性的设计中实现交融。