12 米方盒子藏着院子团聚魔法的红砖平房设计
Jul 23 , 2025 |
Views :
930
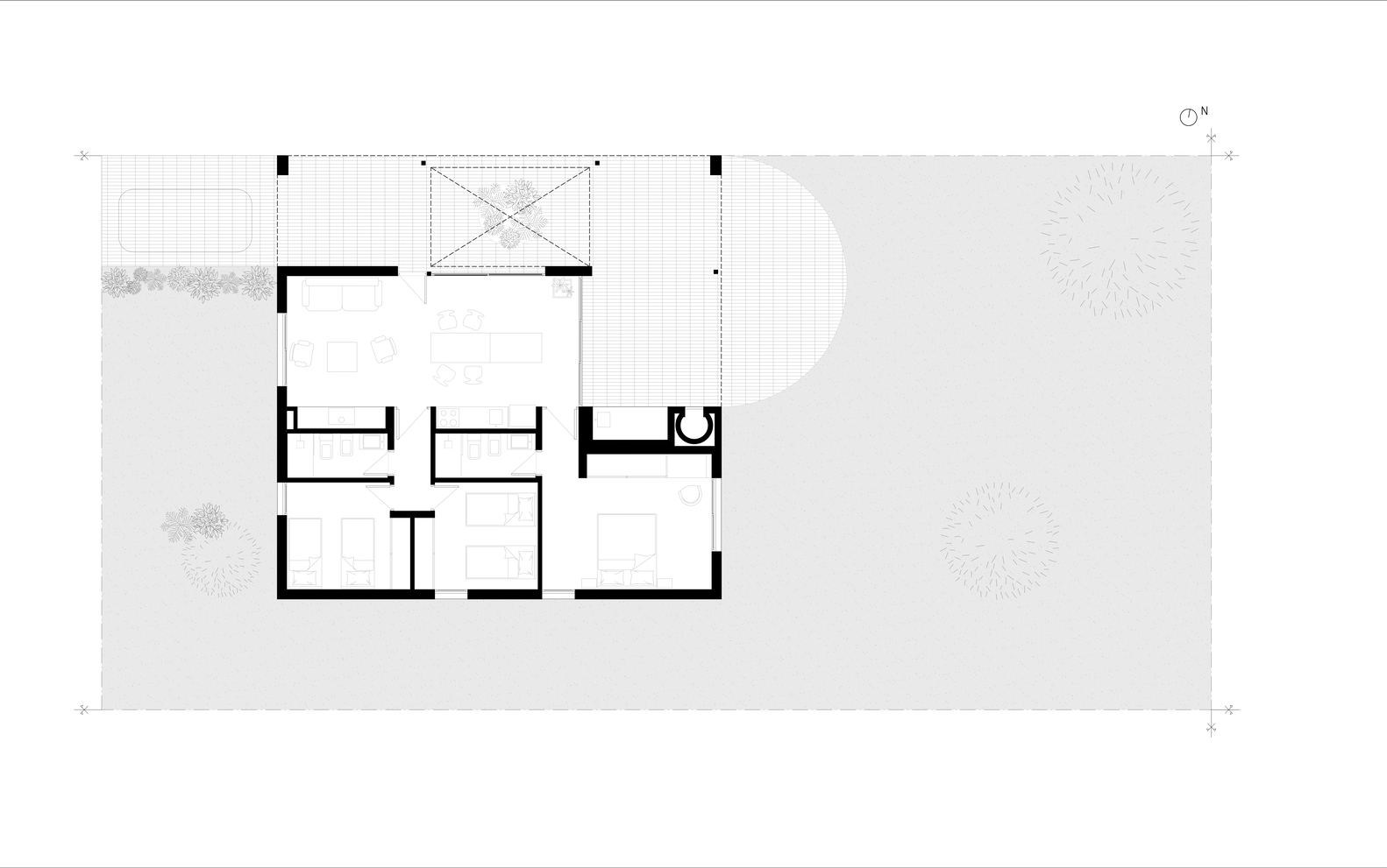
pRoA红砖平房设计是一个尺寸为 12×12×3 米的棱柱体建筑,位于乌拉圭马尔多纳多的普拉亚韦尔德(Playa Verde)和普拉亚埃尔莫萨(Playa Hermosa)之间。
这栋住宅略微高于地面,一条坡道自然地划分出人行入口。进入这个棱柱体建筑后,有两条路线可供选择:一条直接通往住宅内部,另一条则通向开放式庭院,庭院连接着烧烤区。在建筑后方,一个半圆形结构与室内相连,形成一个环形动线。
在这个棱柱体建筑内部,整合了三个外部空间,每个空间都有特定用途:入口区域既能迎接访客,也可作为有顶车库使用;中央开放式庭院与厨房和餐厅直接相连,庭院内有一个圆形绿植区,能过滤看向围墙的视线;带顶的烧烤区因其尺寸和朝向,在夏季可提供遮阳处。
住宅内部按功能划分为三个区域:卧室区、服务区和社交区。这样的功能布局旨在将交通空间缩减到最低必要程度。如此一来,在 80 平方米的室内面积中,仅有 4.5 平方米用于通往服务区和卧室的交通。
建筑结构的垂直构件包括混凝土柱和金属柱。混凝土柱(截面较大)被战略性地布置以勾勒出棱柱体的轮廓,外部包覆砖块;金属柱(截面较小)则用于确定半圆形的中心位置,并勾勒出开放式庭院的边界。
外部覆层采用无接缝瓷砖(尺寸为标准砖块的 1/4),通过这种铺设方式形成均匀的纹理,强化了建筑体量的纯粹感。传统规格的同种材料则用于外部地面铺设。pRoA 是一个家庭故事的浓缩,在这个故事里,团聚是核心。