打破传统让等待成为享受的城市宁静港湾银行设计

该银行设计是一个有着明确功能目的的场所,然而在办理业务过程中的等待时间往往让人感觉漫长又枯燥。每个人都曾拿过号码牌,体验过漫长的等待。韩亚银行首尔森林分行的设计重点就在于重新诠释这种日常体验。Indiesalon 事务所提出打造一个空间,让客户不只是来办理银行业务,还能在欣赏圣水洞生机勃勃的景色时,将等待时间转化为放松和沉思的时刻。该分行通过宽阔窗户捕捉城市风景的等候区、包裹着柔和曲线的银行窗口,以及向上延伸的抛物线形屋顶结构,营造出一个开放且优雅的室内氛围。我们希望韩亚银行首尔森林分行能成为金融空间的新典范,成为一个人人都能休憩的现代庇护所。



当你走进入口,首先映入眼帘的是通过低矮天花板营造出的戏剧性入口氛围。红色花纹的木材和弯曲的白色墙壁以一种现代而柔和的方式迎接客户,大型圆形天花板灯通过柔和的照明为空间增添了层次感。在这个入口之后,从低矮的天花板到高挑的天花板开始了戏剧性的过渡,引领客户进入一个新的空间。



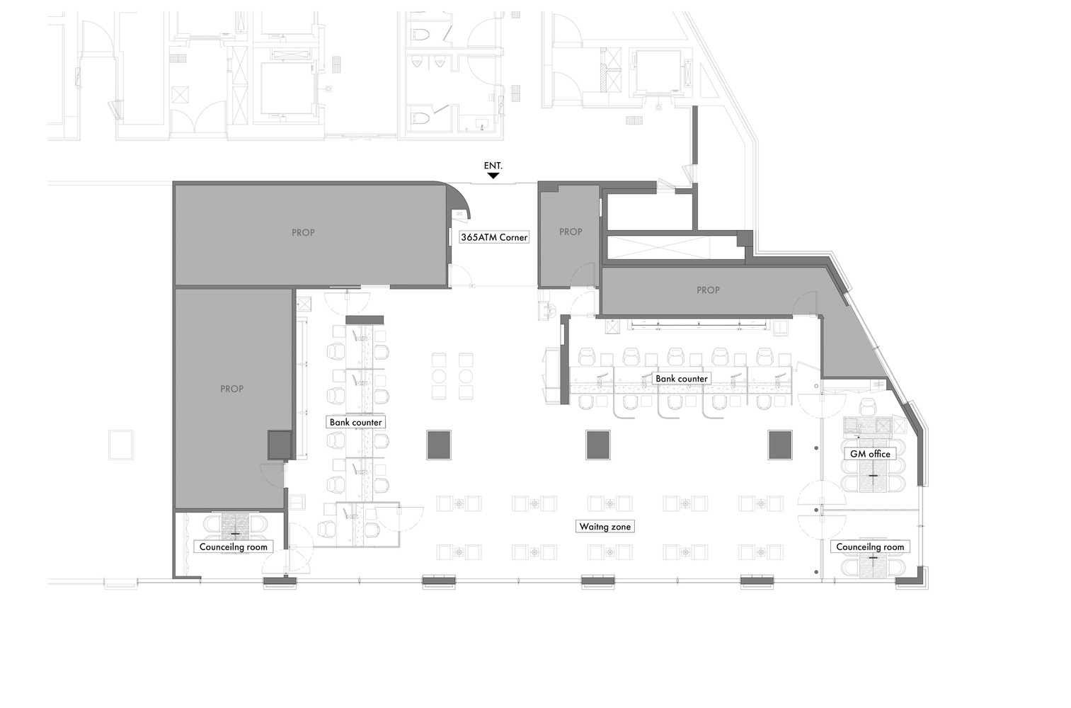
构成整个空间韵律的元素是高耸的屋顶和位于中心的四根柱子。精致的抛物线形屋顶与四根柱子相互协调,为空间增添了开阔感和深度。特别是支撑建筑中心的四根柱子沿着上升的坡度向上延伸以支撑屋顶,并且与上层天花板分离,营造出开放的氛围。每根柱子上都配备了一个显示排队顺序的显示屏,形成了一个高效的空间,客户在等待时可以一边欣赏窗外的景色,一边查看排队顺序。


被称为 “韩亚之顶” 的主屋顶结构与室内天花板分离,使其感觉更加宽敞和开放。在屋顶末端和墙壁之间设置了一个空间,营造出一种仿佛漂浮在空中的轻盈视觉效果。屋顶采用温暖的硬木花纹,舒适地环绕着客户,其设计形式为一个朝着大窗户缓缓上升的抛物线拱形,提供了一个自然的视野角度。



此外,在主屋顶下方设置了另一个空间的屋顶层,使银行内部的每个空间都具有不同的氛围和特色。因此,后方空间被设计成具有各种功能,如银行工作区、文件存储柜、咨询室、员工休息室和贵宾室等,既保持了每个空间的功能性,又根据功能采用了合适的天花板高度布局,以提供整体的统一感。



银行窗口空间根据设计标准,将天花板高度设计得较低,以保持充足的采光强度,并相应地设计了一个轻盈的屋顶。我们还负责设计银行窗口的家具,将韩亚银行标志性的绿色用于环抱客户的墙壁形状和椅子坐垫上,通过将整个银行窗口空间与韩亚银行的品牌形象相融合,营造出舒适而奢华的氛围。



贵宾室采用古红色调,营造出一种私密的氛围。贵宾室与外面明亮现代的空间形成对比,即使在同一空间内,也打造出了一个奢华且完全私密的空间。分行经理办公室以其独特的体量和拱形设计引人注目。它通过穹顶形天花板和大窗户为室内增添了开阔感,营造出一个独立且独特的空间氛围。此外,这个空间可以通过折叠门灵活分隔,因此设计成可用于各种不同的场景。



由 Indiesalon 设计的韩亚银行首尔森林分行,为金融空间提出了一个新的标准,就像一个现代庇护所,让客户即使在繁忙的城市生活中也能在这里度过轻松的时光。该设计自然地与城市景观相融合,平衡了每个空间的功能性和美学元素,和谐地反映了韩亚银行的品牌形象和圣水洞的时尚氛围。