废弃的百年老宅改造法式复古面包店兼工作设计

这座旧房改造的面包店兼工作室设计是由米勒・斯泰尔曼夫妇建于 20 世纪初,承载着一百多年的历史。在最后几位继承人离世后,屋内的房间一直保持原样,仿佛在等待着永远不会归来的主人。随着时间的推移和长期的废弃,它的光彩逐渐褪去:屋顶坍塌,窗户遭到破坏,一堵墙的倒塌还引发了盗窃和社会问题。



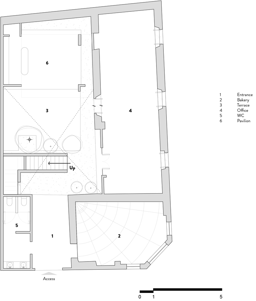
该住宅位于 4 号街与何塞・埃斯特万・科罗纳多街的拐角处,距离甘梅罗斯庄园一个街区,与大都会大教堂在同一直线上,其价值不仅体现在建筑方面,还具有城市层面的意义。业主认识到这一重要性,于是委托 VOID 工作室对该建筑进行修复,旨在为该地区带来积极影响。工作室提出的方案既尊重原有结构,又对其进行了改造,以容纳三个独立空间:办公室、面包店和一个龙舌兰酒品鉴厅。



原有庭院中的一个被保留下来,并成为新布局的中心轴。街道的景观被一个白色的雕塑式楼梯部分遮挡,这是 VOID 工作室的标志性设计,楼梯通向一个露台,从那里可以看到周围的穹顶。出入口和设施都进行了重新设计,以满足新的功能需求。



施工过程中,不同时期的建筑痕迹逐渐显现:采矿时期的土坯墙、带有法国风格元素的八角形建筑以及 20 世纪 40 年代的装饰性铁艺。面包店内,原始墙纸、窗户以及恩里克・米勒设计的棋盘格地板都得到了修复。部分裸露的砖墙和旧时织物天花板的痕迹也被保留下来。虽然原始屋顶未能保存,但新安装的轻质天花板沿用了原有的梁架系统。土坯墙要么进行了密封处理,要么用石膏板(Tablaroca)覆盖。


办公室内,第二层墙面在屋顶下方中断,一道光线突出了这一设计,同时也展现出古老的墙面纹理。新建的品鉴空间风格独特:采用轻质屋顶,三面是带有金属框架的玻璃墙,面向古老的墙壁。装饰材料与现有元素相协调:中性色调的 Kimiplaster 灰泥、室内的洞石大理石地板、外部区域的天然石材和重新利用的石匠工艺碎片。立面和庭院选用白色,不仅因为其传统价值,还因为白色有助于反射光线,减少热量。


灯光设计强化了空间的叙事性:室内采用间接光带,室外则在地面安装嵌入式灯具。品鉴空间内特意摆放了一件来自瓦哈卡的手工灯具,让人联想到沙漠景观。