打造巴西风情的生活魔方承载多元生活的美学别墅设计
Jul 13 , 2025 |
Views :
679
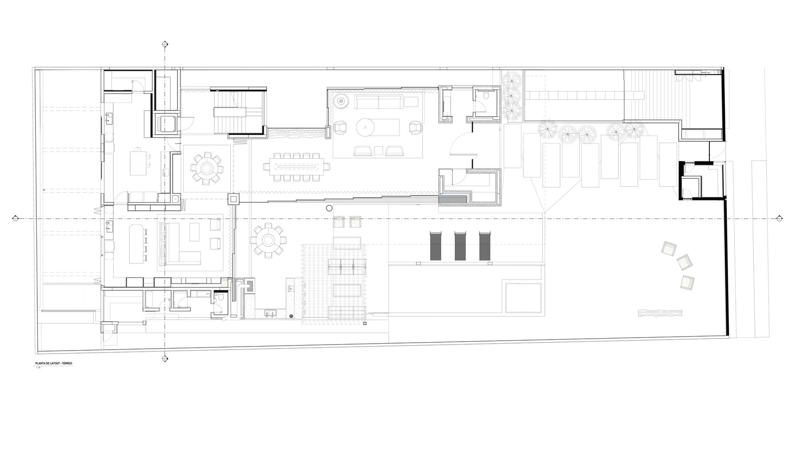
欧罗巴度假别墅(Europa House)项目源于一份设计简报,该简报优先考虑最大化可用建筑面积。客户是一位烹饪爱好者,他要求设置多个厨房操作区,以便在温馨而精致的环境中招待家人和朋友,满足自己的爱好。
社交区域的设计兼顾功能性和流畅性,强调室内外空间的融合,营造出以家庭生活为中心的和谐氛围。TWO 建筑事务所标志性的设计风格注重打造开阔的开放式空间,这在宽敞的一楼起居区体现得淋漓尽致,而地下室则设有健身房、洗衣房和车库。
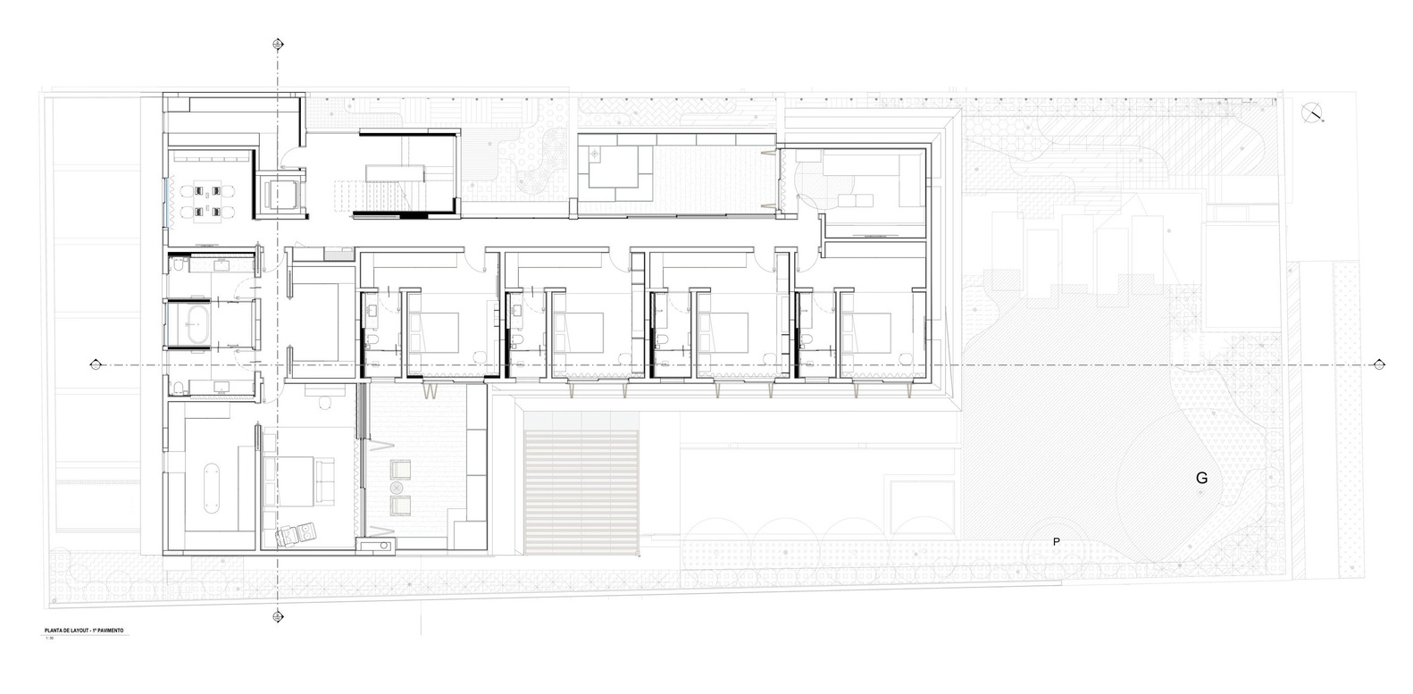
从一开始,充足的自然采光和通风就是关键目标。大面积的窗户让整个住宅显得开阔,也提升了居住的舒适度。二楼的私人套房设计注重私密性和舒适性,还设有一个家庭办公区,包含两个独立的工作间,非常适合远程办公。屋顶是一个多功能平台,既适合工作,也适合休闲放松,还能俯瞰欧罗巴花园(Jardim Europa)的城市全景。
项目精心挑选了伊塔乌纳花岗岩、莫莱多石和质地柔软的木材等天然材料,营造出优雅宜人的氛围。在屋顶的设计上,团队做出了一个大胆的决定,摒弃传统的石膏天花板,采用裸露的混凝土,传达出一种轻松现代的美学风格,这与材料的永恒质感以及巴西的建筑理念相契合。
这种设计灵感还体现在对外墙传统穆夏拉比窗(muxarabis)的重新诠释上,项目采用了带有木质饰面的铝制材料。这一细节既保证了一定的私密性,又能引入充足的光线,还实现了与周围景观的融合,同时也尊重了当地的建筑传统。通过欧罗巴住宅项目,TWO 建筑事务所将客户的设想变成了现实,呼应了人们对理想现代住宅的向往。