在草原围坐去山脉躲猫猫乡村幼儿园设计的自然课
非洲之流:为新兴非洲赋能的教育建筑 —— 喀麦隆的一所乡村幼儿园设计以非洲传统建筑原则为基础,重新构想了教育空间。其教育方法促进儿童与日常活动空间之间建立情感联系,这种联系流畅而直观。建筑师维森特・瓜拉特(Vicente Guallart)和丹尼尔・伊巴涅斯(Daniel Ibáñez)设计了这座低技术建筑,与当地工匠合作,利用木材和夯土等本地资源,以应对快速发展带来的压力。
这所幼儿园的项目源于在非洲开发新教育方法的愿望。该教育设施由拿撒勒圣家传教修女会发起,位于喀麦隆首都雅温得附近的索阿,以连续的生态系统体系进行组织:山脉、草原、村庄和森林,这些生态系统将儿童与他们的根源和文化联系起来。在学校里,孩子们全天在不同空间之间流畅过渡,在各种环境中培养技能,并在多种社交尺度上与同学和学校社区互动。
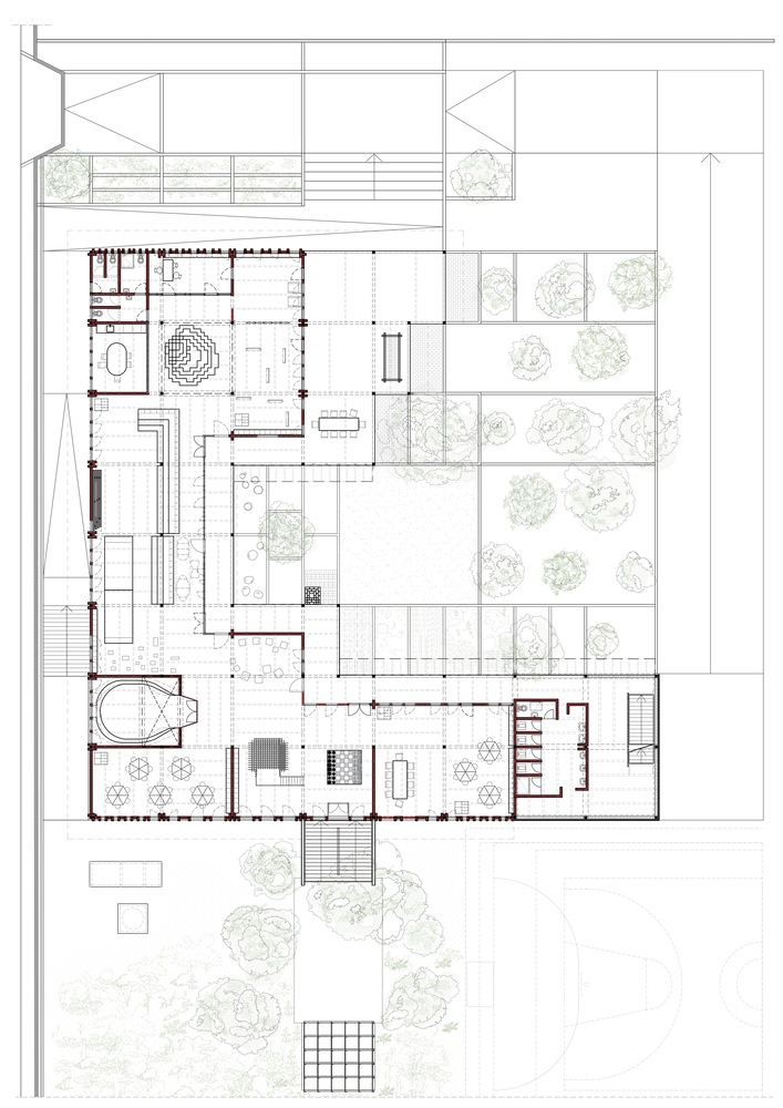
学校围绕中央庭院建造,内部空间按四个生态系统划分,通过一条走廊连接。每个生态系统都有孩子们能够识别的元素,帮助他们安排日常学校活动:
山脉:一个充满灵感和创造力的地方,设有一个洞穴,让孩子们在需要内省的时刻可以独处。
村庄:一个社交互动和交流的空间,包括一个设计成抽象环境的小教堂,光线和穿孔墙壁在这里鼓励沉默和集体反思。
草原:一个宽敞的线性区域,便于孩子们以类似 “篝火” 的教育形式聚集,他们可以在地上玩耍,也可以坐在台阶上。
森林:一个室内外过渡空间,有一个类似乐高结构的人造树可供居住,旁边是一片小型天然森林。
全天,孩子们参与的活动与他们所在的空间相呼应。这些活动包括:与教师一起参加的全体集会、信息启蒙活动、使用单杠和梯子的体能锻炼、在激发灵性的空间中进行反思、在中央庭院的课间休息、小组探索活动、材料实验室的实验,以及使用当地乐器的音乐课程。学校的设计受到简单建筑系统和原始几何图案的影响,这些图案自然源自所选材料的应用。此外,场地原有的地形为建造第二层提供了可能,该层最初将作为负责幼儿园运营的社区的住所。
利用本地材料建造的创新方法 —— 在非洲国家建造由欧洲团队开发的项目,可以被视为一个相互学习的过程。其目标是探索一个 modest 的项目如何同时启发当地社区、传播新的建筑技术并在全球范围内产生影响。在当代全球经济中,“进步” 一词通常指实施工业化的流程、系统和材料,以实现结果的标准化。在这个项目中,目标不仅是设计和建造一座建筑,还要重塑喀麦隆的建筑流程。这包括使用低碳排放的本地材料、与供应商达成协议以在当地销售其产品、培训工人,以及教育教师将该项目作为强化集体赋权的社会教学法的一部分。
为了建造 “非洲之流”,团队进行了广泛调研,以吸引那些通常将产品出口到欧洲或中国的本地制造商参与。随后,建筑结构采用了当地产的高密度阿佐贝木,这种木材以抗白蚁著称。建筑由没有木材使用经验的当地工人建造,从而促进了集体学习过程,这一过程可在未来项目中复制,并在快速城市化背景下推动低碳排放建筑的发展。墙壁由夯土砖(未烧制)砌成,采用多种图案,使光线能够进入室内。因此,当地的红土与建于其上的建筑之间形成了一种延续性。项目选择了当地的夯土砖供应商,采用非常基础的制造技术。室内使用了 iroko、sapele、doussie 和 movingui 等本地木材。在国际市场上,这些木材被归类为热带木材,通常价格昂贵;然而,在喀麦隆,它们常被用作建筑材料。
该建筑群的水塔通常由混凝土建造,现被重新设计为木质空间结构,并覆盖有光伏板。这确保了在经常停电的环境中持续供电和供水。最终形成的空间易于被社区识别,它采用了适应环境的传统建筑形式。该项目融入了本地材料和文化,采用了极其简单的几何图案和建筑系统。未来几年,该建筑群将扩展为提供从幼儿园到高中的完整教育体系。