一头望着运河一头守着田野对自然敬畏的度假木屋设计
Aug 3 , 2025 |
Views :
1,241
该乡村度假木屋设计位于阿根廷恩特雷里奥斯省的维拉帕拉纳西托,地处恩特雷里奥斯三角洲生态系统内,具体位置在一条源自马丁内斯溪的次级运河岸边。这里是一片低洼且易受洪水侵袭的岛屿区域,四周环绕着河岸植被和交错的水道,共同构成了一个动态的河流系统。
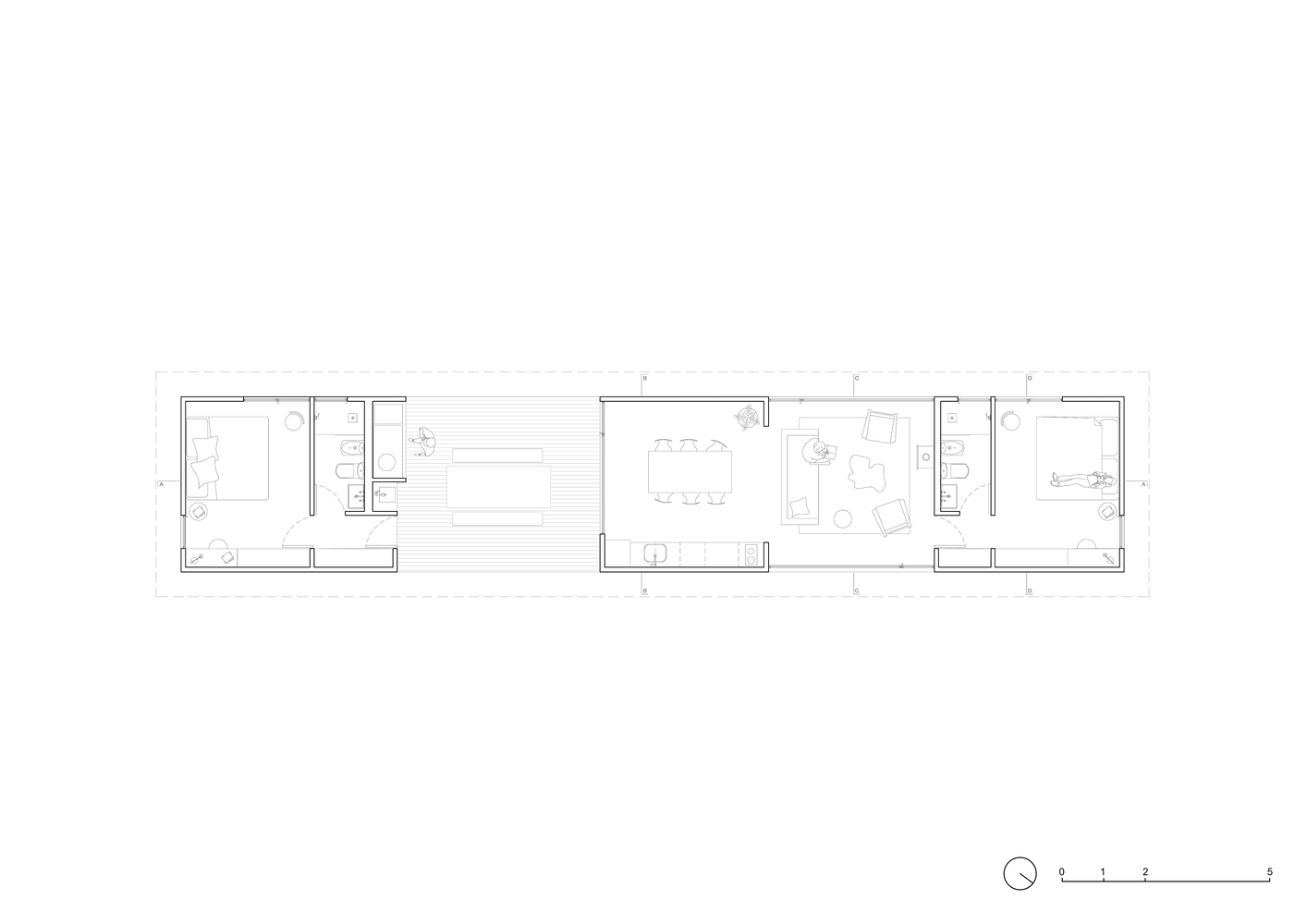
住宅建在场地的自然高地上,这确保了更稳固的地基条件,并能抵御可能发生的洪水。设计决策与周边景观紧密相关。住宅力求在两个方向上都能捕捉到最佳景致:一侧朝向运河,另一侧则望向开阔的田野。为了满足这种双向朝向的需求,住宅被设计成线性木结构,宽 4 米,长 22 米。
一条纵向的走廊作为过渡和连接空间,将住宅分为两个主要区域:一侧是家庭核心区 —— 包含开放式厨房、餐厅、客厅和一间套房;另一侧则是客房。
由于其线性布局和双向开放的设计,住宅框定了周边景观,并精心构建了面向水道和田野的特定场景。这种策略不仅让人能够融入环境,还能凸显环境的价值,将景观作为空间体验中不可或缺的一部分。
这是一个梦寐以求的项目,源于对巴拉那河三角洲生态系统的痴迷。它通过选址、朝向和形态设计,找到了与景观共存而非凌驾于其上的方式 —— 这是一种简约、尊重且深深植根于地域逻辑的设计理念。