瀑布串起山与建筑耐候钢藏在绿荫里圣殿般的高尔夫会所设计

卡斯卡迪亚(Cascadia)坐落于韩国洪川郡的群山中,既能让人完全远离城市的喧嚣,又能完好保留大自然的原始风貌。它被层层山峦与岩石地貌环绕,将大自然的万般奇景生动展现,仿佛是神明的造物 —— 一个与世隔绝、全然超脱凡尘俗世的秘境。这一景象构成了我们的核心设计理念:“神明之境”。因此,每个建筑体量都经过精心设计,与当地的自然地形和谐相融,完美顺应山地的轮廓,并与新引入的瀑布景观融为一体。
该俱乐部采用的设计手法刻意避免展现任何人工建筑形态。相反,它顺应环境,适应场地固有的限制条件。俱乐部隐匿于群山之中,我们的设计目标是营造出一种步入圣殿般的感受,倾斜的屋顶设计顺应地形轮廓,进一步强化了这种氛围;建筑结构与周边环境完美融合,丝毫不会破坏自然的流动感。
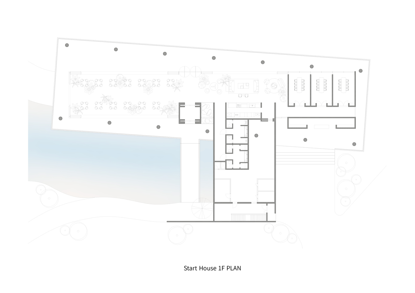
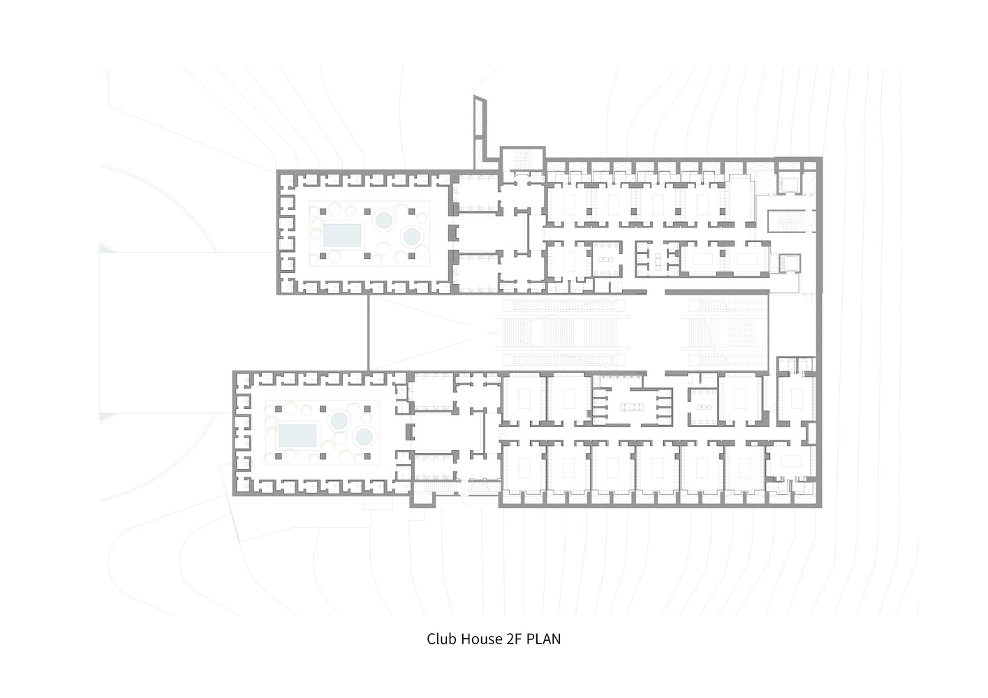
传统上,高尔夫俱乐部的选址会力求能将整个球场的全景尽收眼底。然而,在卡斯卡迪亚项目中,要将球场从 18 洞扩建至 27 洞,同时又不改变场地原有的边界范围,这意味着俱乐部的选址必须根据新的球场布局进行重新规划。结果是,俱乐部被迁移至距离球场 500 米、低于球场 35 米的位置,这使得俱乐部与球场之间的通道设计成为该项目的一大挑战。为解决这一问题,我们摒弃了传统的水平布局,采用垂直结构以适应场地陡峭的坡度。通过这种设计,建筑自身将各个楼层自然地连接起来。
当访客在精心设计的各个楼层间穿行时,会自然而然地走向球场。这种垂直布局不仅将空间限制转化为设计机遇,还通过精心设计的动线与融合方式,解决了俱乐部与球场之间的物理分隔问题。
材料的选择同样经过审慎考量,旨在营造宁静的氛围,并与周边环境相得益彰。所有使用的材料均采用中性色调与大地色系,以与自然和谐共生,同时保持低调内敛。象牙色人造大理石、洞石以及带有岁月质感的耐候钢,再加上石膏饰面与现场浇筑的水磨石,共同构成了项目的材料 palette。这些元素经过精心搭配,旨在保持空间的连贯性,并增强沉浸式体验。