以柔和曲线拥抱自然以汇聚枝丫象征融合以自然材质传递温度的学校设计

在法国马尔利市的入口处,埃莱娜・卡雷尔・当科斯(Hélène Carrère d’Encausse)学校设计如同一棵扎根大地的树木,既标志着城市更新的步伐,也承载着教育融合的使命。这座将纳尔逊・曼德拉学校与路易丝・米歇尔学校合并而成的教育综合体,是一项重要政治举措的实体呈现——它以“被树木环绕”为核心愿景,用绿色景观作基底,让教育空间与自然生态深度共生,开启了法国统一教育的全新篇章。
一、象征与使命:教育融合的空间载体

两所学校的合并,并非简单的规模叠加,而是教育资源整合与社会包容理念的践行。因此,建筑设计从一开始就超越了单纯的功能需求,成为“统一与象征”的空间表达。它坐落于马尔利市入口的核心位置,既是城市对外展示的新名片,也隐喻着教育是城市未来的入口——通过整合资源、打破壁垒,为所有孩子提供平等优质的教育机会。设计团队将“绿色生态”作为核心基底,正是对这种教育理念的呼应:自然无界,教育亦无界。“树中学校”的愿景,不仅是让建筑被树木环绕,更是让教育如同树木生长般,在自然的滋养中自由舒展,培养孩子们对自然的敬畏与对多元世界的包容,这与城市“重视共享建筑遗产与生态保护”的愿景高度契合。

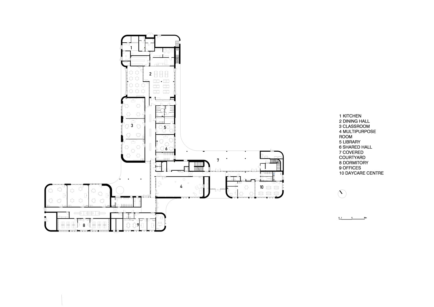
建筑的平面布局是“教育融合”理念最直观的空间转译,以“枝丫汇聚”的形态,实现了空间与人群的有机串联,打破了原有两所学校的物理与心理界限。两条“枝丫”状的建筑体量从东西两侧向外延伸,最终在公园中心融为一体——东侧枝丫源自纳尔逊・曼德拉学校的原有区域,西侧枝丫则对应路易丝・米歇尔学校的旧址,如同来自不同区域的学生在此汇聚,完成教育资源的整合。这种布局既尊重了两所学校的历史脉络,又以“汇聚”的形态象征着融合的未来,让学生在日常穿行中潜移默化地感受“团结与共生”的理念。
枝丫的交汇点巧妙地将公园南部划分为两个独立操场,分别适配幼儿园与小学两个学段的活动需求。低年级幼儿的操场更注重安全防护与趣味设施,高年级小学的操场则强调活动空间的开阔性与多功能性,这种“统一规划、分区适配”的设计,既保障了不同年龄段学生的活动安全,又实现了场地资源的高效利用,让“枝丫”不仅串联建筑,更串联起不同阶段的教育成长。


教育综合体的设计面临着一个核心挑战:既要让学校与城市、外部世界建立紧密联结,培养学生的社会适应力;又要为孩子们营造一个安全、温暖的受保护空间,守护他们的成长天性。设计团队以“曲线美学”为解决方案,通过一系列曲线与反向曲线的精妙组合,完美平衡了“开放”与“守护”的双重需求。柔和的曲线形态取代了尖锐的棱角,让建筑从视觉上就传递出温暖包容的气质,消解了大型综合体可能带来的压迫感。曲线勾勒出的连续立面,既形成了面向城市的开放界面——行人可透过绿植与建筑的间隙,瞥见校园内的活力场景,让学校成为城市生活的一部分;又在内部围合出多个半私密的庭院空间,这些庭院被建筑与树木环绕,成为孩子们课间嬉戏、自主探索的“安全港湾”。曲线与反向曲线的交织,还实现了功能区域与外部空间的自然串联:从城市街道沿着曲线步道进入校园,经过绿树成荫的庭院抵达教室;从教室出发,沿着曲线走廊可直达操场、图书馆或多功能厅。这种流畅的动线设计,让学生在校园内的移动如在自然中穿行般自在,既提升了空间使用效率,又强化了“教育融入自然”的体验感。


建筑采用“下实上轻”的双材质体系,既保障了结构安全,又强化了“树中学校”的设计意象。建筑底部采用混凝土结构,外立面覆盖矿物砖,为面向公共空间的区域奠定坚实稳固的基础,如同树木深入地下的根系,传递出可靠与安全的感受;上部体量则以木材为主材,外立面与保温层均采用木质纤维材料,轻盈的质感与自然的纹理,如同树木向上生长的枝干,与周围的绿植景观完美融合,让建筑仿佛从自然中生长而出。两种材质的搭配不仅具有美学价值,更兼顾了实用功能:混凝土与矿物砖的耐热、耐磨特性,适配校园公共区域的高频使用需求;木质材料的保温性与环保性,则为教室、图书馆等核心学习空间营造了舒适健康的环境,实现了“美学、功能与生态”的三重统一。


学校综合体构建了完整的“教育+生活+景观”生态系统,全面覆盖从幼儿园到小学的全学段需求。在教育功能上,配置了12间小学教室、6间幼儿教室,以及技能教室、图书馆等专业空间,满足不同学科的教学需求;在生活服务上,可每日加热165份餐食的厨房、课后托管区,为学生的日常学习生活提供保障;在活动空间上,多功能厅可承接集体活动、文艺演出等,适配校园多元化的活动需求。景观设计同样是教育生态的重要组成部分:公园改造工程优化了校园周边的自然环境,绿树成荫的庭院与绿洲庭院为学生提供了亲近自然的户外课堂,屋顶教育菜园则让孩子们能参与种植实践,培养劳动意识与生态观念;同时,设计团队对原有植被进行了保护与利用,搭配专门设置的遮阳区域,让校园的每一处景观都成为“自然教育”的载体,实现了“教育场景与自然景观”的无缝融合。



埃莱娜・卡雷尔・当科斯学校的设计,为当代教育综合体的建设提供了极具价值的启示。首先,它实现了“政治使命与空间设计”的深度融合——将教育合并的政治举措,转化为“枝丫汇聚”的空间形态,让建筑成为理念的可视化表达,增强了师生对新校园的认同感与归属感。其次,它构建了“自然与教育”的共生模式,证明教育空间不必局限于封闭的教室,自然景观不仅是装饰,更是能滋养学生成长的“活教材”。最后,它践行了“全龄适配与社会开放”的设计理念,既为不同年龄段学生提供了专属空间,又以开放的姿态融入城市,让学校成为城市共享的文化与生态资源。如今,这座“树中学校”已成为马尔利市的教育新地标。它以柔和的曲线拥抱自然,以汇聚的枝丫象征融合,以自然的材质传递温度,不仅为孩子们提供了高质量的教育空间,更以“生态优先、教育为本”的设计理念,为未来教育建筑的发展指明了方向——最好的教育空间,应当如树木般,扎根大地、拥抱自然,让每一个孩子都能在阳光与绿意中自由成长。

