门廊的延伸预留的空隙宽大的顶棚温暖自然的学校设计
Oct 23 , 2025 |
Views :
429
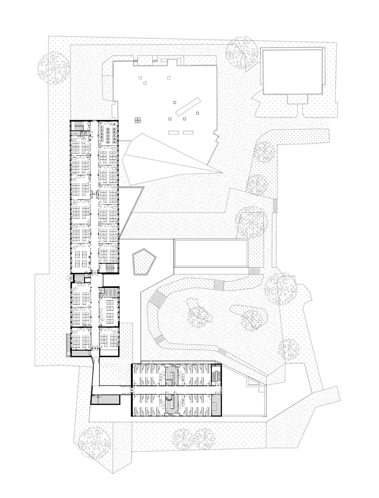
该学校设计可容纳 750 名学生和一个本地学生安置单位(ULIS)。
此次,省议会决定实施所有配套工程(室外区域改造、隔热改造、现有日校校舍重组),使学院得以长期改建。
建筑立面向南延伸,以一个门廊为标志,加强了学校的存在感。扩建部分的主体和自行车室之间有一个空隙,由一个宽大的顶棚连接。这种形式界定了建筑的入口。
一组斜线构成了入口处的平面图,向从南面乘坐公共汽车前来的学生和每天使用校舍街的人们传递着后者的信号。
这所学校不仅体现了它在当今社区中的存在,还体现了它在未来社区中的存在,因为它还考虑到了未来体育设施的存在,并为此预留了一块土地。门廊的设计和扩建部分的体量表达了该机构的机构价值,而砖块的温暖质感、钢板的暖色调、自行车架的图案以及将自然重新引入庭院,则从该机构的一开始就宣告了其氛围、空间和使用的特质,在这里,人们可以很好地传播和接受知识,并在该机构的生活中工作。
混凝土网格还为图书馆提供了一个过滤器,为学生在工作期间提供了私密性,同时又不会失去与外界的联系。第二层表皮的复杂几何形状促使每个人都参与到现场的设计和施工中。