创造充满活力互动激发的创意艺术社区和学校设计
该学校设计是由 Jeanne Gang 领导的国际建筑和城市设计公司 Studio Gang 完成了旧金山加州艺术学院(CCA)校园的扩建工程。新建筑从加州艺术学院现有的主教学楼延伸出来,为学习和创作创造了一个充满活力的室内外环境,加强了不同人群、想法和创作实践之间的联系。“Studio Gang 的创始合伙人 Jeanne Gang 说:”设计旨在为艺术和设计教育创造一个充满活力的环境,同时通过各学科之间意想不到的互动来激发新的制作形式。“我很高兴看到我们对加州艺术学院校园的补充将如何塑造艺术和设计的未来,并为旧金山历史悠久的创意社区增光添彩。
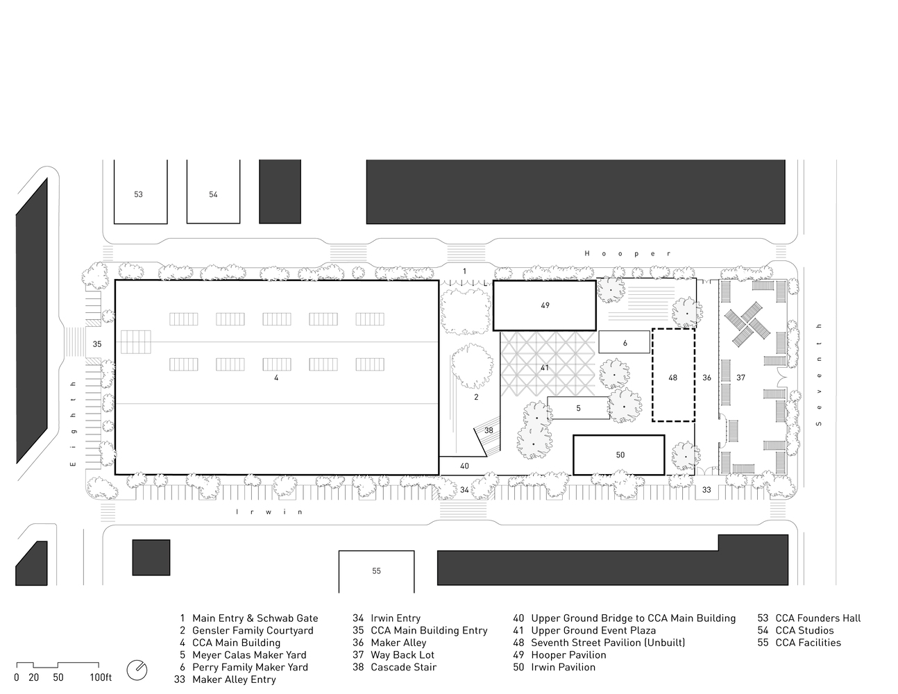
学校成立于 20 世纪初的工艺美术运动时期,现已发展成为涵盖 34 个艺术和设计学科,从珠宝、陶瓷、纺织品到金属艺术、建筑和动画。这座占地 82,305 平方英尺的建筑被设计成一个创意生态系统,不同的学科可以在这里进行富有成效的互动和重叠,它提供了新的艺术创作设施、学习空间和绿地,为多样化的社区提供支持。混凝土地面层是一个室内外工作室中心,用于进行更多的体力密集型创作实践和大型制造。这一层围绕共用材料和设备进行组织,其开放、灵活的规划使不同的项目清晰可见,并可相互访问,促进了跨学科互动。从混凝土下层凿出的两个大型制作场提供了额外的工作空间,并使新鲜空气和自然光能够渗透到室内深处。
从建筑底层延伸出来的两座大型木结构展馆内设有教室、艺术工作室以及 CCA 瓦蒂斯当代艺术学院的新址。两座亭子都通向绿色梯田景观,将建筑的上下两层连为一体。它们的深阳台使室外交通以及非正式的学习、工作和社交空间成为可能,CCA 社区可以在这里享受旧金山温和的气候。这些建筑是加利福尼亚州首批外露的大规模木结构建筑之一,采用了独一无二的偏心支撑框架系统,使建筑的自然材质、横向荷载和重力荷载一览无余。新建筑通过一个温馨的新街景和旨在提高艺术在更广泛社区中的影响力的项目,加强了 CCA 与旧金山设计和创新区以及更广泛的湾区及其环境、创业和创意文化的联系。
设计还通过环保和体验性的策略支持了 CCA 对可持续发展的承诺。混合大体量木结构和最少的饰面将建筑的碳足迹减少了近一半。采用重型设备的体力密集型实践活动被战略性地安排在地面上,以集中结构负荷和机械基础设施,并随着新需求、新媒介和新技术的发展提供适应性。其他被动式设计策略,如自遮阳外墙和夜间冲水通风,可使建筑自然冷却,从而减少机械系统的体积和能源需求。此外,该建筑还配备了基础设施,可在未来实现闭环、净正值建筑。
Studio Gang 为加州艺术学院所做的设计是建立在该公司在加利福尼亚州不断增长的作品基础之上的,这些作品包括位于旧金山新的 Mission Rock 社区的住宅楼 Verde,Studio Gang 还为其牵头制定了设计原则和指导方针;加州大学圣克鲁兹分校 Kresge 学院的扩建计划、教学楼和三栋住宅楼;以及位于旧金山市中心的高层住宅楼 MIRA。