从展览空间到聚会场所用空间形态加法激活的游客中心设计
Jul 25 , 2025 |
Views :
855
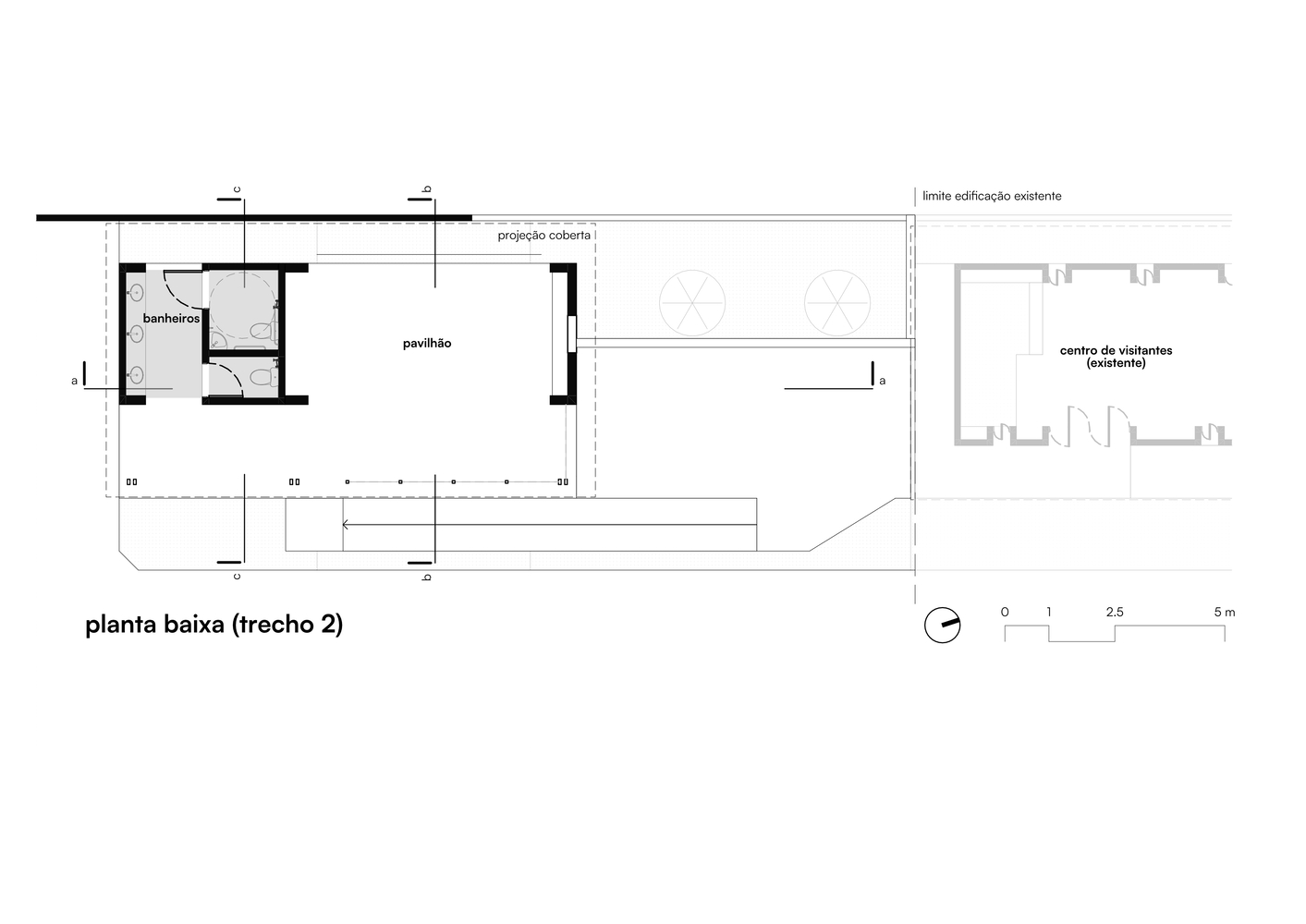
最初被设计为展览空间,用于展示该机构的项目。随着非政府组织需求的增长以及多样化受众对空间使用的增加,提升场地实用性的新需求和改进措施应运而生。因此,该建筑群的扩建计划被提上日程,初步建议在原有建筑旁增建一座附属建筑。
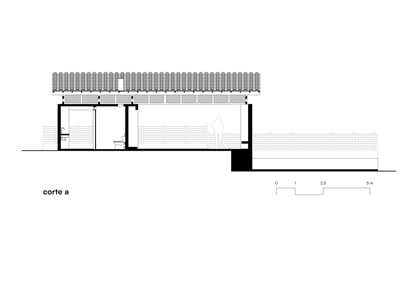
新建筑位于原有游客中心的后方,不仅为更多人提供了聚会空间,还为整个建筑群增设了洗手间设施。它沿用了主建筑相似的屋顶结构和墙面材料,但由于跨度更大,整体更为开放,结构也更显坚固。此次扩建的一个显著特点是前墙设有开口,可由此欣赏到原有建筑及周围绿地的景观。
通往新建筑的通道延伸了原有游客中心的路线,在两栋建筑之间形成了过渡空间。这一设计既适应了场地的地形,又成为连接两栋建筑的纽带。同时,这个中间空间让每栋建筑保持独立,通过石墙和景观设计元素巧妙隐藏了原有的蓄水池。