树荫下的混凝土回廊庭院织就热带教育新章的学校设计

印度与教育 —— 在印度,最早的学校形设计式之一是古鲁库(gurukul,guru 意为 “导师”,kul 意为 “住所”)。对于熟悉这一概念的人来说,它让人联想到一位博学的古鲁在大树树荫下向门徒传授知识的生动画面。这种无边界、极简的间接教学作为知识传授的形式,在 19 世纪左右迅速消失,大多数机构转而采用格子间加铃声的模式。





“学校”(school)一词源于希腊语 σχολή(scholē),原意为 “闲暇”。颇具讽刺意味的是,如今印度大多数学习环境让学习的天平更倾向于压力而非闲暇。教育教学法正在变革,从教师到学生的工业化层级式知识传授已无法满足 21 世纪学习者的需求与期望。教学创新需要能让师生共同探索的空间。





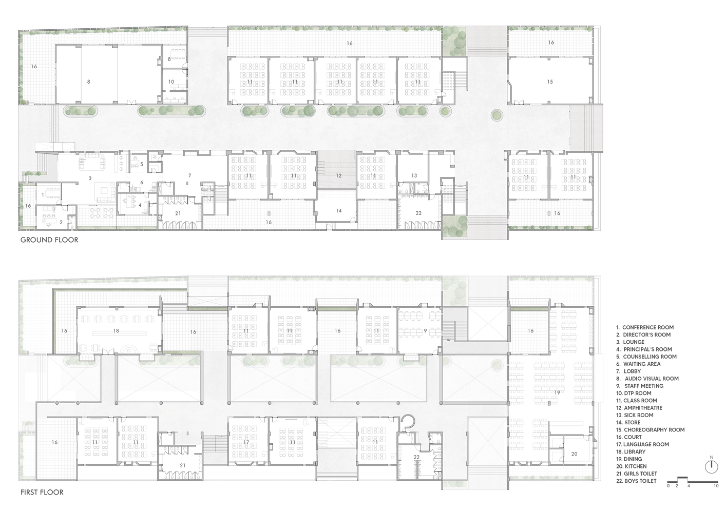
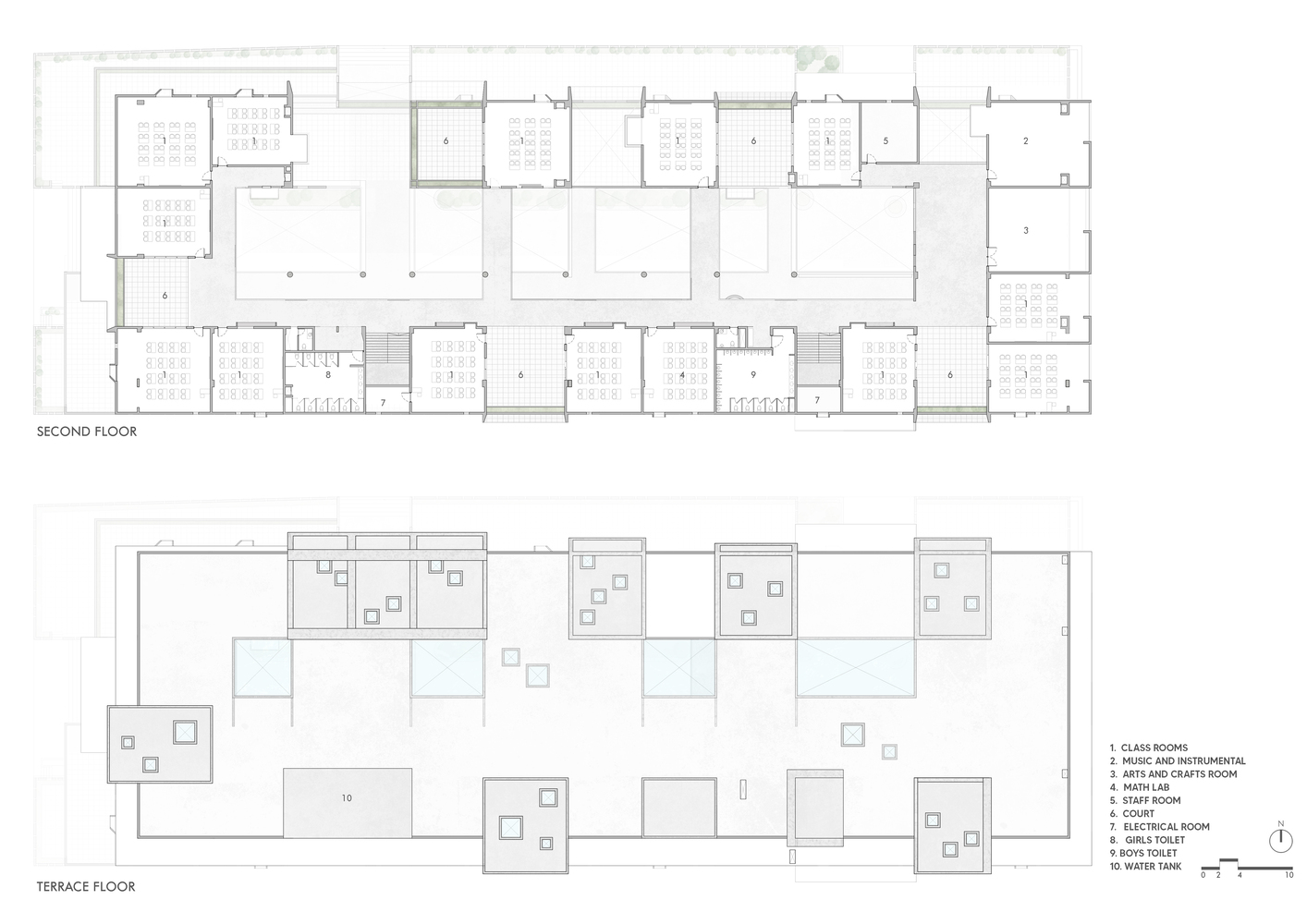
彩虹国际学校 —— 作为现有校园的扩建项目,这座三层建筑呈东西走向,长侧边朝向南北,以最大限度减少热量吸收。中央脊柱是一个贯通三层的大型体量,将学校的南北翼分隔开来,多层交错的天桥横跨其间。该体量通过天窗引入顶部光线,照射到沿学校长度分布、种满热带绿植的大型花盆上。南翼本身采用交错设计,为下层空间遮挡强烈的南方阳光。





教室与庭院:一层教室通向有遮阳的南北庭院,高层教室则朝向东或西,共享双层通高的大型庭院。这些庭院通过拆除墙壁,尝试让教室回归古鲁库模式,缓解典型四壁教室带来的压抑感。为充分践行建构主义学习,学生需要在讲座、小组学习、展示、讨论和个人学习时间之间灵活转换。





“剩余” 空间与学习:为真正转变教育范式,学习空间被规划为教室外相互连接的网络,使学习能在空间之间流动,并培养社区意识。这些额外空间通过打破对空间规划与高效利用的常规预期,激发思考。这些 “剩余” 空间能促成有价值的、非计划的非正式交流,提升对话质量、鼓励创造力并促进协作。





地面大多采用当地采购的 Kota 石与花岗岩穿插铺设。铝制滑动门作为教室与庭院的分隔,室外庭院则采用当地的 tandoor 石铺装。尽管人类文明在过去一万年中技术不断进步,日益将人类体验与地球上不受控制的自然生活割裂,但人类仍渴望甚至需要与自然建立联系。这所学校通过光线、风、树木和空间体量,将学习体验与自然世界的规律和进程重新融合。









