从烘焙的烟火到屋顶下的云阳光和诗的咖啡厅设计
Aug 7 , 2025 |
Views :
953
AOI CELESTIE 咖啡烘焙馆设计位于社区设施综合体中,地处锦通街与 153 号公路的拐角处,正对着名古屋新荣町站。在该综合体中纳入一家咖啡馆的想法源自名古屋的一家物流公司,目的是为了活跃当地社区的生活。其愿景是为居民打造一个以咖啡为核心元素的标志性空间。






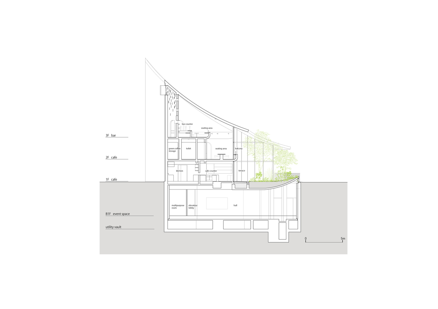
为响应这一需求,我们设计了一座以内部庭院为中心的建筑,庭院上方覆盖着一个轻盈得仿佛从天上掉下来的屋顶。该地块利用率很高,位于市中心的一条主干道上,旁边是多楼层的居民楼。综合体的地下层设有一个多用途活动大厅,而咖啡馆则占据了地上的三层空间。






庭院位于活动大厅的上方,其边缘有一部分是抬高的,这使得安装高窗成为可能,自然光可以通过高窗照到下层。宽敞的屋顶下方是咖啡馆,它分布在三层,每层都有双层挑高。一层设有服务台、厨房和烘焙区。靠窗的座位比地面略低,吸引着人们将目光投向窗外的景色。二层完全供顾客使用,可俯瞰中央庭院,庭院里的一小片橄榄林营造出宁静温馨的氛围,与周围喧嚣的城市形成鲜明对比。





三层设有一个酒吧区,被巨大的屋顶环绕。从这里可以俯瞰咖啡馆内部、庭院,甚至能瞥见下方繁忙的大街。屋顶覆盖着多治见市制造的特色瓦片,瓦片呈现出深浅不一的蓝色渐变,这已成为该咖啡馆的标志。这仿佛是天空的一面镜子,而这要归功于这些手工瓦片。瓦片的颜色会根据带槽边缘所涂釉料的厚度而变化。在晴天,屋顶像湖面一样闪闪发光;在雨天,雨水顺着凹槽流到花园里。这家咖啡馆成为了城市中的一个 “空白空间”—— 一个与周围快节奏生活相隔绝的时间与空间节点,并逐渐成为该地区的一个新象征。




