立方体迷宫用漂浮体量解构老城空间密码的别墅设计

该别墅设计的营造源于居住者与场所之间鲜活、动态且富有建设性的对话。144 别墅坐落于伊朗西南部波斯湾沿岸的布什尔市附近,这里气候炎热潮湿。布什尔老城的住宅建筑主要形成于 18 世纪至 19 世纪,以狭窄如迷宫般的小巷为典型特征,堪称伊朗传统住宅建筑中最具表现力与突破性的独特存在。





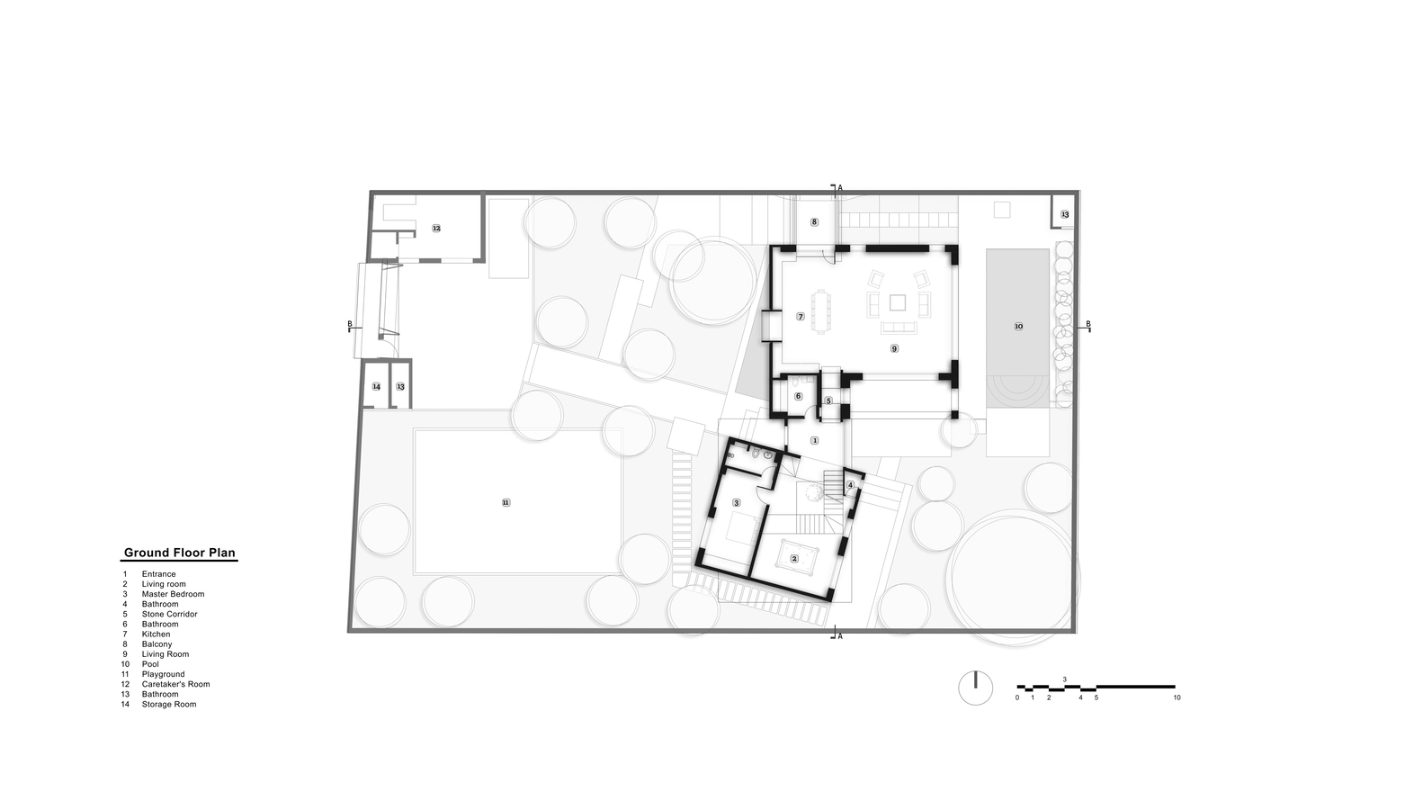
别墅的结构由三个白色立方体在不同标高上交错咬合而成,以此界定室内外空间。立方体的交汇处是主入口,它既是主要起居区、卧室与东西两侧庭院的分界点,也是空间过渡的核心枢纽。滑动与叠合的立方体构图营造出轻盈悬浮的视觉效果,巧妙呼应了布什尔历史民居的标志性空间特质。通往入口的路径上,主客厅所在的立方体仿佛漂浮于铺有青釉伊朗瓷砖的倒影池上方 —— 在酷热的地域气候中,水的视觉呈现与潺潺声响不仅带来感官上的柔和对冲,更营造出舒缓身心的空间体验。






主客厅是整座别墅中最通透、开放的空间,通过视觉与功能的双重关联,将四个庭院纳入生活场景。客厅的视觉焦点并非电视,而是一幅装裱成艺术品的古董赫里兹地毯 —— 这件波斯编织工艺的杰作,以墙面为画布,成为空间的精神图腾。厨房窗台上装饰的手工赞詹地毯,同样延续了这一设计逻辑:通过场景化的陈列,放大波斯地毯的符号意义、美学价值与空间叙事力。连接主入口与客餐厨区域的 3.3 米长走廊,墙壁采用布什尔海岸采集的珊瑚石砌筑(该材料曾是当地历史建筑的主要建材),天花板与地面则覆盖生铁薄板,以原始质感呼应地域记忆。





别墅的景观设计以多路径探索为核心,鼓励访客以有意或偶然的方式穿梭花园,在行进中深化对空间的感知与理解。花园内汇聚了布什尔的本土树种与怀旧植物,包括深受当地人喜爱的九重葛、榕属植物、六棵移植的成年桉树,以及象征城市地标的雄伟丝树。设计团队从波斯传统建筑,尤其是布什尔本土建筑中提取典型原型,提炼其功能内核并重新转译为当代生活语言。





受传统布什尔建筑 “无死胡同” 理念的启发 —— 其狭窄街巷网络如同博尔赫斯笔下的迷宫,创造层次丰富的叙事性空间体验 ——144 别墅的平面布局刻意规避封闭端点,以连续贯通的路径系统,引导居住者以直觉化、沉浸式的方式,与场所展开多维度的对话。这种对地域文脉的转译与再创造,使建筑不仅成为气候适应性的容器,更成为连接历史、当下与生活的叙事载体。




