金属格栅裹着金字塔长在山谷里的办公楼总部设计
Aug 7 , 2025 |
Views :
1,177
戴纳菲特(Dynafit)位于基弗斯费尔登(Kiefersfelden)的总部办公楼设计方案与埃诺谷(Eno Valley)的自然环境融为一体,同时作为醒目的视觉地标存在。这一建筑体量由两个金字塔形结构融合而成,从连接德国与奥地利的高速公路上便能望见,旨在成为塑造该山谷景观的一部分。
建筑的体量构成旨在强化高度感,与周边的山丘、山谷等元素相互呼应。它既有着内敛却又宏伟的垂直感,在垂直立面上最大限度地突出高度,同时在倾斜侧面力求营造更贴合人体的尺度。这种对比不仅让建筑在所处环境中脱颖而出,也在建筑与自然之间建立起视觉对话。
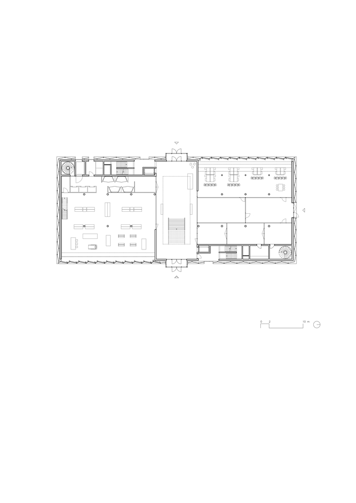
尽管该项目的体量看似简洁,但剖面却展现出丰富的空间感,提升了员工和访客对这座多功能建筑的体验,并通过不同空间提供的多样视角促进他们之间的互动。室内被设计为明亮高效的开放空间系统,其结构简洁,通过将服务核心区集中在每层的两端,实现了最大程度的效率优化。
呼应该品牌产品的特质,外立面系统以轻盈、高效和科技为核心设计理念 —— 它能为建筑遮挡太阳辐射,同时保证人们可随时欣赏周边景色。外立面的斜向金属格栅图案强化了对建筑体量几何感的感知,为建筑群赋予了富有动感且层次丰富的外观;随着光线反射变化,这一外观能让简洁的几何形态在一天中呈现出动态而复杂的视觉体验。
这一体量简洁、抽象且略带神秘感,通过其几何形态与抽象表达,力求与景观建立紧密联系,从而成为景观的一部分。在这种关系中,建筑既不回避拥有自身的意义,也有着鲜明的辨识度。