房屋外形与场地几何形状相呼应创造奇异空间的别墅设计
Aug 31 , 2025 |
Views :
1,209
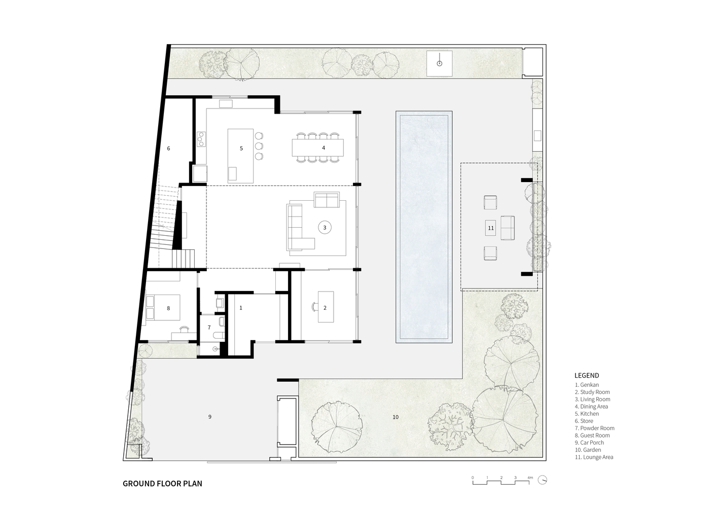
Lapatoo House 高档别墅设计位于吉隆坡的富人区,是一座三层半独立式住宅,占地 6,000 平方英尺,建筑面积 5,000 平方英尺。房屋的方形外形与土地的几何形状相呼应。进入住宅,映入眼帘的是一个下沉式门厅,拾级而上是一个开放式的客厅、餐厅和厨房空间。入口左侧是一间客房。主要起居区无缝延伸至前方、后方和侧方的露台,露台通向无边泳池,水边与露台相接,还有一个带顶棚的休息亭和一个景观花园。
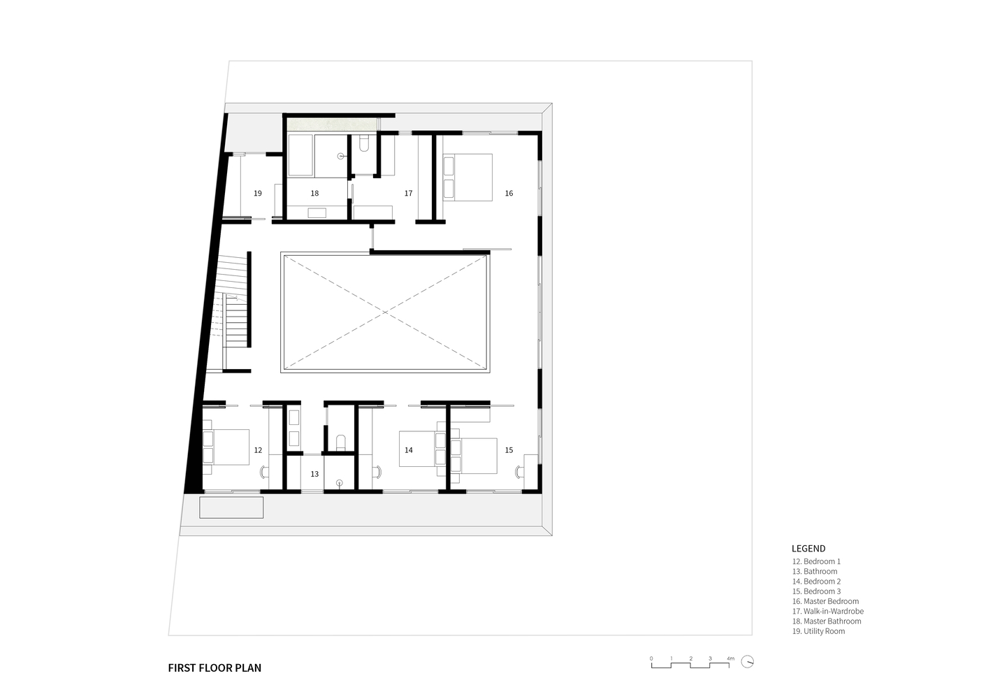
房子的中心是一个三层高的空地,顶部是一个木制的斜面天花板,天花板上的天窗使室内充满自然光。这个中心空间的设计灵感来源于客户与家庭的紧密联系,它创造了一个 “奇异 ”的空间,在水平和垂直方向上将一楼和二楼连接起来。
通往一楼的楼梯沿着棱角分明的边界墙壁而建,而二楼的楼梯则与边界墙壁垂直,使光线能够透过楼梯间的空隙。在一楼,走廊环绕中央空隙,通过大型推拉门连接主卧室和儿童卧室。地板四面向外悬挑,采用混凝土饰面,为下面的露台区域提供遮阳,同时也勾勒出外部轮廓。三面延伸的陡坡屋顶以细长的边缘细节为特色,统一了建筑语言。

屋顶层是一个私人娱乐室,再往上是一个隐蔽的屋顶空间,位于屋顶坡度的顶点,是欣赏周围景色的制高点。