借庭院与光影盒子巧思在宁静中聚焦食物与烟火气的日式烧肉店设计


该日式烧肉店设计是在视觉元素繁杂的城市环境里,TOUCH 建筑事务所为赤森餐厅赋予了 “反其道而行之” 的设计逻辑 —— 以简洁封闭的深灰盒状建筑,隔绝外界纷扰;用贯穿始终的红色元素,锚定日式烧肉的品牌基因;借庭院与光影的巧思,让食客在宁静中聚焦食物与烟火气,最终将一座 “简约盒子”,变成了承载味觉与情感的独特场域。


赤森餐厅的外观设计,以 “减法” 对抗城市的杂乱 —— 整体采用深灰色盒状结构,外立面覆盖带纹理的露骨料混凝土,没有多余装饰,仅以材质本身的粗糙肌理传递内敛质感。这种设计像一道 “视觉屏障”,巧妙隔绝了周围繁杂的环境,让行人的视线自然而然从喧嚣街景,收束到建筑本身;而混凝土的耐用性与光影表现力,又让这座 “盒子” 在不同时段呈现出丰富变化:白日里,阳光在纹理表面投下斑驳阴影;夜晚,室内灯光透出,为冷硬的混凝土注入温暖,成为城市中一处 “安静却有存在感” 的坐标。



一道鲜明的红色平面,是整个设计的 “灵魂线索”,既承担空间引导功能,又暗藏多重象征隐喻,为日式烧肉餐厅定下独特基调。这抹红色从建筑正面的入口开始延伸,一路贯穿至圆形中央庭院,像一条 “视觉红毯”,自然引导食客从室外步入室内。其意象丰富:既让人联想到日本国旗上的红日,呼应餐厅的日式基因;又形似穿透烤架的烤签,暗合 “烧肉” 的核心品类。更重要的是,红色本身与食欲、温暖强相关,与深灰外立面形成强烈视觉对比 —— 冷与暖、暗与亮的碰撞,不仅瞬间抓住注意力,更在踏入餐厅前,就唤醒食客对 “烟火气” 的期待,成为品牌最直观的视觉标识。


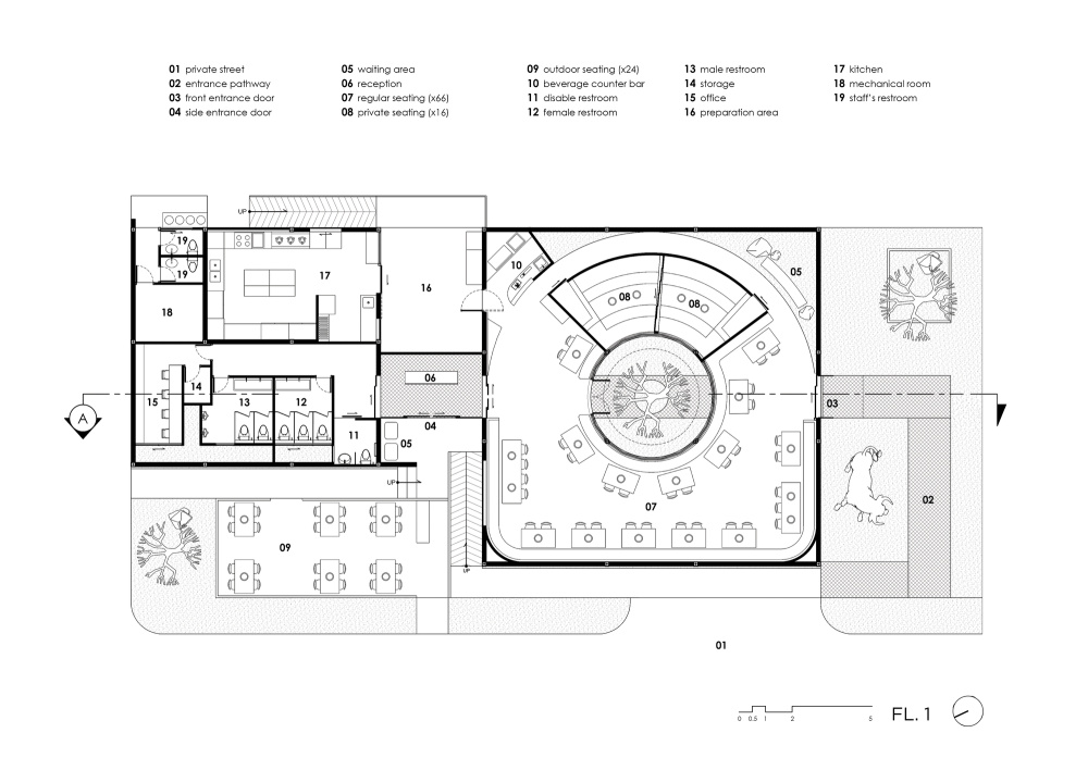
餐厅内部以 “功能分区明确、体验层层递进” 为原则,围绕中央庭院与动线设计,打造既实用又具沉浸感的用餐环境。核心功能区:庭院为心的用餐空间
主用餐区围绕一座 “全玻璃围护的圆形中央庭院” 布局,庭院中央矗立着一棵成年树木,绿意与天光透过玻璃洒入,让每一张餐桌都能望见自然景致,消解了封闭空间的压抑感。用餐区还设置两间日式高架包间,配备可滑动隔断 —— 拉开时可融入公共空间,闭合时则形成私密场域,适配朋友小聚、家庭聚餐等不同场景。


动线与过渡:从昏暗到明亮的情绪引导用餐区旁的狭窄柔光走廊,是设计的 “情绪过渡带”:地面铺设碎石,头顶光影蜿蜒流转,空间昏暗而静谧;当食客从走廊步入开阔明亮的主用餐区,视线瞬间被庭院绿意与红色元素吸引,形成 “先抑后扬” 的体验反差,让 “进入用餐区” 成为一场充满仪式感的转换。
后勤与户外:功能隐藏与视线引导


建筑后方的后勤区(厨房与设备间),通过过渡空间(主入口大堂)与主用餐区巧妙衔接,既保证后勤动线不干扰用餐体验,又让入口大堂成为 “缓冲空间”;建筑旁侧的户外座位区,则以一面巨大的红色墙板为视觉焦点 —— 墙板位置经过精准计算,既能遮挡周围杂乱环境,又将视线引向内部庭院,让户外用餐也能拥有 “不受打扰的宁静”。



材料选择延续 “内敛却有张力” 的逻辑:深灰色水洗混凝土不仅用于外立面,也延伸至室内部分,通过水洗工艺呈现出比外立面更细腻的纹理,既保证空间风格统一,又让光影在不同肌理上形成丰富层次。而建筑前方的亮红色公牛雕塑与郁郁葱葱的树木,是点睛的细节:红色公牛与贯穿空间的红色元素呼应,强化品牌视觉记忆;树木则与中央庭院的绿意形成 “内外呼应”,让自然感从室外延伸至室内,软化了混凝土与红色的硬朗感。



最终,赤森餐厅没有用繁复设计讨好眼球,而是以 “清晰的几何形态、克制的材料、有象征意义的色彩”,在喧嚣城市中筑造了一处 “向内聚拢” 的烟火秘境。它既是日式烧肉的味觉载体,更是 TOUCH 建筑事务所对 “如何让建筑在杂乱环境中保持自我、并与品牌深度共鸣” 的精彩回答 —— 让食客在品尝美食前,先被空间的 “宁静与温度” 打动。

