铁轨灵感催生的城市交融典范透明建筑里的灵活办公室设计
Oct 14 , 2025 |
Views :
464

该办公楼设计位于慕尼黑韦克斯维尔特尔 – 米特区(Werksviertel-Mitte)的中心地带,靠近市中心,瓦克大厦(Wacker House)在一栋统一的建筑内打造了一个充满活力且灵活多变的工作场所,能够将办公、文化、娱乐和购物元素精彩地融合在一起。瓦克大厦通过一座透明的建筑展现自身,其内部与外部之间有着紧密的联系,并以一种通透、热闹且引人入胜的方式与周边社区相连。建筑呈现为一个大型的统一网格结构,带有独特的曲线特征,其灵感源自韦克斯维尔特尔地区曾经的铁轨,建筑朝向该区域的一个公共步行区开放。







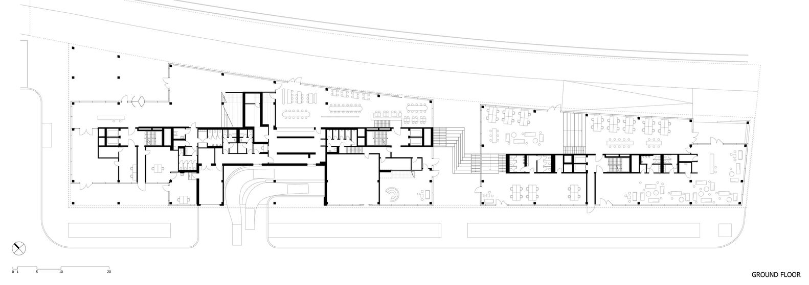
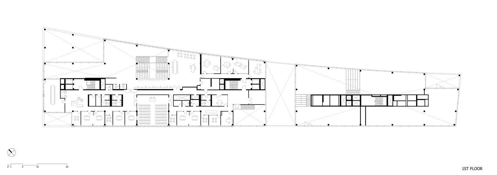
充满活力的城市空间 – 为了与周边社区相融合,底层设有丰富的零售商铺、灵活的办公空间和共享办公设施,所有这些都设置在一个挑高两层的空间内,建筑中心还设有一个公共开放的拱廊。朝向各个方向的透明且显眼的入口增强了建筑在其多样的功能内容与周边城市空间之间建立联系的能力,助力该建筑成为城市中的一个新地标。







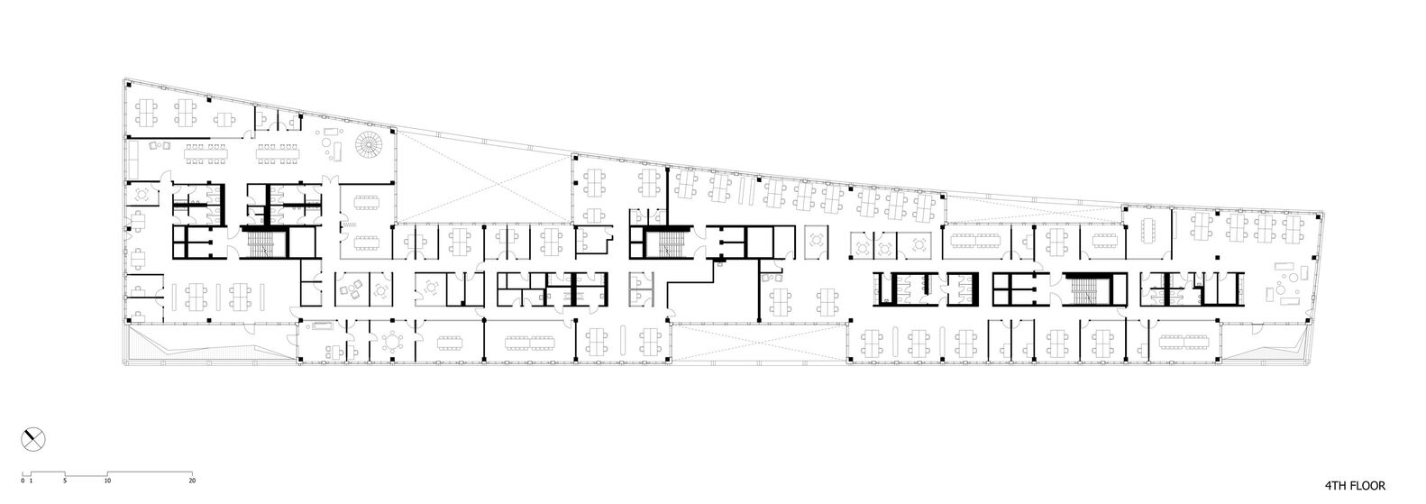
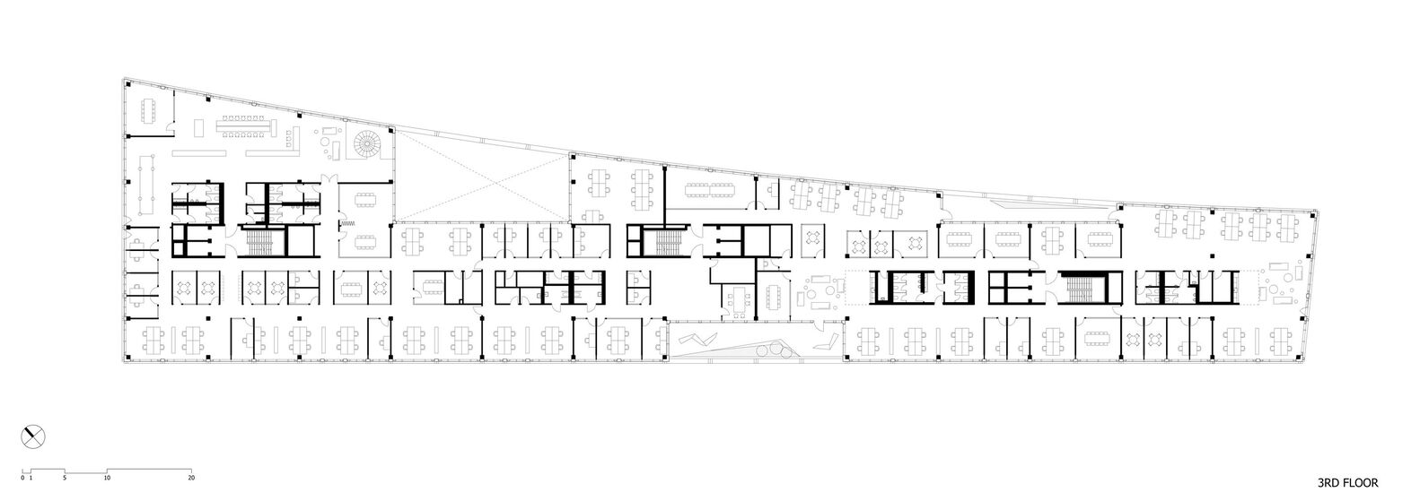
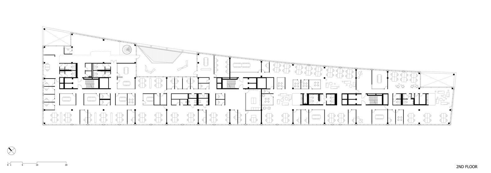
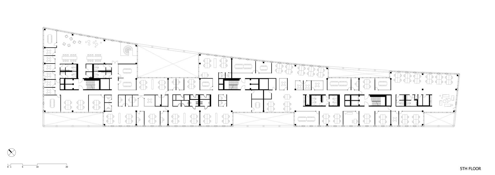
建筑的上部由围绕着锯齿形布局的四层办公区域组成,开放式且灵活的办公空间格局在一系列不同高度的外部绿色庭院周围形成了内部循环。在建筑内部,三个核心筒实现了办公楼层之间以及与建筑底部的连接。







这些庭院既有助于将自然光引入建筑的大面积楼层区域,又能在整个建筑体量中最大限度地提升微气候质量,同时还有助于大幅降低热岛效应。建筑整体的网格结构由内部和外立面的预制构件构成,既缩短了建筑工期、降低了建造成本,又通过类似浮雕的外立面结构为大面积的窗户部分增添了被动遮阳功能。建筑中采用了可持续材料,如再生混凝土和铝。
























