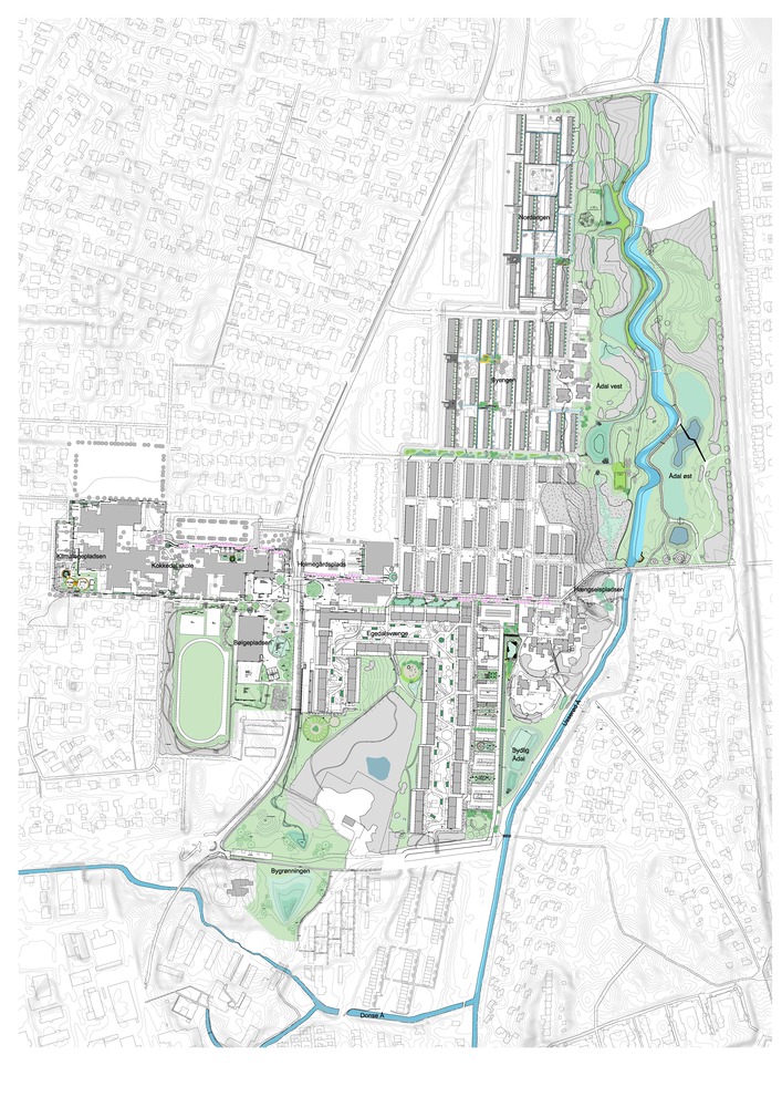
重新思考并连接支离破碎城市区域拉近自然与居民距离的公园设计
科克克达尔气候适应项目是一个大型城市项目,其目标是抵御气候变化、改造和改善该社区,该社区存在洪水频发和社会动荡的问题,其特点是犯罪、不安全和冲突地区遍布整个地区。科克达尔 69 公顷的区域毗邻乌瑟罗德河,因此近年来遭受了严重的洪灾。该地区包括一所学校、一家日托所、一家疗养院、一片未开发的洪泛区和许多公寓楼,其中包括两座大型补贴住房综合体。该项目的目的有两个:储存洪水和增加雨水的地表延迟,同时改善城市生活。
该项目包含一个广泛的气候适应解决方案目录,约有 35 个干预点。雨水被截留在容量为 5 年一遇的水池和水箱中–更大规模的降雨仍可应对,不会造成严重破坏。所实施的雨水截留项目消除了未来 30-40 年的洪水风险,这些子项目既可用作雨水管理,也可用作社会活动空间,如花园、活动区、运动路径、自然操场以及可用于学校科学教育的区域。
过去,雨水被隐藏在地下的管道中,而现在,雨水管理在地表的系统中显现出来,为城市提供了新的娱乐可能性。现在,人们可以沿着水道从小型水池到渗水道和沟渠,一直流到大型水池和乌瑟洛德河。所有的水都会通过雨水床和水池等净化元素流过。蓝色和绿色元素现已成为科克达尔的组成部分。乌瑟罗德河的水质曾经很差,而且失去平衡。
现在,水生生态得到了改善,生物多样性也通过自然恢复得到了提高,从而使大自然中的物种更加丰富。此外,在不同的休闲区还修建了许多绿色滞留池或干池塘,现在植被和植物的变化很大。例如,一系列当地主题花园(如摩洛哥花园)都建有蓄水池,可蓄积雨水,以便在需要时淹没花园。该项目重新思考并连接了支离破碎的城市区域,拉近了自然与居民之间的距离,提供了新的娱乐可能性、更强的地方认同感,并在储存洪水的同时提高了居民的安全性。新的聚会点、广场以及锻炼和运动场所都对个人的健康产生了积极影响。
一项研究项目得出结论,新的城市空间除了解决技术上的雨水难题外,还为更广泛的文化、社会、活动和美学提升奠定了基础。该地区的社会和文化空间呈现出新的开放性和互惠性,该项目还增强了所有人的安全感和归属感。研究项目特别指出,现在有更多的妇女和女孩使用城区。居民们报告说,他们重新亲近了大自然,喜欢在绿地上举行大型聚会,这些绿地现在既诱人又方便。