把自然织进墨西哥老街和太阳慢慢聊的公寓楼设计
Aug 22 , 2025 |
Views :
1,089
新莱昂 207 号公寓楼设计灵感源于结构横梁与立柱的巧妙组合,这些构件自身便构成了建筑的外立面 —— 一个带有植被的网状隔膜,在室内与室外之间建立起动态联系。该项目位于墨西哥城的赛马场社区,通过沿整个外立面布置植被与周边环境相融合,使建筑与附近的树木浑然一体,同时为城市输送洁净的氧气。建筑底层向内退进,以拓宽人行道,促进行人与交通之间的和谐共处。
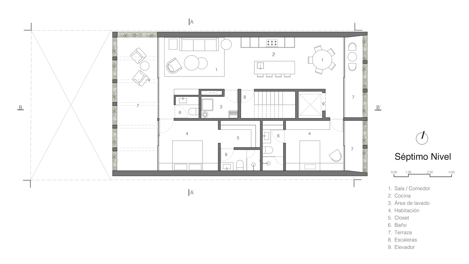
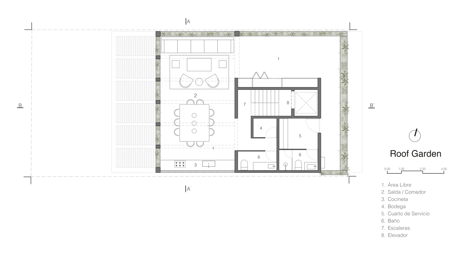
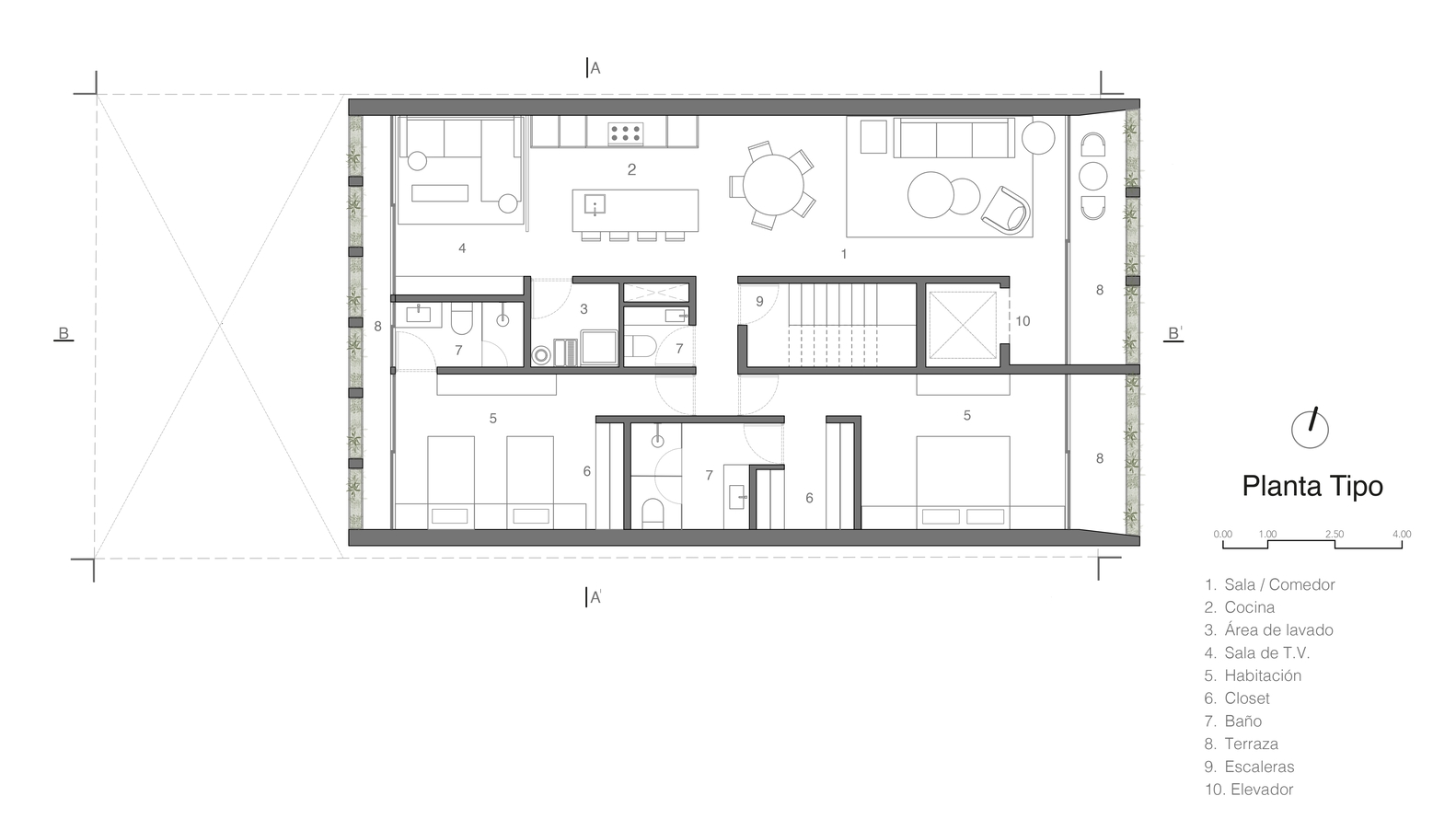
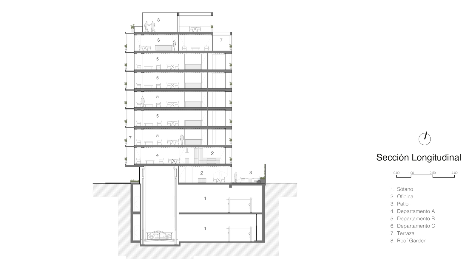
这座建筑共 8 层,包含两层地下停车场。底层设有大堂和办公区域,以及一个带阁楼的挑高空间,与雨果・桑切斯设计的花园相得益彰。花园、屋顶花园和露台上选用的植被包括狮爪蕨和垂枝黄茉莉,这些低维护植物很容易适应光照不足的空间。每层仅设一套公寓,直接与垂直交通相连,每套公寓包含客厅、餐厅、厨房、服务区、客用卫生间以及两间带独立卫生间的卧室。公共区域从建筑的一侧延伸至另一侧,末端为露台,有助于空气对流,并实现与外部的直接连接。

着色清水混凝土是建筑的主要饰面,其耐用性强且维护成本低,具有可持续性,还能随时间推移自然老化并与环境相适应。这种材料与用铁路枕木制成的木门搭配使用,室内公共区域采用花岗岩地面,私人空间则使用工程木地板。室内墙面延续了外部的饰面风格,辅以木质格栅和采用土色调涂料的墙面。
屋顶花园是核心的公共空间,它促进了办公人员和居民之间的交流,提供了城市全景视野,并配备了雨水收集系统,以减少对政府供水的消耗。外立面的混凝土网格和挑高空间将阳台与街道生活连接起来,同时作为双层隔膜保障了室内的私密性。总之,新莱昂 207 号大楼采用了多种可持续策略,提升了居民的生活质量,为城市环境做出了贡献,并改善了城市形象。