畅享多元功能与绝美山景个性与共享完美结合的公寓楼设计
Aug 22 , 2025 |
Views :
1,208
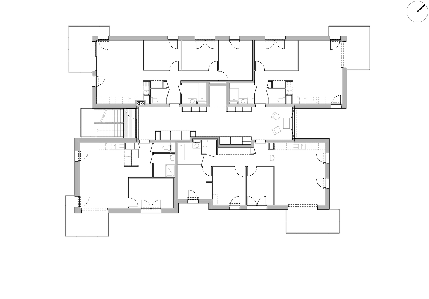
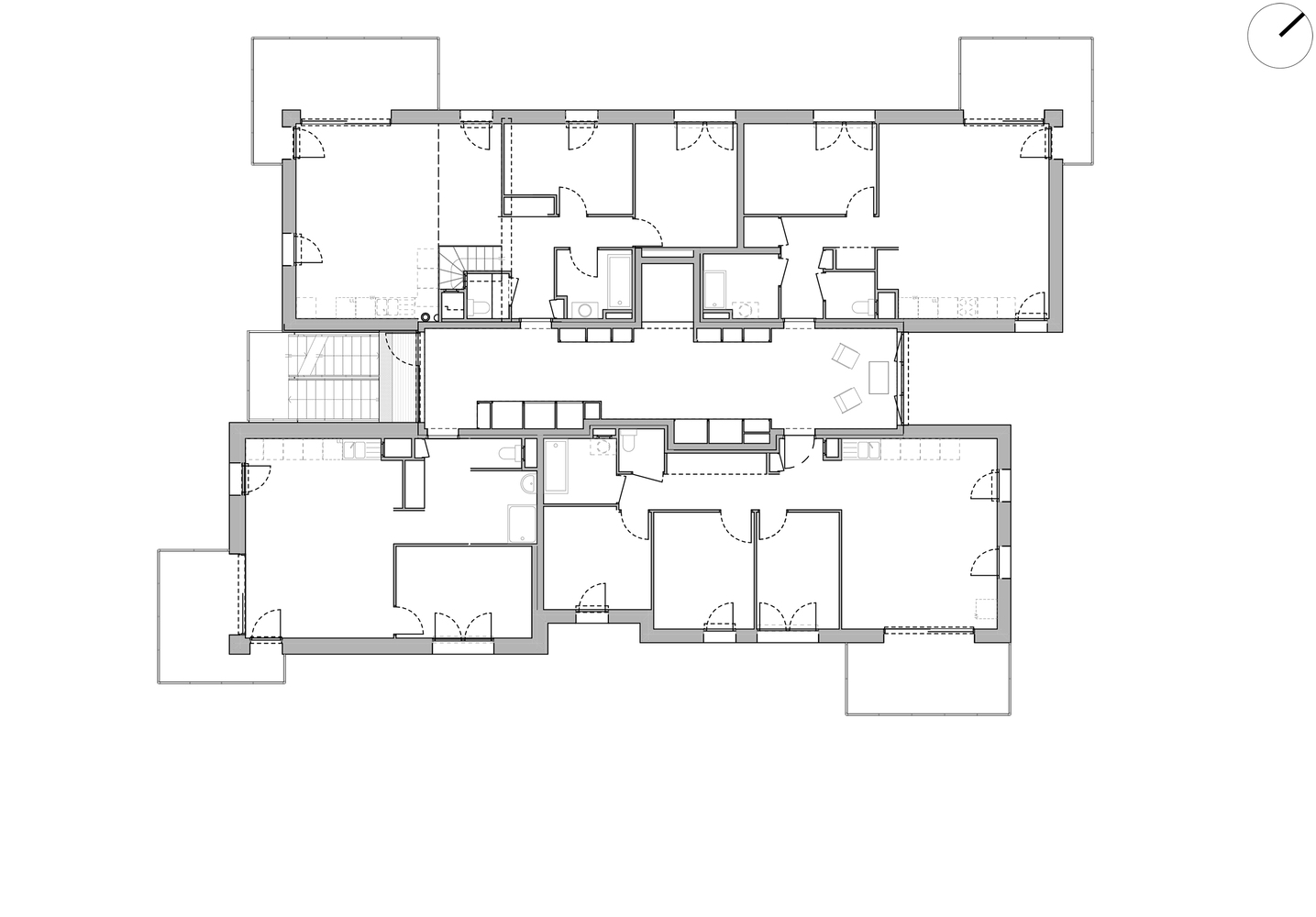
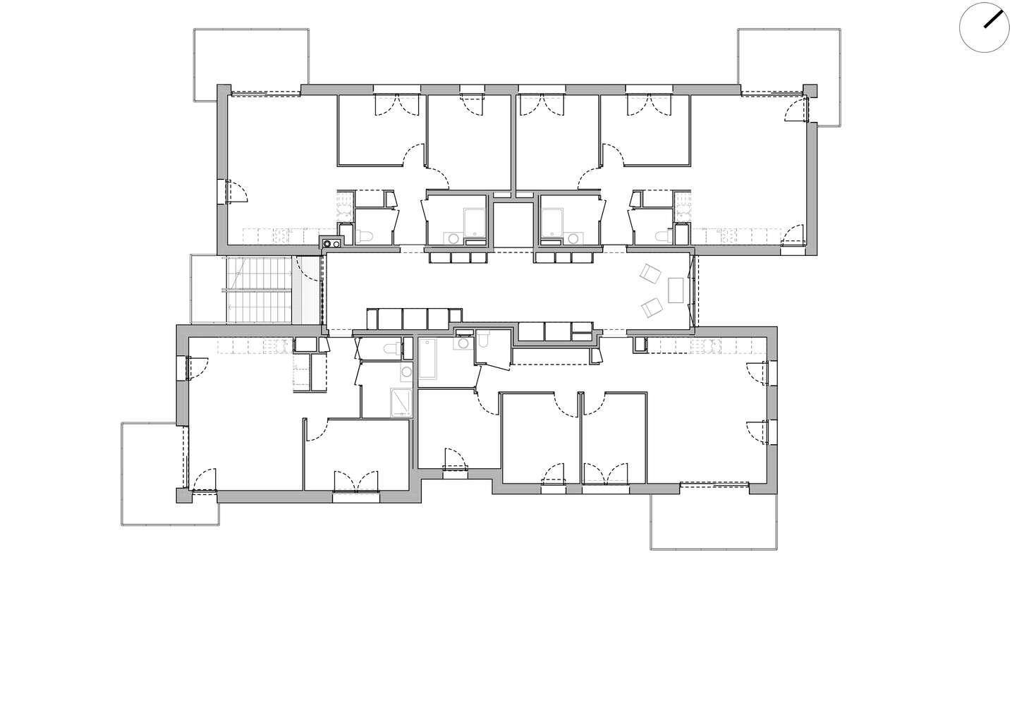
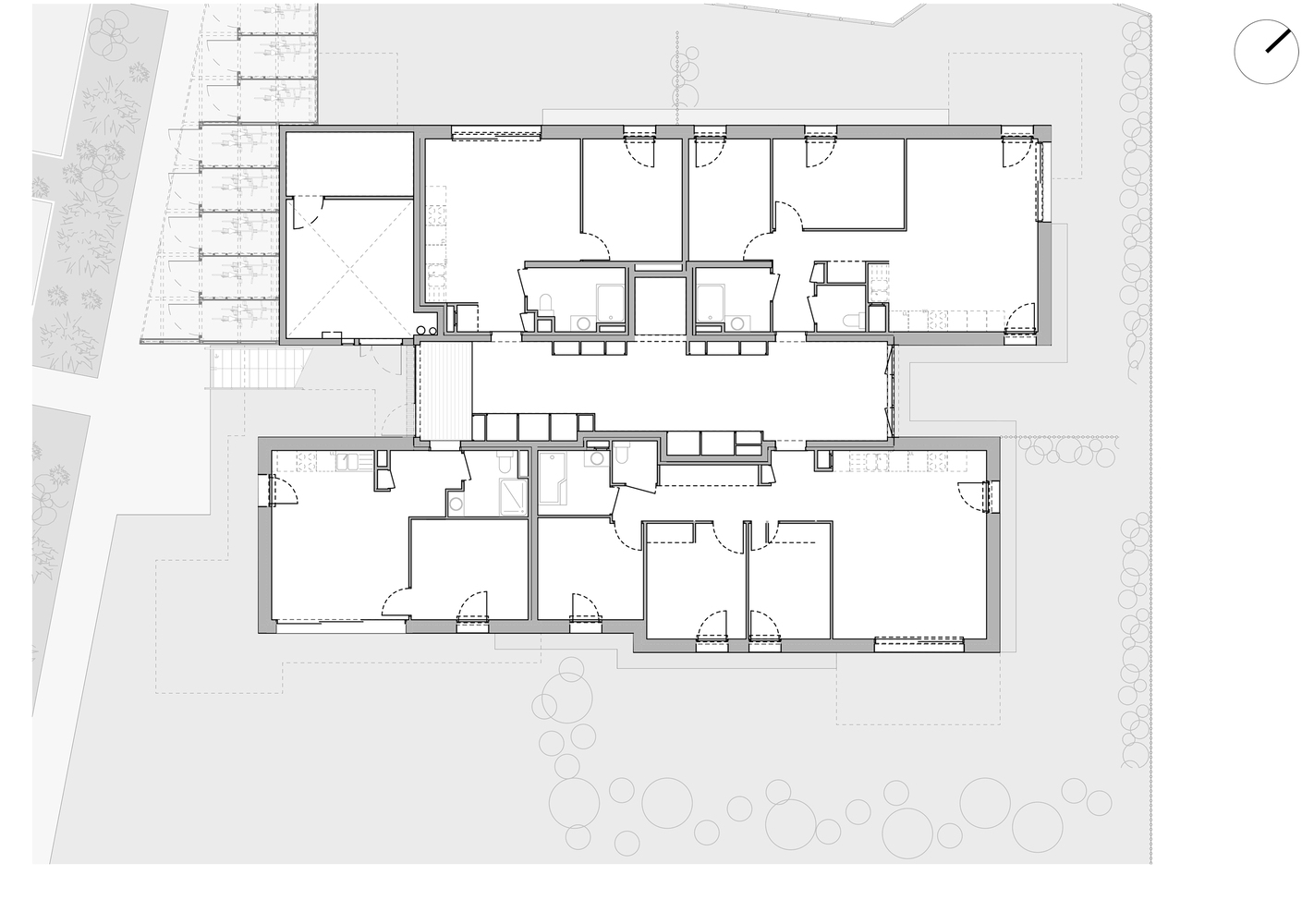
该公寓楼设计位于法国克罗勒的伊泽尔山谷,坐拥沙特勒斯山脉(Chartreuse)和贝洛多讷山脉(Belledonne)的绝美景色。它由当地市政府、一家社会住房供应商以及一群居民共同发起,他们希望采用可持续的方式设计并建造一个包含 15 套住房的项目(房型从一居室到四居室复式不等)。
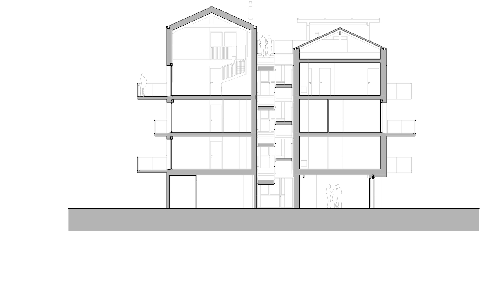
该项目的建筑设计是通过主题研讨会与未来居民共同设计的成果。建筑采用了多种材料(混凝土、隔热砖、木材等)建造,兼具一定的紧凑性,并融合了独立住宅、过渡型住宅和集体住宅的特定特点。建筑的一大特色是每个角落都设有大型阳台,打造出了双向甚至三向朝向的住房单元,可俯瞰场地周围的所有远景。每个单元都根据居民的需求进行了个性化定制,甚至包括外立面开口的尺寸和样式,赋予了该项目独特的个性。
通过外部楼梯可进入每一层,每层都通向一个中央公共区域,该区域被设计为同一层四套公寓的额外生活空间。这些公共区域配备了大型储物柜和共享设施(洗衣机、冰柜等),居民们还将其改造成了阅读角、共享办公空间和儿童游戏室。
公寓之间的一些隔断可以拆除,以便未来能有更大的灵活性。建筑的底层设有一个共享的公共空间,其配置类似一个小公寓,可用作接待室、会议室,或供家人和朋友居住。还为居民设计了一个全景屋顶露台,露台上配备了一个光伏凉棚,既能发电,又能在炎热季节为建筑降温。
在建筑脚下,为居民提供了绿地,包括一个种有果树的大型公共花园、一个菜园和一个堆肥箱。每套公寓至少有一个自行车储藏室和户外木框架地窖,以及户外停车位。屋顶的雨水会被收集起来用于浇灌。