流线型打造核心交流优化布局提升教学体验的学校设计
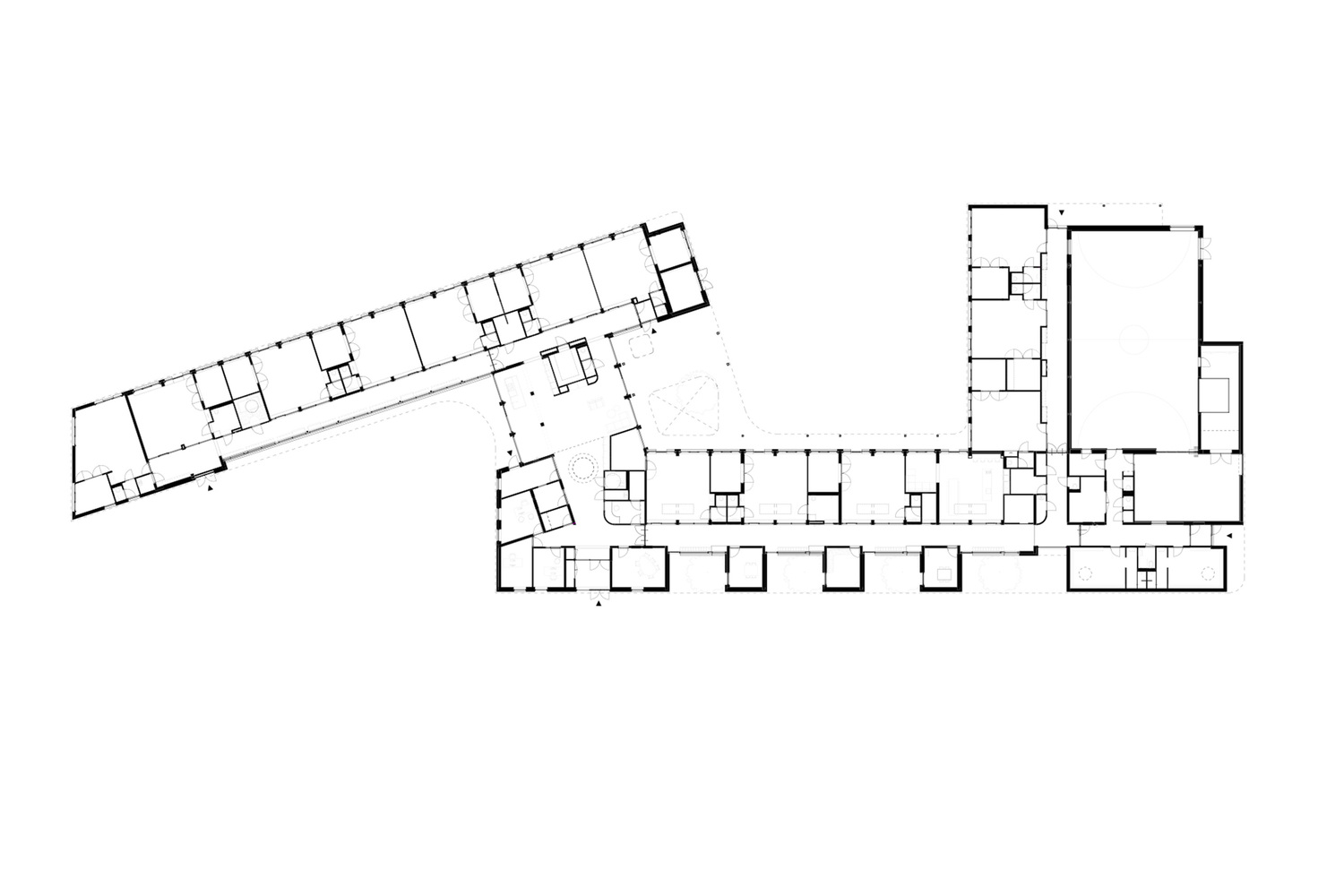
位于乌得勒支市祖伊伦区斯汤顿街的 SO Lux 学校大楼建于 1973 年,在空间和功能方面已无法满足当前特殊教育的需求。此外,这座建筑也非常陈旧。因此,决定对其进行翻新。目前的学校是一座单层建筑,由两个侧翼延伸覆盖整个场地。由于建筑较低,建筑的功能难以识别,也没有明显的入口标识。在学校里,小组教室紧邻长长的走廊,缺少一个 “核心” 空间或公共交流空间。新的设计基于现有的建筑横截面展开。斯汤顿街一侧的走廊区域比相邻的小组教室要低。通过在这个区域布置所有新的设施,我们既可以兼顾走廊区域和小组教室,而且这些设施的隔热外壳形成了新的建筑外立面。
建筑外立面像橡皮筋一样环绕着建筑,它不仅起到屋檐的作用,还可用作雨棚或连接元素。在斯汤顿街,过去建筑的扩建部分主导了外立面,而现在关注点转移到了中间的空间,即庭院。庭院成为了走廊和公共空间之间美丽的过渡区域。在两个建筑侧翼的交汇处,我们重新开放空间,打造了一个漂亮的公共交流空间,连接了两个户外区域。在这个位置,雨棚将两个侧翼真正连接成一所学校,形成了一个有顶的户外空间,可供学生在不下雨时玩耍,同时也作为公共交流空间的延伸。在雨棚呈流线型拉起的地方,我们将屋顶设施隐藏起来,并标识出了新的主入口。这个入口在斯汤顿街上十分醒目,令人瞩目。
学校的主要承重结构由砖石柱子和每三个网格设置一道的承重墙组成。在设计中,小组教室缩小为两个网格,以适应小班教学。第三个网格则作为与相邻小组教室的连接部分,包括一个侧室和一个紧邻小组教室的卫生间。这样,教师可以全面观察到学生小组的情况。在主入口周围是办公室,我们在现有的扩建部分设置了更专业的护理功能区,如语言治疗室和游戏监管室。教师团队室位置较为隐蔽,紧邻新的核心空间。
学校采用空气热泵供暖。小组教室通过地板供暖,并辅以中央空气处理系统预热的空气。体育馆则使用 Frenger 天花板进行供暖 / 制冷,并配备独立的空气处理系统用于通风。结合对建筑热外壳的优化,该校符合 2012 年现行建筑法令(新建建筑)中的 ENG 标准。