传承工业记忆培育创意未来旧工厂改造学校设计
这座位于考纳斯风景如画的市中心的学校设计是一处重要的工业遗址 —— 这里曾是立陶宛最大且最重要的印刷企业之一 “Spindulys” 的所在地,该印刷厂从 1928 年运营至 2009 年。尽管这座按照两次世界大战之间典型的工业建筑设计建造的印刷厂在建筑方面并不被认为是有价值的结构,但它远不止是一个工业设施。它是考纳斯市在文化、经济和历史方面具有重要意义的一部分 —— 当时特别重要的出版物在这里印刷,甚至立陶宛共和国的硬币也在这里铸造(包括 1925 年、1936 年和 1938 年系列)。
同样重要的是,考纳斯作为一座曾经的工业城市,有其独特的个性,保存下来的建筑或其部分有助于维护这种城市身份。因此,考虑到历史背景和建筑的潜力,决定不拆除它,而是通过更新外部和调整内部布局以实现新的用途来使其重焕生机,同时保留建筑的体量和独特的工业结构。
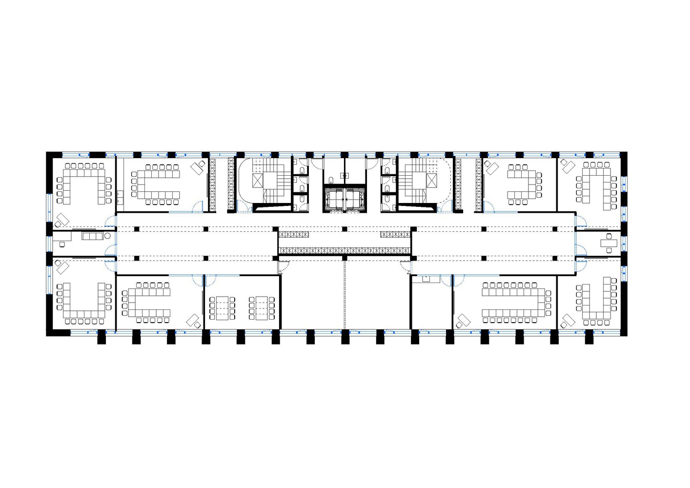
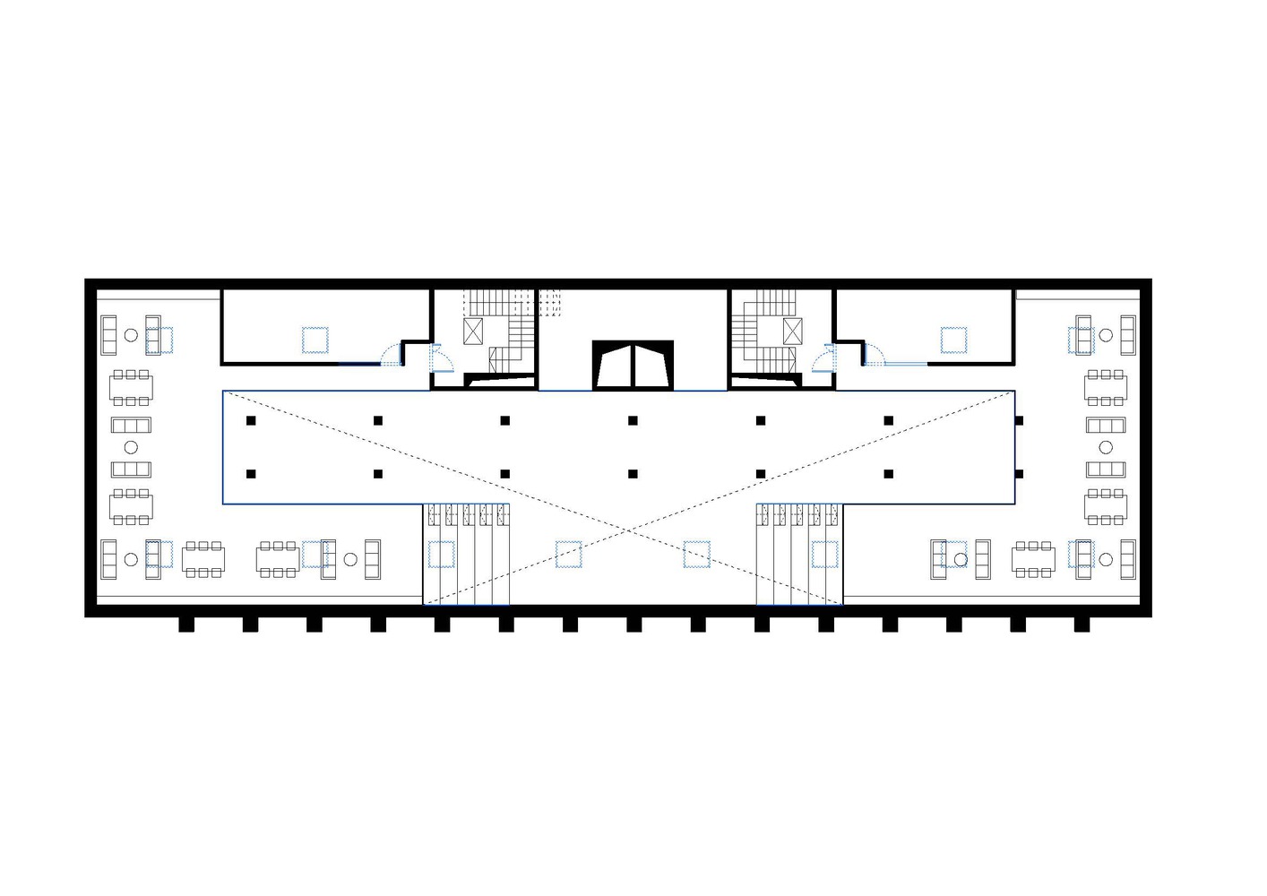
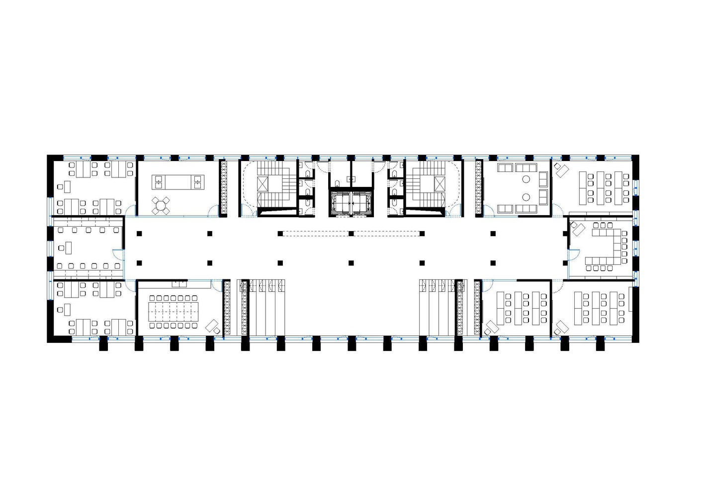
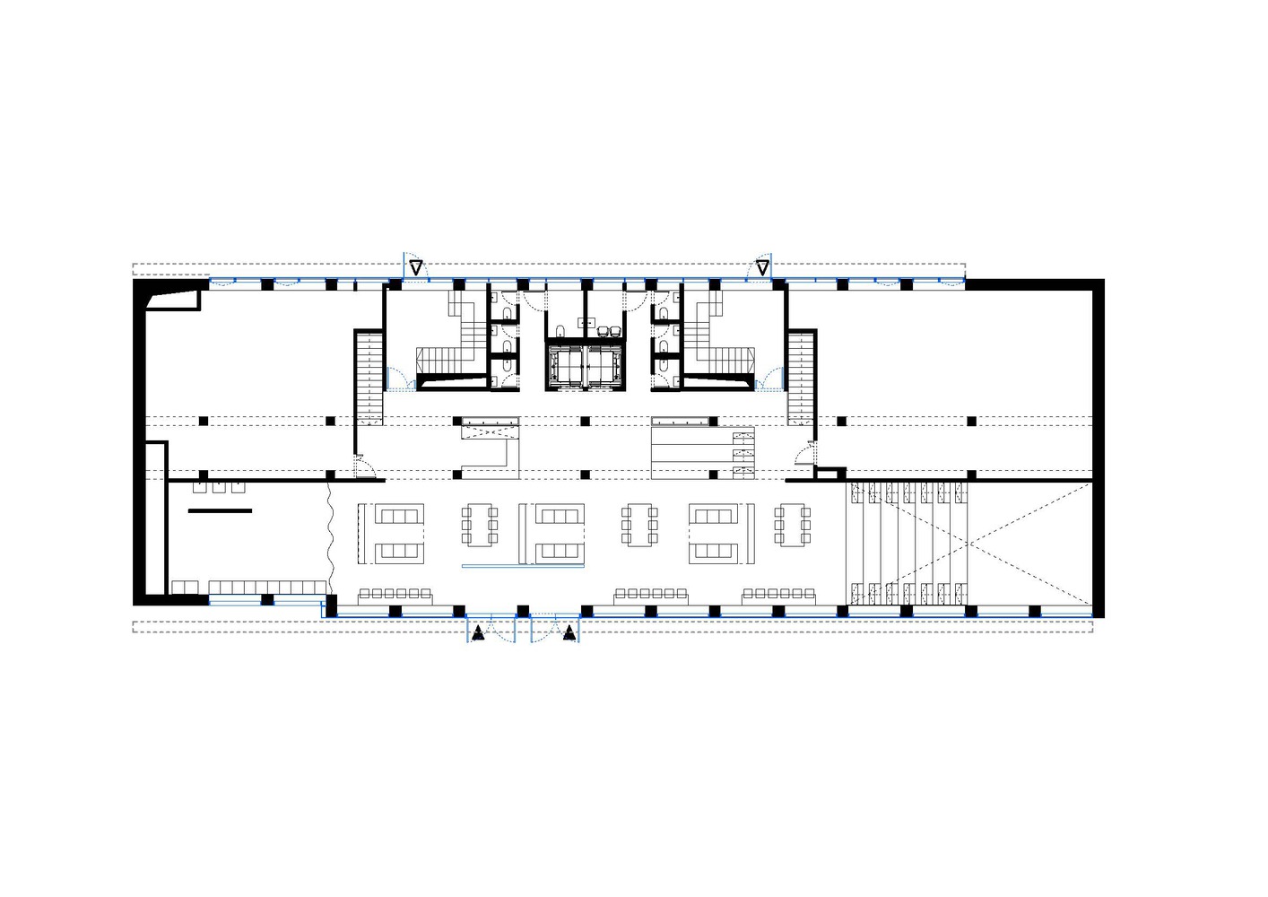
建筑改造的目标是在不失去建筑特色的前提下,使其适应现代非传统学校的需求:为不同的活动创造功能齐全、高效的空间,易于修改,并在学校内营造充满活力、民主和自由的氛围。“英雄” 的明确理念对建筑和布局产生了重大影响 —— 在这所学校里,校长的孩子们直呼其名,而且没有校长办公室,也没有上课铃。这是一个清晰的空间结构,有安静、专注的房间,但主要的空间鼓励在聚集区进行激发灵感、创意和社区活动。这座建筑几乎每个空间都有多种功能,从不闲置:圆形剧场可用于学习、玩耍、表演和用餐,大厅是用于阅读、创意活动、与家长会面甚至跳舞的空间。
这所学校的目标不仅仅是一个上课的地方 —— 它努力成为一个充满活力、热闹的空间,学生、教师、家长甚至当地居民在这里相聚。因此,一楼向公众开放 —— 公共空间、体育馆和圆形剧场不仅用于教学,还用于举办活动、市场、研讨会和表演。所有这些决定反映了一种共同的愿望,即创造一座不与城市隔绝的建筑,而是融入环境,使其与城市及其居民的节奏相契合。建筑的尺寸、体量和形式没有改变。
翻新后的建筑外立面使用了光滑且有立体感的镀锌钢板,赋予了建筑工业特色。每块钢板都是独一无二的,图案各异,并通过反射对环境和季节做出反应,通过光影笔触创造出活泼且富有动感的视觉效果。为了强调传承下来的工业特色,镀锌板装饰元素也体现在室内元素和室内圆形剧场中 —— 这些细节创造了不同的美学体验,并延伸了学校的理念,即孩子们在真实材料的环绕下成长。
这项工作既是一种建筑理念,也是一种教育理念,现代学校不仅是一个学习空间,也是一个创意自由的空间,激励孩子们在学术成就和个人发展方面取得进步。通过秉持 “英雄” 理念,这座建筑已成为城市城市结构中一个新的振兴关键元素,连接了过去和现在,创造了一个独特的空间,教师、孩子、家长和公众可以共同学习和成长。