黑白灰与艺术感的视觉工业风与精致感的对话的工作室设计

当办公的理性高效与居住的温暖松弛在同一建筑中相遇,是否必然走向功能的割裂与美学的冲突?设计师奥尔加・季先科(Olga Tishchenko)给出了否定答案。她为俄罗斯一家主营道路工程策划与技术监督的年轻企业,打造的“办公住宅综合楼”,以“业务属性为根、员工需求为魂、美学表达为形”的三维逻辑,打破了传统企业空间的功能边界,构建出“工作-生活无缝衔接”的全新场域,为专业型企业空间设计开辟了先锋范式。
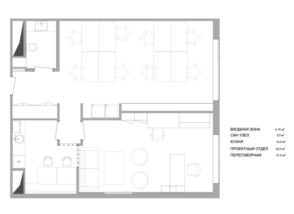
一、功能复合:解构“办公+居住”的空间逻辑




项目的核心需求,源于企业“道路工程策划与技术监督”的业务属性——高强度、长周期的项目协作,让员工常面临“工作与生活难以平衡”的痛点。奥尔加・季先科并未简单将“办公区”与“居住区”进行物理分割,而是通过“功能互补、场景渗透”的设计策略,让两个空间形成有机共生的整体。





办公区以“极简理性”为基调,精准匹配工程技术类工作的专注需求。开放工位区采用大面积的灰白配色,弱化视觉干扰,人体工学办公椅与线性吊灯的组合,既保障了长时间工作的舒适性,又以简洁的线条强化了空间的秩序感。会议室的设计堪称“功能与美学的平衡术”:玻璃砖墙的运用巧妙解决了“采光需求”与“隐私保护”的矛盾,自然光透过半透明的砖体洒入室内,形成柔和均匀的光线环境;球形吊灯的圆润造型与艺术挂画的色彩点缀,则打破了办公空间的刻板感,为商务洽谈与项目研讨注入恰到好处的设计温度,传递出企业专业而不失活力的品牌气质。





与办公区的理性形成鲜明对比,居住区以“温暖松弛”为核心气质,为员工营造“家”的归属感。卧室空间采用质感布艺墙面,搭配柔软的温馨床品,从触觉与视觉双重维度构建休憩场景;大面积的落地窗彻底打破室内外的物理边界,让自然光线成为空间的“天然装饰”,清晨的阳光与傍晚的余晖,为卧室赋予了随时间变化的动态美学。值得称道的是独立书房的设计,它成为“办公与居住”的过渡地带——延续了办公区的极简风格,金属网格椅、几何艺术画与功能书架的组合,让工作场景能够在居住空间中自然延伸,员工无需在“办公状态”与“生活状态”之间进行生硬切换,实现了“碎片化工作需求”与“完整生活体验”的无缝衔接。




材质的选择与搭配,是奥尔加・季先科传递空间叙事的核心语言。她以企业“道路工程”的工业基因为起点,引入混凝土、金属等工业材质,同时以大理石、布艺等精致材质进行平衡,让“工业硬核”与“生活温情”在碰撞中达成和谐。办公区的材质运用极具“在地性表达”:混凝土质感的地面,暗合道路工程的“基建属性”,传递出专业、可靠的视觉感受;金属网格吊顶则在功能上实现了管线的隐藏与空间的挑高感,在美学上强化了工业风的秩序感。这种材质选择并非单纯的风格复刻,而是对企业业务属性的空间转译。



居住区的材质则转向“情绪赋能”:大理石墙面的细腻纹理、布艺沙发的柔软触感,为空间注入“家的温度”;卫浴间的艺术瓷砖以独特的肌理与色彩,打破了传统卫浴空间的单调,让日常洗漱场景也成为一种美学体验。玻璃砖墙作为贯穿两个空间的“材质线索”,起到了至关重要的衔接作用。它在办公区保障隐私与采光,在居住区增强空间通透感,其通透的几何形态成为整个建筑的视觉焦点,让工业风的粗犷与精致材质的细腻形成对话,最终达成“刚柔并济”的空间气质。



整个空间以黑白灰为基础色调,构建出极具辨识度的视觉系统,这种色彩选择既呼应了工程技术行业的“理性严谨”,又为艺术装置的介入预留了充足空间。色彩的运用遵循“功能适配”原则:办公区的深灰墙面营造专注氛围,居住区的米灰布艺传递温暖情绪,卫浴间的深蓝瓷砖则增添了空间的层次感与私密性。黑白灰的谱系在不同空间中延伸出丰富的情绪层次,避免了单色运用可能带来的沉闷,实现了“色彩服务于功能场景”的设计目标。



艺术装置则以“隐性赋能”的方式,成为空间的精神内核。抽象艺术挂画、几何形态的灯具、金属质感的摆件,如同散落在空间中的“设计密码”,既打破了黑白灰基调的单调,又以极简的造型语言与整体风格保持统一。这些艺术元素并非刻意的装饰堆砌,而是与空间功能、材质气质深度融合,例如会议室的艺术挂画与工程图纸的理性形成“感性互补”,卧室的几何摆件与布艺墙面的柔软形成“视觉平衡”。




座办公住宅综合体的突破性,不仅在于“办公+居住”的功能创新,更在于它为专业型企业空间设计提供了全新的思考维度——空间设计不应是“功能的简单堆叠”,而应是“业务属性、员工需求、美学表达”的三维共振。对于工程技术、项目策划等需要深度协作的企业而言,奥尔加・季先科的设计证明了“办公住宅综合体”绝非概念噱头:它通过办公区的理性设计提升协作效率,通过居住区的温暖氛围缓解工作压力,通过材质与美学的统一构建企业认同感。这种设计直接回应了当代企业“以人为本”的管理理念,让空间成为“提升员工幸福感、增强企业凝聚力”的重要载体。当道路工程的硬核工业基因,遇见设计界的先锋美学表达,最终诞生的不仅是一栋建筑,更是企业精神与员工生活方式的空间具象。奥尔加・季先科的这一作品,以“功能服务于需求,美学赋能于功能”的核心逻辑,为未来企业空间设计写下了极具参考价值的注脚——好的企业空间,应当让工作更高效,让生活更美好。