复古优雅欧洲风味与现代自然巴厘岛灵魂碰撞的餐厅设计
该餐厅设计是在印度尼西亚乌布的热闹肌理中,SEEU 集体工作室跳出 “传统巴厘岛风格” 的惯性,为一间名为 “布里餐厅” 的场所,打造了一场 “欧洲文化与当地特色” 的精彩对话。这里不只是吃法式美食的地方,更是乌布岛上唯一拥有奶酪工厂的独特空间 —— 设计师用现代感的表达打破常规,让法式优雅与巴厘岛的鲜活自然相遇,每一处设计都在诉说:在乌布,也能邂逅地道的欧洲风味与创意。
乌布的多数餐饮空间,常以传统巴厘岛元素(如茅草屋顶、木雕、藤编)为设计语言,而布里餐厅的客户却提出了更具挑战性的需求:“富有表现力、现代感,且与乌布惯常风格形成鲜明对比”。SEEU 集体工作室精准抓住这一核心,没有堆砌地域符号,而是用 “简洁的线条、大胆的空间层次、克制的色彩”,让餐厅在乌布的街巷中脱颖而出。
从入口开始,餐厅就传递出 “与众不同” 的气质:没有传统的巴厘岛门廊,而是以利落的几何造型、通透的玻璃界面迎接访客,阳光透过玻璃洒进室内,光影在地面形成灵动的图案;室内没有繁复的木雕装饰,而是用大面积的留白墙面、悬浮式的家具,营造出 “现代却不冰冷” 的氛围。这种 “反常规” 不是对当地文化的背离,而是以新的视角重构 “乌布印象”—— 让游客在熟悉的巴厘岛语境中,遇见意想不到的欧洲现代美学,刚踏入餐厅,就对即将到来的 “法式美食体验” 充满期待。
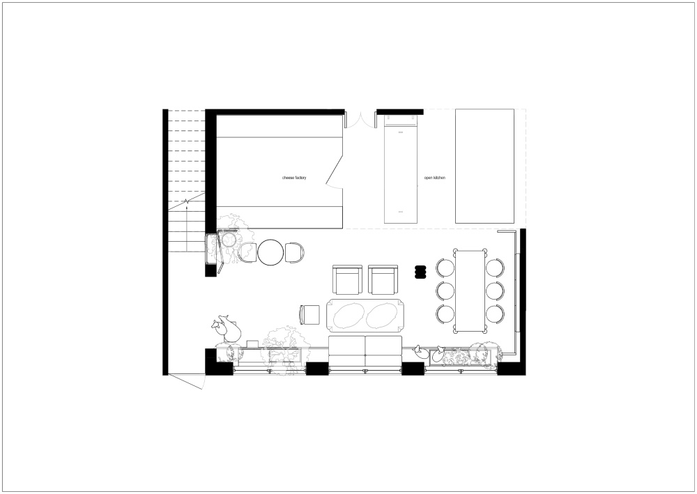
布里餐厅的核心特色有二:一是主打法式风味的欧洲美食,二是拥有乌布岛上唯一的奶酪工厂。SEEU 集体工作室没有让这两个特色 “隐藏” 在空间里,而是让它们成为设计的 “显性表达”,让 “吃” 与 “看”“感” 深度结合。为了呼应法式餐饮的精致感,设计师在用餐区的设计上注重 “仪式感与舒适度的平衡”:餐桌选用简约的实木台面,搭配线条纤细的金属餐椅,既有欧洲餐厅的优雅,又不会显得拘谨;灯光设计偏向 “柔和的局部照明”—— 每桌上方的吊灯精准照亮餐碟,让食物的色泽更诱人,而空间其他区域的光线则相对柔和,营造出 “私密且温馨” 的用餐氛围;墙面偶尔点缀小幅欧洲风景画作或法式餐具陈列,不用刻意强调 “法式”,却让优雅感自然渗透。
作为乌布唯一的奶酪工厂,设计师特意采用 “透明化设计”,让奶酪制作过程成为餐厅的 “活景观”:用玻璃隔断将奶酪工厂区域与用餐区隔开,访客坐在餐桌旁,就能清晰看见工人制作奶酪的全过程 —— 从原料搅拌到模具成型,再到奶酪的发酵储存,每一步都充满 “手工的温度”。这种设计不仅满足了 “引人入胜” 的需求,更让 “新鲜” 成为餐厅的核心竞争力:食客亲眼见证奶酪的诞生,再品尝用新鲜奶酪制作的法式料理,味觉与视觉的双重体验,让用餐变成一场 “沉浸式的欧洲美食之旅”。
SEEU 集体工作室对 “欧洲文化与当地特色融合” 的理解,从不是 “元素的简单混搭”,而是 “精神层面的共生”。他们没有在法式空间里硬塞巴厘岛木雕,而是让 “巴厘岛的自然基因” 悄悄融入现代设计:材质的平衡:室内大量使用乌布本地的天然木材,如餐桌、墙面饰面板,木材的温润质感中和了现代金属与玻璃的冷冽,像巴厘岛的阳光一样,为法式空间注入自然温度;光线的借用:借鉴巴厘岛建筑 “与自然共生” 的理念,餐厅开设大面积的天窗与侧窗,让乌布的自然光线自由涌入,白天不用开灯,空间也能被阳光填满,光影随时间变化,为静态的餐厅增添 “自然的动态感”;植物的点缀:在餐厅角落、奶酪工厂的玻璃隔断旁,摆放巴厘岛本地的绿植,如热带蕨类、琴叶榕,叶片的舒展与法式空间的规整形成 “柔与刚” 的对比,既呼应了乌布的热带风情,又让空间多了份生机与呼吸感。
在乌布,布里餐厅早已不只是一间 “吃法式菜的餐厅”。它是 SEEU 集体工作室用设计打造的 “文化对话场”—— 在这里,法式的优雅遇见巴厘岛的鲜活,现代的简洁碰撞当地的自然,奶酪工厂的手工温度融合美食的味觉享受。每一位食客走进来,不仅能品尝到地道的欧洲风味,更能在空间里感受到 “不刻意却深刻” 的文化融合,这正是布里餐厅在乌布众多餐饮空间中,能成为 “独特存在” 的核心原因。