禅意花园亲生物生活传递光影和温暖的别墅设计
Aug 7 , 2025 |
Views :
1,191

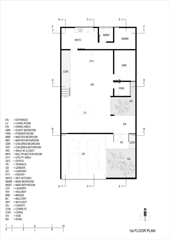
万隆 Singgasana 高档别墅设计是一座融合了当代设计与自然元素的建筑作品,营造出和谐且温馨的空间。这座三层住宅位于一个僻静的街区,其独特之处在于贯穿所有楼层的开阔挑高空间,使得光线、空间能够灵活互动,也方便家庭成员间交流沟通。





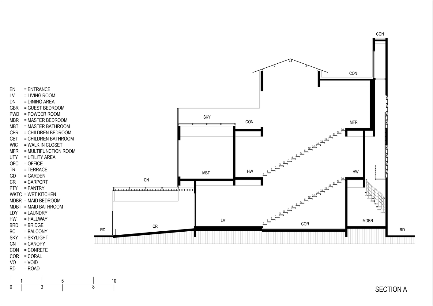
住宅外部设有一层由木条构成的辅助表皮,经过精心设计,可提供遮阳和隐私保护。这一设计不仅增添了当代优雅气息,还具有实用功能,确保住宅内部的舒适度。二层的辅助表皮巧妙地保护着主卧,在热闹的家中营造出一个私密的休憩之所。






穿过装饰着木条的巨大旋转门进入住宅,访客会先来到一个饰有室内花园的门厅,从外部世界到温馨室内的过渡宁静而平和。室内花园和门前的长凳作为公共空间,既方便与访客交谈,又能让人保持与自然的联系。






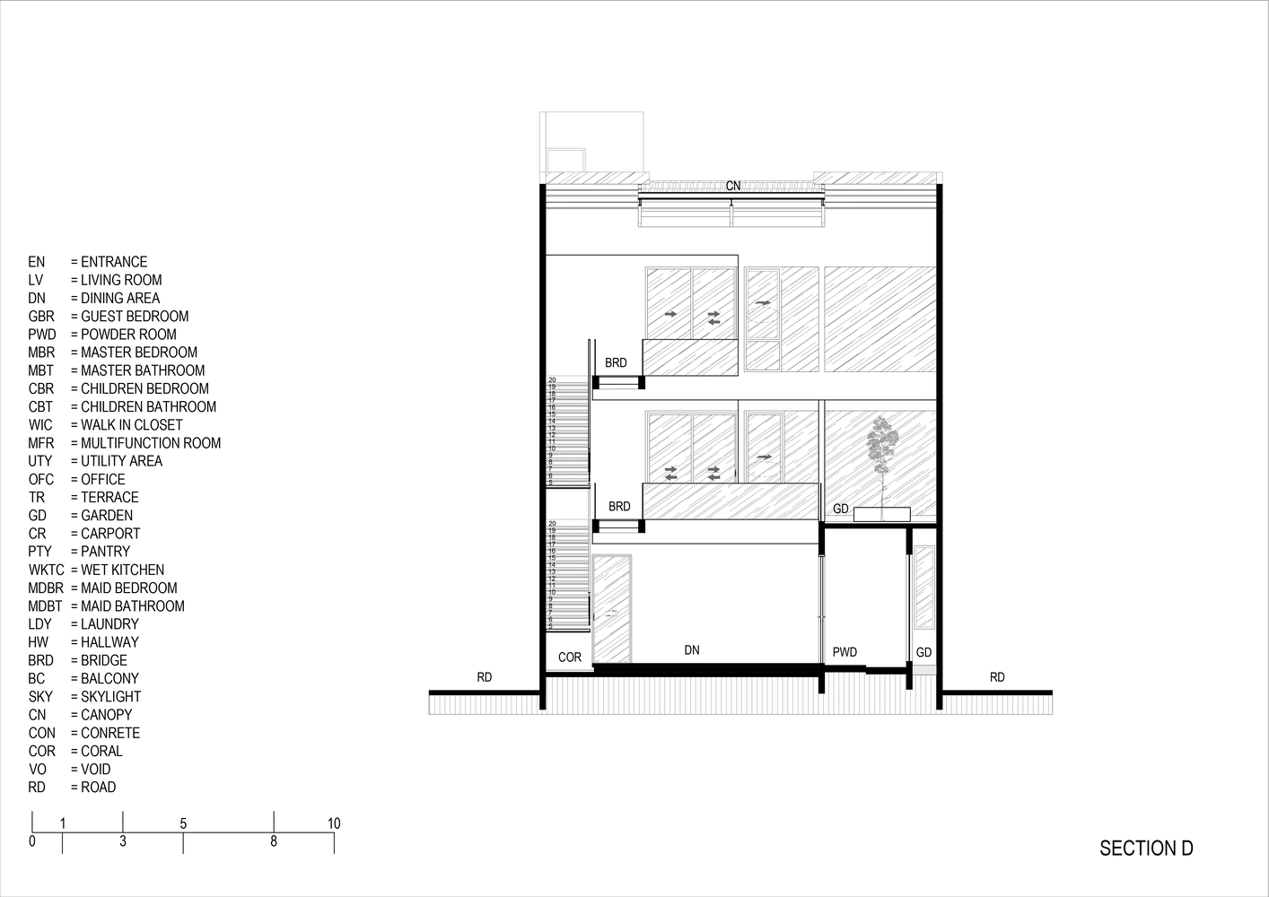
一层开放式的客厅和餐厅区域以挑高空间为特色,这一空间贯穿三层楼,为整个区域带来通风透气且轻松愉悦的氛围。挑高空间顶部设有天窗,让自然光洒满室内。楼梯设计颇具美学感,采用悬浮式设计,配有无框玻璃栏杆。楼梯下方的禅意花园为住宅增添了一抹自然色彩,在客厅空间中营造出宁静之感。





住宅的核心亮点是位于二层的主卧,其位置经过精心安排,正对着挑高空间。主卧的窗户后侧可移动,具有双重功能 —— 既方便父母与其他楼层的家庭成员交流,又能起到护栏的安全作用。主卧还有一个朝向室内花园的入口,被一棵枝叶繁茂的树木环绕。主卧内外的亲生物设计与自然完美融合,充足的自然光更是锦上添花。




三层设有儿童卧室、浴室以及一个带天窗的多功能室。这个多功能室目前用作摄影工作室,空间灵活实用,女主人可以在这里工作,同时沉浸在自然光中。整座住宅的设计采用整体化的生活理念,融合了当代美学、实用空间和与自然的深厚联系。