砖墙砌体浮雕纹理花格色彩友好温暖的住宅楼设计
Jul 28 , 2025 |
Views :
1,200
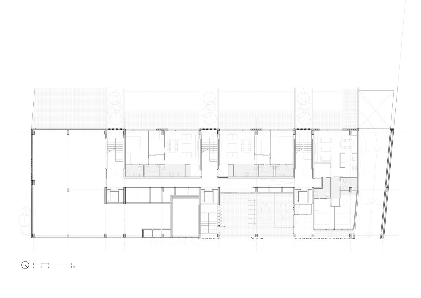
该住宅楼设计位于 L’Hospitalet de Llobregat 的一栋简陋的 “建造出租 ”建筑,共有 37 套住房,地处边缘地区,城市结构不断从工业区向住宅区转变,经济资源有限。设计选择的驱动力是寻找一种解决方案,既能利用场地的朝向、日照和居住舒适度等条件,又合理、经济、易于维护并能灵活适应未来的改造。
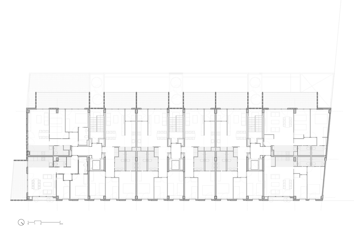
建筑由地下室、底层和五层上层组成,上层错落有致,在阁楼上创造出朝向合适的露台,充分利用屋顶作为住宅的优越部分。公寓大多采用通透式设计,使相对立面之间能够交叉通风。
日间区域得益于西南朝向,宽敞的露台是起居室的投影和延伸,朝向内院的小型公共公园。住宅和公共空间的机械装置采用集中化策略,从而改进了维护工作并优化了效率。
建筑立面采用耐用、高效、低维护的施工方案,同时使用了邻近工业建筑的典型材料。砌体是主要元素,浮雕、纹理、索具和花格都是用砌体制作的,并引入色彩作为简单的补充元素,使整个建筑群更加友好和温暖。
面向莱昂纳多-达-芬奇街的立面受阳光照射较少,大部分房间都是卧室,采用了有规律的开口节奏,并有外部百叶窗保护,可以控制隐私和室内照明,而西南立面则是通透的,起居室和公共区域都有大阳台,并有可单独和集中调节的伸缩式遮阳篷。