极简的柔与刚有机形态与精致细节的融合大平层设计
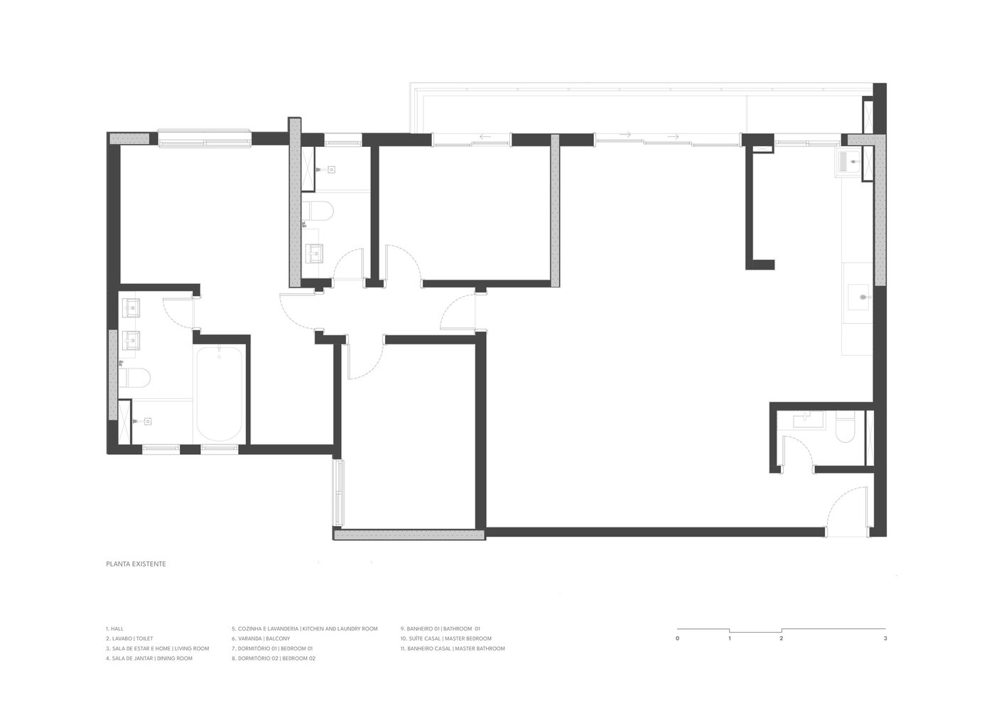
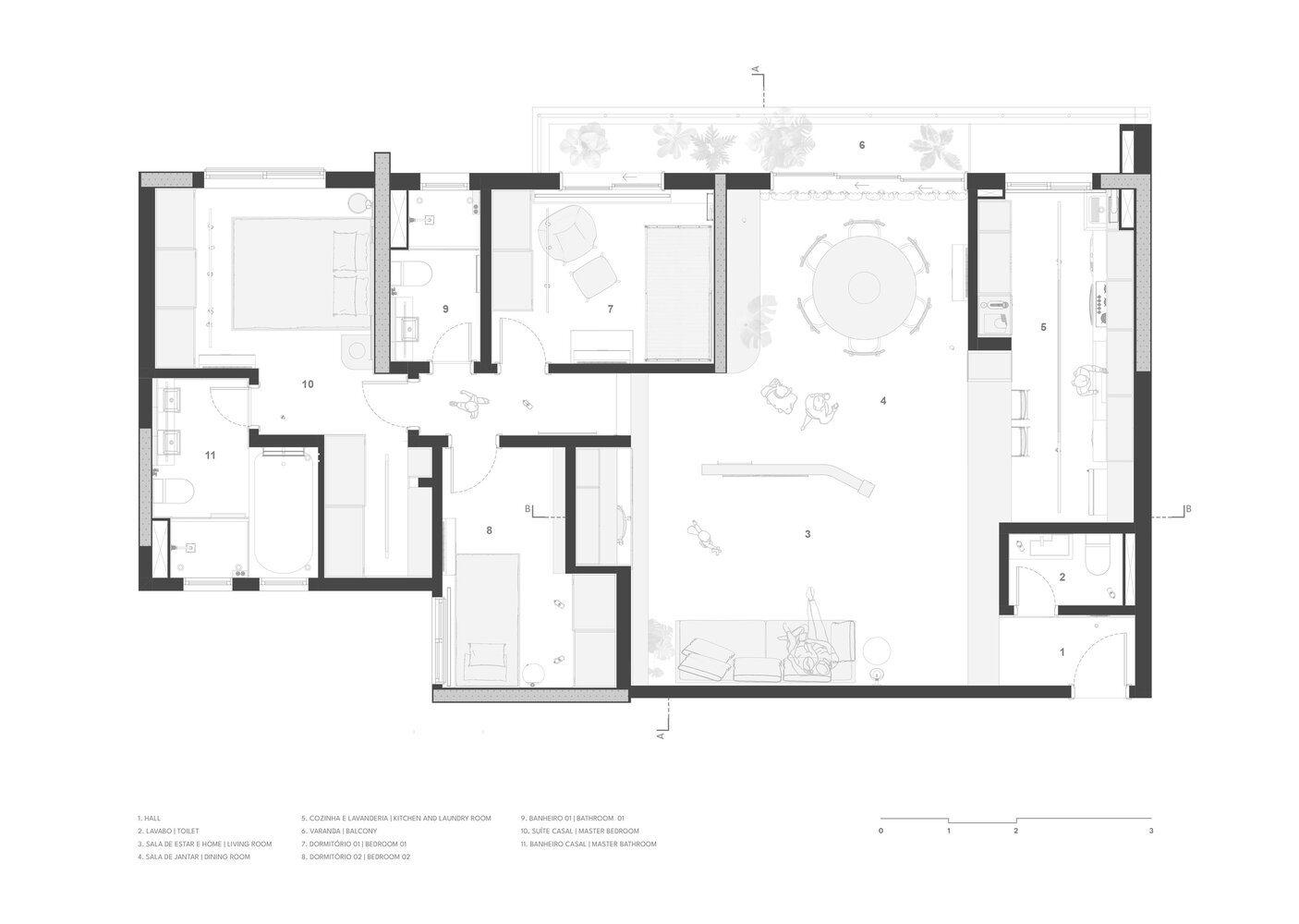
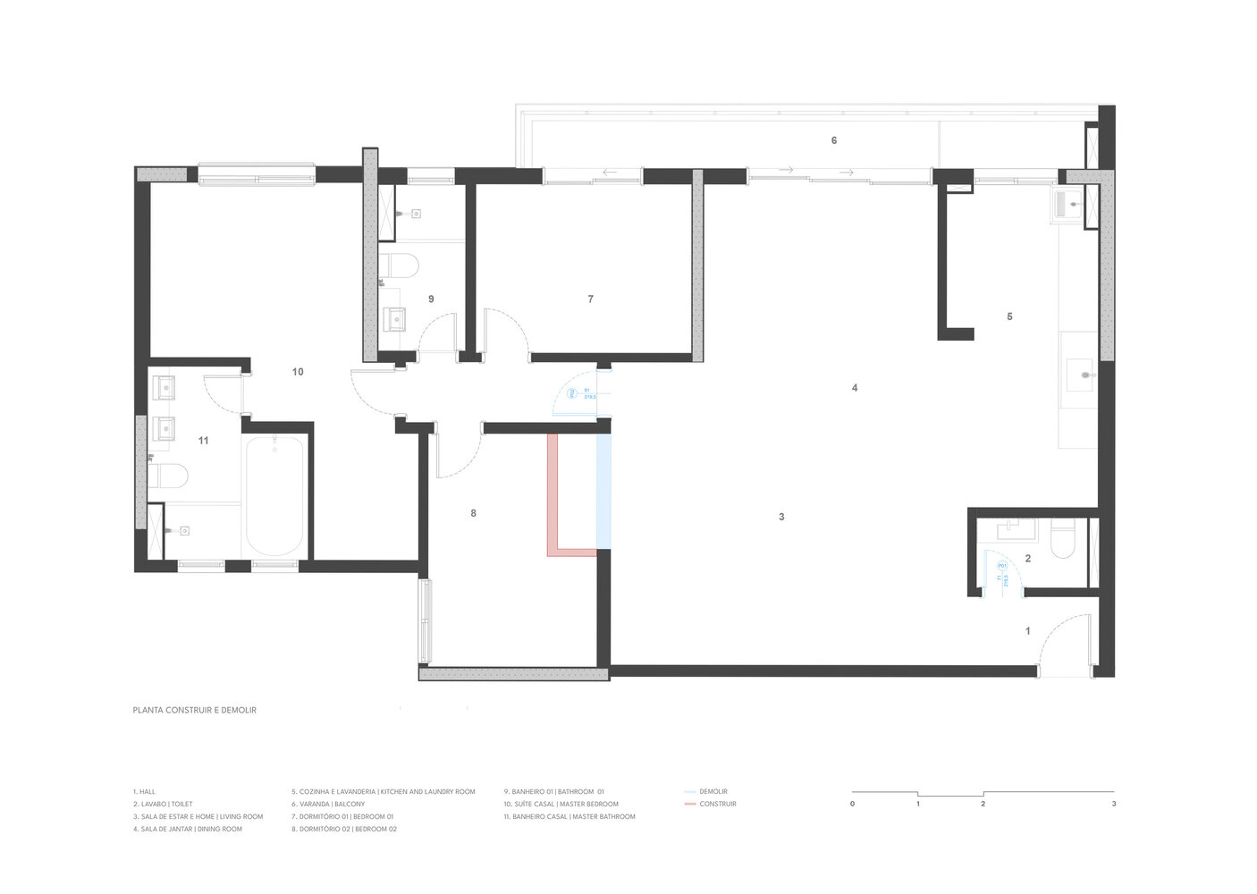
在对阿瑞斯极简风大平层公寓设计(Apartamento Ares)社交空间的布局进行一系列优化研究后,我们选择了一个核心解决方案:用一个隔断来梳理并衔接项目中的两个主要空间。这个隔断采用有机形态,在空间中自由摆放,它不仅是一个功能性元素 —— 更起到了规划动线、划分功能区和打造视觉焦点的作用。
隔断的一侧设计为电视墙,为私密客厅提供隐私保护;另一侧则作为艺术品的展示架。一个镂空壁龛将两个空间连接起来,既保证了光线流通、提供了书籍收纳空间,又营造出视觉上的节奏感与轻盈感。
技术上的主要挑战之一是让隔断呈现 “悬浮” 效果。这一问题通过使用直接固定在楼板上的管状金属支柱解决,既保证了结构稳定性,又实现了项目构思初期就设想的轻盈感。
书房区域灵活融入社交空间,满足业主根据不同场合选择封闭或开放的需求。封闭设计采用了富有创意且巧妙的方案 —— 借助圆形半透明元素系统,通过光影变化提升美学效果,同时在封闭时既保证隐私,又不会让空间显得突兀。
厨房通过一个独立的中央岛台与社交区相连 —— 这一功能性设计的三面采用不锈钢饰面,台面为磨砂玻璃。岛台一侧开放,可放置长凳,增强了空间的亲和力与多功能性。橱柜和书架与岛台采用相同的色调和设计语言,与玻璃陈列柜形成视觉统一。
考虑到业主(一名医生)的日常需求,我们在入口大厅设计了一个多功能空间:不同深度的书架用于存放口罩、免洗洗手液等日常用品,带通风口的抽屉则专门用于收纳鞋子。柔和漫射的自然光洒入餐厅,凸显出材质的纹理与质感。曲线造型的餐边柜平衡了美学与功能性,下方的搁板采用不对称比例和材质对比,为整体设计增添了精致感。阿瑞斯公寓项目力求在流畅性、实用性与辨识度之间找到平衡 —— 这是一个为艺术、舒适与轻盈生活而设计的空间。