借天窗与错层解构空间局限用光影与书写空间叙事的住宅设计
Jun 6 , 2025 |
Views :
735
该日式住宅设计位于大阪市的一个住宅区。客户购置了一块被细分用于建造成品房的土地,项目由此展开。所购地块为旗杆式地块(形状类似旗杆,有较窄的通道连接主要道路和相对较大的建筑区域)。不过,由于旗杆部分的宽度可达 3 米,这为设计提供了一定的操作空间。
借助旗杆部分 3 米宽的空间,设计团队构思了一个让房屋部分结构侵占旗杆区域的方案。客户一家五口希望房屋足够紧凑,有充足的私密房间空间,满足基本居住需求,同时兼具趣味性和独特性。
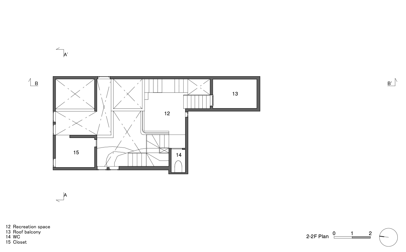
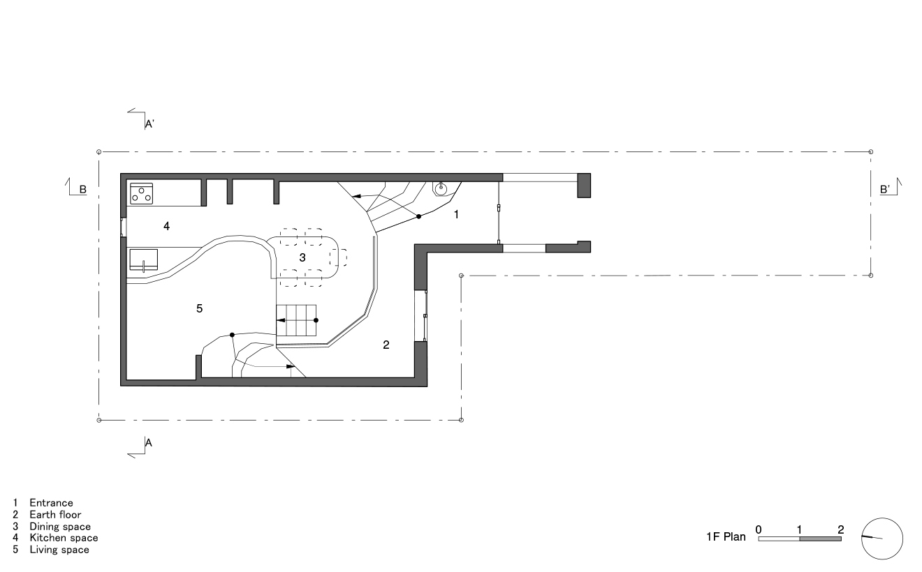
场地四周被建筑物环绕,从外墙窗户很难看到外部景色。但抬头可以看到天空,因此,设计团队首先设计了一个天窗,并围绕天窗透进的光线进行整体布局构思。
设计团队将房屋平面设想为自然地形的逐步堆叠,让居住者在室内也能有置身户外的感觉,这种户外感能带来开阔和自由的体验。为打破传统房屋的空间感受,团队设置了不同的楼层高度,打造出多个类似坐在自然地形上的停留空间。