肌理与光影的共生仓库改造的净水系统体验展厅设计

该展厅设计位于南孟买 CC Lakda Bazaar 迷宫般的巷道,木推车的吱嘎声、母鸡的轻啼、锯木的嗡鸣便交织成独特的市井交响,木香与泥土气息裹挟着生活温度扑面而来。就在这片充满烟火气的街区中,由 Huzefa Rangwala 与 Jasem Pirani 领衔设计的 Aquagreen Solutions 体验中心,以 “适应性再利用” 为核心策略,将一座功能单一的旧仓储空间,蜕变为兼具可持续理念与在地气质的建筑新载体。它以 11 英尺 ×77 英尺的狭长地块为画布,用粗粝的材质、通透的光影与流动的空间,在城市喧嚣中书写出 “低调融入环境,却自带生命力” 的设计诗篇。




建筑立面采用上下双层半透结构,下部的赭色与上部的白色形成柔和过渡,穿孔金属与波纹水泥板叶片如同 “可呼吸的表皮”,既若隐若现地遮蔽内部空间,保障隐私,又能让巷道的光线与声音适度渗透。这种设计既呼应了 bazaar 街区 “半开放、半私密” 的商业形态,又以现代材料语言重构了传统街巷的 “灰空间” 意境,让建筑从远处看如同 “生长于巷道中的有机存在”,而非孤立的现代装置。立面材质的选择暗藏对街区的致敬 —— 穿孔金属的工业质感呼应周边木加工产业的 “手工造物” 气质,波纹水泥板的质朴纹理则与巷道石板路、老旧建筑的肌理形成视觉共鸣。赭色的选用更是巧妙捕捉了 bazaar 中泥土、木材经时光沉淀后的色调,让建筑在色彩上与街区浑然一体,实现 “虽新犹旧” 的在地融合。




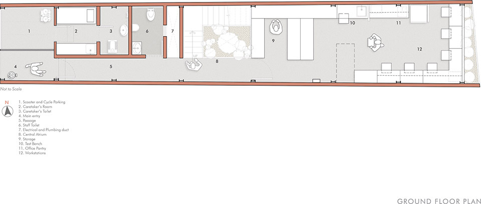
原仓储空间被赋予清晰的功能层级 —— 底层保留车辆出入口与员工区,延续建筑 “服务性” 的原始基因;中央楼梯串联起一层的体验中心与产品展示区,成为空间的 “流动脉络”;顶层则设置 CEO 办公室与会议空间,形成 “从公共到私密” 的有序过渡。这种布局既最大化利用了狭长地块的垂直空间,又通过 “一层一主题” 的叙事,让访客在上下移动中感受空间的递进式变化,避免了狭长场地易产生的压抑感。设计中随处可见 “旧物再生” 的巧思 —— 中央楼梯采用 MS 钢构穿孔件组装而成,其构件源自原仓库的货架,经过重新设计后,既保留了工业时代的结构美感,又通过拼插式的组装逻辑注入趣味;建筑内部的外露砖砌、回收碎料压制的砌块,均带着旧仓储空间的时光痕迹,它们不再是 “废弃的残留”,而是成为空间 “可触摸的历史”,让新与旧在材质层面实现深度对话。




外露的砖砌墙面带着手工砌筑的不规则痕迹,回收碎料砌块的颗粒质感传递着 “废物利用” 的可持续理念,天然墙面抹灰的细腻与微混凝土地坪的坚硬形成对比 —— 这些材质未经过多修饰,以最本真的状态呈现,既呼应了 bazaar 街区 “真实、质朴” 的生活气质,又避免了现代商业空间的精致化疏离感。尤其在混凝土咖啡吧区域,微混凝土的冷硬与赤陶色淋浴展示间的温润形成 “刚与柔” 的对话,让空间在粗犷中透出细腻。材质选择始终与功能需求紧密结合 —— 产品展示区的通透材质(如玻璃、穿孔金属)保障展品的可见性,会议舱的厚重墙体(如砖砌、抹灰)则提供隔音效果;淋浴展示间以混凝土塑形,既符合防水功能需求,又通过赤陶色内部光泽营造出 “温润的实用美学”。这种 “功能决定材质,材质反哺氛围” 的设计逻辑,让空间的每一处肌理都有其存在的合理性,避免了形式大于内容的设计误区。




屋顶开设的天窗如同 “天空的眼睛”,让自然光成束洒入室内,照亮中央楼梯与展示区。光线在粗糙的墙面与地面上形成斑驳的光影,随时间流转不断变化,为狭长空间注入 “动态的生命力”。这种设计既解决了狭长空间自然光不足的问题,又让光影成为空间的 “隐形装饰”,让访客在不同时段感受到空间的多样气质。中央楼梯采用 MS 钢构穿孔件,其通透的结构让垂直空间不再封闭 —— 从底层可仰望顶层天窗,从顶层可俯瞰一层展示区,这种 “视觉穿透” 打破了楼层间的隔阂,让狭长空间在垂直维度上显得更为开阔。同时,楼梯的拼插式设计为空间增添了 “工业美学的轻盈感”,避免了传统楼梯的厚重感对空间的压迫,进一步强化了 “通透呼吸” 的氛围。




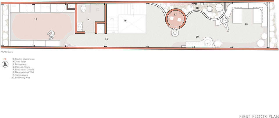
从入口的低调过渡,到中央楼梯的 “向上探索”,再到一层产品展示区的 “认知了解”,最后到顶层办公室与会议舱的 “俯瞰回望”,流线设计如同 “一场有节奏的旅行”。尤其在一层到顶层的移动中,蜿蜒的混凝土墙面引导视线不断转换,时而聚焦于淋浴展示间的赤陶光泽,时而转向窗外被遮掩的街景,让每一步移动都充满 “发现的乐趣”。一层客户体验区是空间的情绪高潮 —— 墙体由笔直转为流线,打破了狭长空间的线性单调;混凝土淋浴展示间内部泛着温润的赤陶色光泽,成为视觉焦点,既展示了产品功能,又营造出 “沉浸式的感官体验”;洽谈角落与混凝土咖啡吧的设置,让访客可在此停留休憩,透过间隙眺望 bazaar 街景,实现 “体验产品 — 感受空间 — 联结街区” 的多重互动,让商业体验不再是单纯的 “观看”,而是 “参与式的沉浸”。




Aquagreen Solutions 体验中心的设计价值,在于它为 “城市旧建筑改造” 与 “狭长地块利用” 提供了兼具可持续理念与在地气质的范式:它证明旧建筑并非 “城市的负担”,通过适应性再利用,可成为传递文化与生态理念的载体;它展示了狭长地块并非 “设计的局限”,通过光影、通透与流线设计,可打造出富有呼吸感与情绪张力的空间;它更诠释了 “可持续设计” 并非单纯的技术堆砌,而是深入场地肌理、尊重在地文化、关注人的体验的综合实践。在南孟买 CC Lakda Bazaar 的喧闹巷道中,这座体验中心如同 “一块温润的石头”,低调地融入环境,却以其粗粝的肌理、流动的光影与真实的温度,成为街区中不可或缺的新节点。它让访客在体验产品的同时,感受建筑与街区的对话、旧与新的共生、可持续与人文的融合 —— 这便是优秀改造设计的魅力:不张扬,却自有力量。



