以太阳为隐性线索将日式传统美学精妙融合内敛简约餐厅设计

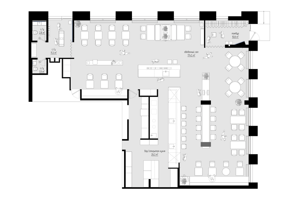
214 平方米的开阔尺度,搭配全景落地窗的通透设计,为餐厅 “Nichi”(日语意为 “太阳”)奠定了得天独厚的空间基底。来自 Bureau 48 的设计师 Alina Musina 与 Polina Tulusheva,以 “太阳” 为隐性线索,将现代建筑语言与日式传统美学精妙融合,打造出一处内敛简约却意蕴悠长的隽永空间,让日光与日风在此交织成独特的用餐氛围。


“我们将现代建筑与日式传统巧妙地融合在一起,形成了一种内敛简约的设计风格。” 正如设计师所言,Nichi 的设计核心并非日式元素的直白堆砌,而是对传统美学精神的深度转译。日式设计中崇尚的 “侘寂” 与 “留白” 理念,贯穿空间的每一处细节 —— 没有繁复的装饰,没有艳丽的色彩,仅以最纯粹的线条、最本真的材质,勾勒出空间的宁静质感,恰如日式美学中 “少即是多” 的哲学表达。


全景落地窗成为空间的 “光的容器”,完美呼应了 “Nichi”(太阳)的命名寓意。充足的自然光透过玻璃倾泻而入,均匀洒满整个 214 平方米的空间,不仅照亮了室内的每一处轮廓,更让空间的通透感与开阔感得到极致放大。光线在墙面与地面间流转,与日式元素相互映衬:或许是原木家具上的天然纹理被光影勾勒得愈发清晰,或许是素雅的布艺软装在阳光下呈现出柔和的肌理,每一处都透着自然与静谧的气息,让食客仿佛置身于日本庭院般的清幽之境。


触感对比的营造,是 Nichi 空间的点睛之笔。设计师精心挑选多元材质并巧妙搭配,让不同肌理在碰撞中产生独特的感官体验:温润的原木与清冷的石材形成冷暖对比,柔软的织物与坚硬的金属达成质感平衡,细腻的墙面涂料与粗糙的天然肌理相互映衬。这些材质的碰撞并非突兀,而是在日式简约的基调下,形成和谐的视觉与触觉节奏,既丰富了空间的层次感,又不破坏整体的内敛氛围,恰如日式美学中对 “平衡” 的极致追求。


意味深长的日式点缀,让空间更具故事性。可能是一处简约的日式花艺装置,以枯枝与鲜花的组合传递 “侘寂” 之美;可能是墙面悬挂的极简风格浮世绘元素,以凝练的线条勾勒日式意境;也可能是桌椅的边角设计,借鉴了日式家具的圆润弧度,传递出温润亲和的气质。这些点缀不张扬、不刻意,却精准地唤醒了人们对日式美学的联想,让现代空间与传统韵味自然衔接,毫无违和感。


Nichi 餐厅的设计,是现代建筑与日式传统的完美共生。214 平方米的开阔空间、全景落地窗的日光加持、内敛简约的设计风格、丰富的触感对比与意味深长的日式点缀,共同构建出一处兼具实用性与美学价值的用餐场域。在这里,食客不仅能品尝美食,更能在日光与日风交织的空间中,感受内心的平静与放松,体验一场兼具味觉与精神双重享受的沉浸式用餐之旅 —— 这正是设计师想要传递的核心:让空间成为载体,让美学融入日常,让每一位食客都能在喧嚣都市中,寻得一处宁静的 “日光之境”。
