森林与家的诗意融合藏着北欧度假美学的别墅设计
Jul 8 , 2025 |
Views :
709

该度假屋设计隐匿于英格舍(Yngsjö)连绵起伏、松林覆盖的山丘间,毗邻波罗的海海岸的,是一座为四口之家设计的夏日度假屋。这里的景观摒弃了精心雕琢的花园,而是以自然森林为主导,小型建筑与树木无缝融合在一起。






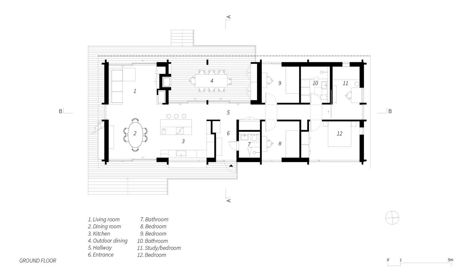
这座房子由一个南北走向的单一结构体组成,中部有一个凹进去的部分,朝向西方,设有一个带遮蔽的露台,可以享受傍晚的阳光。南部区域包括入口、厨房和公共区域,与地面自然衔接,流畅地过渡到周围的自然环境中。






与此同时,北部一半区域容纳了更多的私人空间,通过细长的柱子优雅地悬于地面之上,卧室的大窗户与树梢直接相连。







房屋的外立面覆盖着落叶松镶板,垂直的壁柱有节奏地间隔其中,散发出和谐的美感。悬空结构的下方隐藏着三层落叶松镶板。屋内,房间铺设着橡木地板,还有橡木的装饰线条、房门以及定制的木工制品。室内天花板及其悬挑部分采用统一的、外形纤薄的落叶松表面,在整个房屋内都能起到舒缓情绪和吸音的效果。













