依地形而建手工元素与自然景观相得益彰的度假别墅设计
Jul 7 , 2025 |
Views :
654
该红砖度假别墅设计位于 DF-140 郊区的阿尔塔维尔二世(Residential Alphaville II)住宅区内。房屋坐拥原生河岸森林的景观,为两层建筑,巧妙利用地形的自然坡度,将景观融入项目之中。主入口面向住宅区内部,设有一块连接两个特定体量的木板。与之相对的北立面则经过精心设计,设有一些开口,方便住户欣赏周围的自然风光。
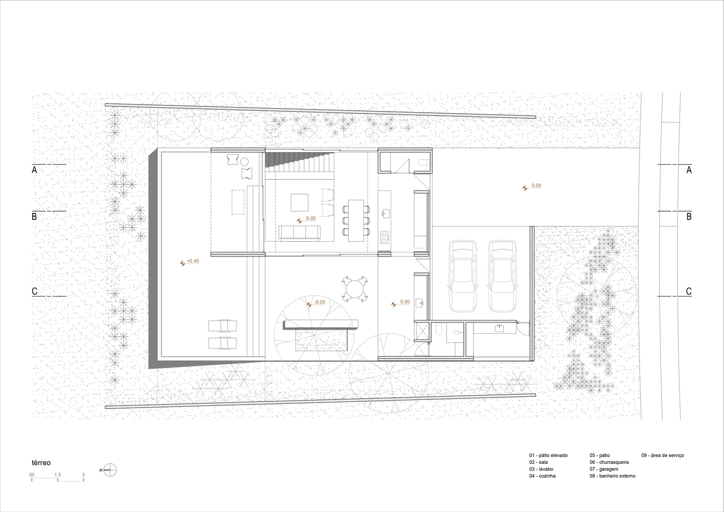
底层设计将客厅、餐厅、厨房、客用卫生间、烧烤区和外部社交卫生间整合在一起。这种布局形成了一个庭院,既可以作为俯瞰景观的区域,也是居民社交的空间。在半地下层,私密区域提供了更为安静的空间,包括一间办公室和几间套房。这一层低于自然地面高度,住户可以平视周围的景观,使这一层与邻近的自然环境紧密相连。
这座住宅融合了手工设计元素,如生态砖和现场浇筑的混凝土,同时,一个整体式地板贯穿整个起居区域,营造出空间的统一感。客厅侧面的天窗让自然光得以照入,使混凝土楼板仿佛悬浮在空中,并且突显了一整天自然光的存在。