木房子长在社区心尖上树影四季都在院子里的幼儿园设计
全新的克洛伊菲尔德幼儿园设计(Jardim de Infância Kreuzfeld)是奥地利福拉尔贝格州阿尔塔赫市(Altach, Vorarlberg)克洛伊菲尔德街区发展的重要里程碑。它将幼儿园与儿童保育服务整合在同一屋檐下,通过这一新建筑的落成,形成了一个社区中心,为该地区确立了清晰的身份认同,并作为社交聚会点在整个村庄辐射影响力。

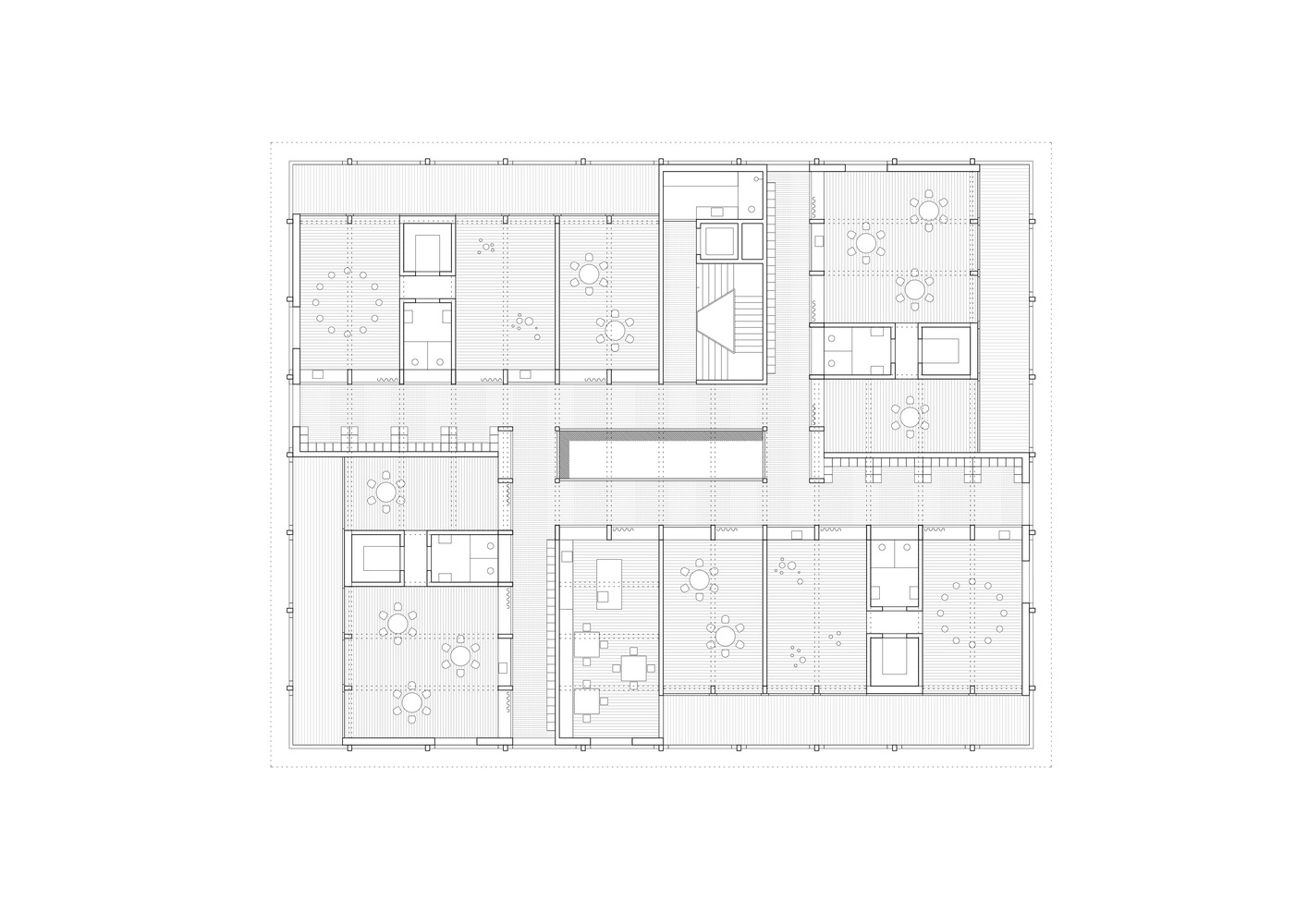
这座紧凑的两层建筑位于地块北端,在庭院、幼儿园区域与游乐场之间形成明确分隔。接送儿童的通道由一段楼梯管理,连接广场与附属的地下停车场,既实现了交通流线的分离,又保障了儿童的安全进出。户外空间的布局被设计为一场曲面的游戏,多样的构筑物与原有及新增植被相互呼应。多种叶片形态各异的树木,让孩子们了解四季的丰富变化。
一层通过大厅进入,以开放的中央交流区为核心,作为集散空间连接所有房间与楼梯。同一楼层分布着餐厅、儿童健身房和宿舍,均被一个气候防护露台环绕,形成室内外的过渡空间。健身房同时作为社区多功能空间使用,可向广场开放,为广场注入活力。
二层将所有儿童保育小组平等分布在同一平面,走廊提供充足的活动空间。超高的中央空间配有天窗和天井,形成两层之间的视觉连接,强化了建筑的交流属性。上层同样环绕着露台,将室内空间延伸至户外,成为气候防护下的户外游戏区。
幼儿园以木质 pavilion 为主体,立面采用充满童趣的结构设计,交替形成壁龛与实体墙面,赋予建筑轻盈感。立面的天然木材会随时间形成独特包浆,使建筑在社区中自然扎根。材料与设计理念深受教育者和儿童对舒适与宁静的需求影响:室内采用未处理的实木表面,营造温馨宽敞的房间;搭配柔软的天然织物窗帘与坚固的水磨石地面(经得起孩子们嬉戏打闹),共同构成和谐整体,全面满足教学与儿童需求。