轻盈透明如漂浮于自然中生长于湖泊边的别墅设计


德拉戈住宅(Residência Dellago)是一座湖边度假别墅设计,坐落于意大利加尔达湖东岸的自然景观之中。地形形态为项目设计提供了方向指引:建筑依托于一块天然台地,该台地与湖泊平行,在场地地形中清晰可辨,且位于一片紧凑区域内,最大程度减少了挖掘作业和土方搬运。



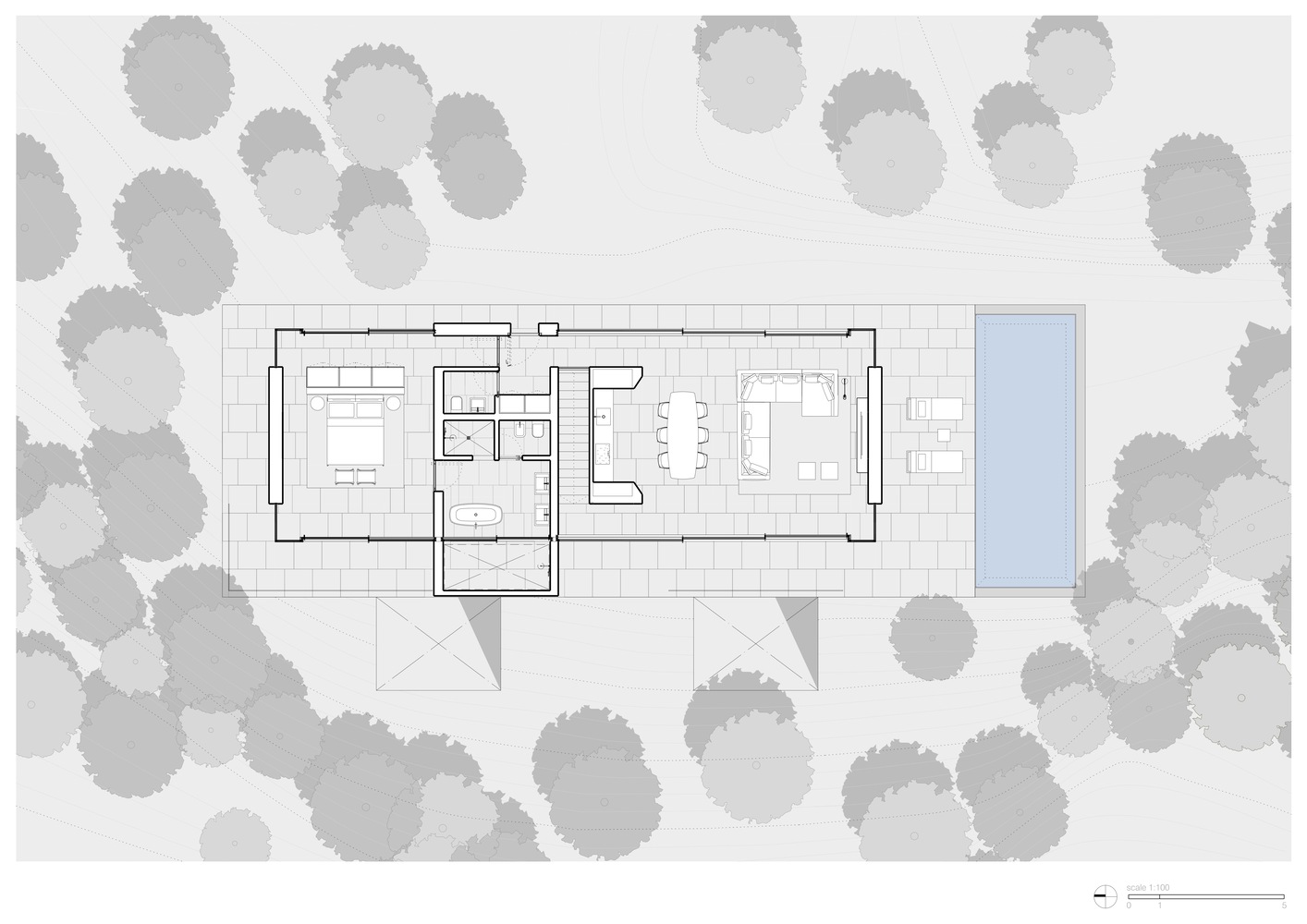
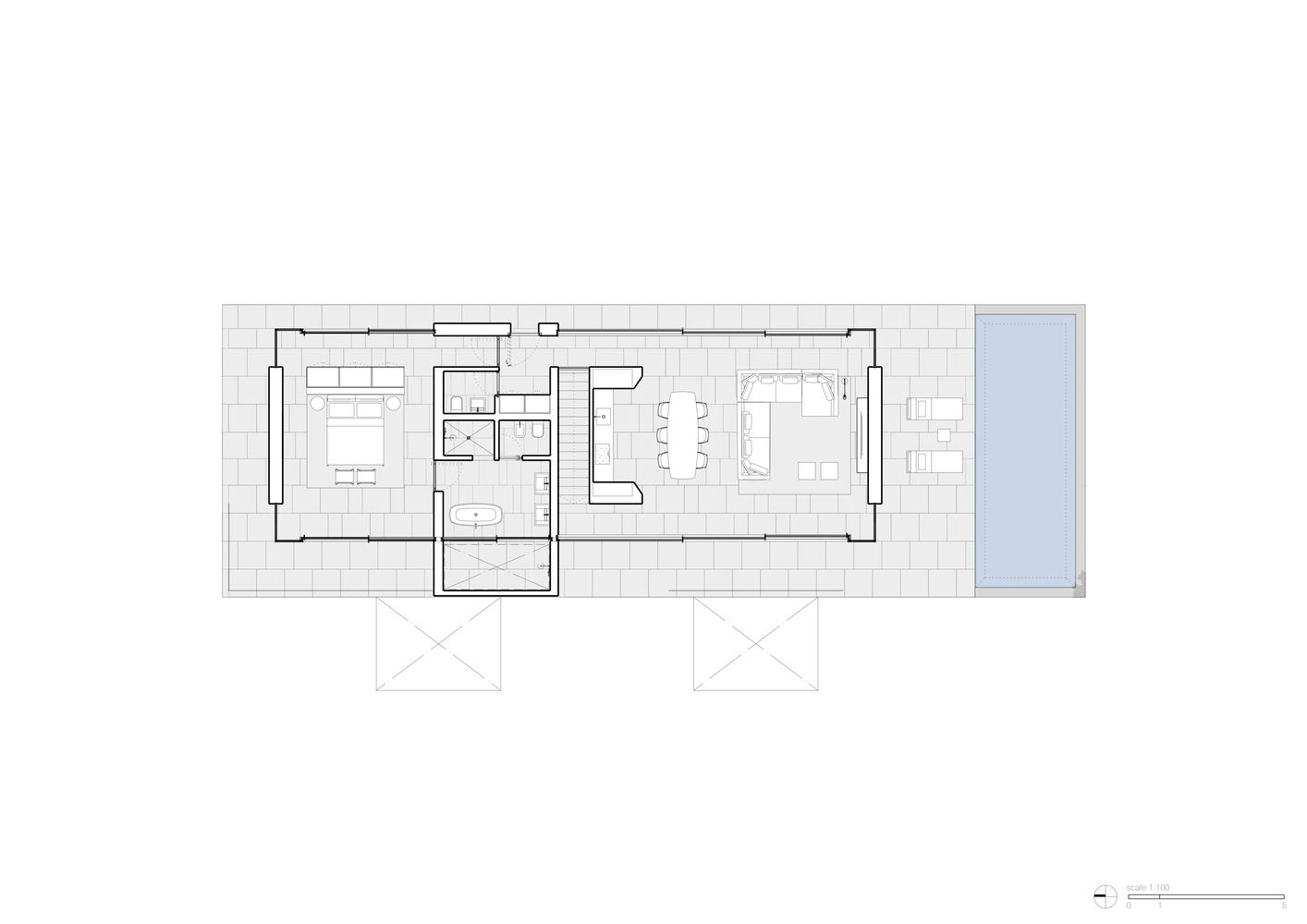
这是一座单层展馆式住宅,社交区域位于一端,主卧套房位于另一端。服务空间位于中央,那里有一段楼梯通往下层 —— 下层的设计源于对场地自然坡度的细致研究。两个朝向湖泊的大型庭院,让下层空间也能享受到湖景和自然光,并与地形坡度相契合。




主楼层的立面大面积采用玻璃幕墙:所有房间都能毫无遮挡地观赏湖景,使这座展馆式住宅显得轻盈通透。平屋顶向四面悬挑,建筑高度略超 3 米,在光影之间营造出理想的平衡,促进住宅与周边植被的完全融合。屋顶表面的设计如同立面一般精心:技术组件被隐藏起来,饰面采用浅灰色陶瓷材料。




主立面唯一封闭的部分是主卧的浴室,不过,它通过一个露天庭院获得自然光,这个庭院将室内空间延伸至一片湿润的户外区域。这部分立面采用复合木塑板(WPC)覆盖,表面呈现出橡木质感,与住宅所处的自然景观色调相呼应。一条白色铝制轮廓线贯穿整个展馆式住宅的底部,在平台的南端,建筑范围内设计了一个泳池。




室内配有全定制的固定家具,例如覆盖墙面的橡木面板、浴室里的大理石台面,以及整合了多种技术设备的开放式厨房。家具在空间中仿佛悬浮一般,增强了采光效果,也强化了室内的现代风格。卷帘式窗帘完美嵌入天花板边缘,既能保障隐私,又能从外部过滤视线。




庭院的布局遵循尊重地形起伏的线条,植被的选择也与当地地形相适配:平坦区域种植草坪,坡度较陡的地方则选用特定物种。原生橄榄树和既有的高大柏树在项目构成中得到保留和凸显 —— 对于居住者的舒适度而言,植被与建筑同等重要。
