热处理木裹着舱小窗户框着远方可移动住宅设计
Aug 4 , 2025 |
Views :
718
这座可移动木屋住宅设计坐落于阿连特茹宁静的风景之中,可欣赏到阿尔克瓦湖的绝美景色,它被设计为一个家庭避难所,供一对夫妇及其三个成年子女使用。
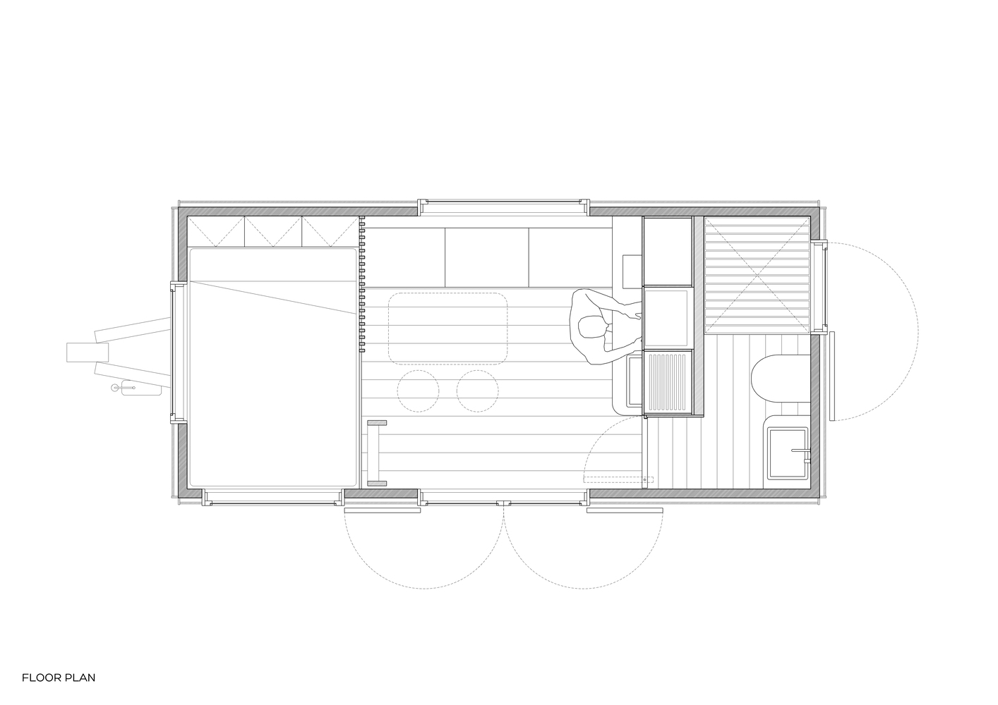
该项目是这家人与 Madeiguincho 工作室合作的成果,融合了手工艺、空间效率以及与当地的紧密联系。这座住宅仅为 2.5 米宽、5.5 米长,却能以令人惊喜的舒适程度容纳多达 6 人,这要归功于巧妙的空间布局:中央起居区、走廊式的实用厨房,以及三间双人床,分别分布在一层和上层的卧铺处。

其建筑风格从航海世界中汲取灵感 —— 圆形窗户、木工细节以及采用自然色调的温馨内饰,营造出一种让人联想到帆船船舱的氛围。经过热处理的木材、船用胶合板和天然饰面赋予了这个空间连贯、耐用的美学风格,并与周围环境融为一体。
由于该地区夏季通常气温较高,窗户设计得比其他项目略小一些,在遮阳保护与观景之间取得平衡。尽管空间有限,但窗户在一层和上层的睡眠区域都精心设置在视线高度,能够精准且私密地框住窗外的景色。这些开口不仅是光线和通风的来源,更是沉思的工具 —— 使建筑与阿连特茹的节奏和地平线相协调。
低调的立面使这座住宅与阿连特茹温暖的景色融为一体,倡导一种可持续、宁静且与自然深度相连的生活方式。