会变惊喜魔术专属小剧场的小型首饰店设计
Aug 5 , 2025 |
Views :
924
Vehr小型首饰店设计在圣保罗的首家门店位于该市一家购物中心内,面积为 25 平方米。该项目的第一步是为每种类型的珠宝设计一套展示系统,这些展示装置能够嵌入并分布在一个垂直面上。
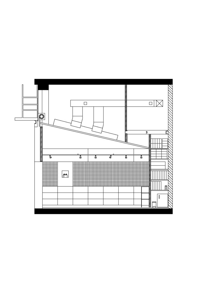
为了最大化并优先考虑展示区域,这个垂直面覆盖了门店内部的整个周边 —— 不包括门店入口、收银台和仓库的通道 —— 高度达 2.50 米,由模块化的面板和展示件构成,这些部件采用 100% 再生聚酯纤维和毛毡制成的声学板,通过数控和激光切割而成。在空间中央,布置了用相同材料包覆的辅助柜台。
外立面采用 ACM 面板,带有拉丝不锈钢层,且比其他部分内退,以增强走廊的统一性,并将注意力引导至门店内部。入口是一个 2.10 米 ×2.10 米的方形通道,没有门。入口上方是门店的名称,由彩色亚克力字母制成,带有背光灯;右侧有一个小橱窗。
与内部墙面深色且具有吸收性的表面(旨在处理环境的声学问题并突出珠宝)不同,灰色自流平环氧树脂地面和涂成白色的倾斜石膏天花板起到了反射和折射光线的作用。环境照明通过对侧面板的间接光源和指向珠宝的射灯实现,射灯分布在两个悬挂的轨道上。
为了支撑珠宝,设计了大约 25 种不同的展示件,以展示品牌的全部产品系列。它们嵌入在一个 1.20 米宽的区域内,带有一个凹陷的网格,可根据新品发布和系列产品进行多种组合。在门店周边,还设置了两个彩色橱窗(蓝色和橙色),以突出新系列和产品。除了展示件外,还有镜子和未包覆的区域,在这些地方,小型背光灯面板会照亮客户试戴项链、耳环、戒指、手镯和吊坠时的面容。