让历史呼吸让生活生长以砖墙为骨的公寓改造设计

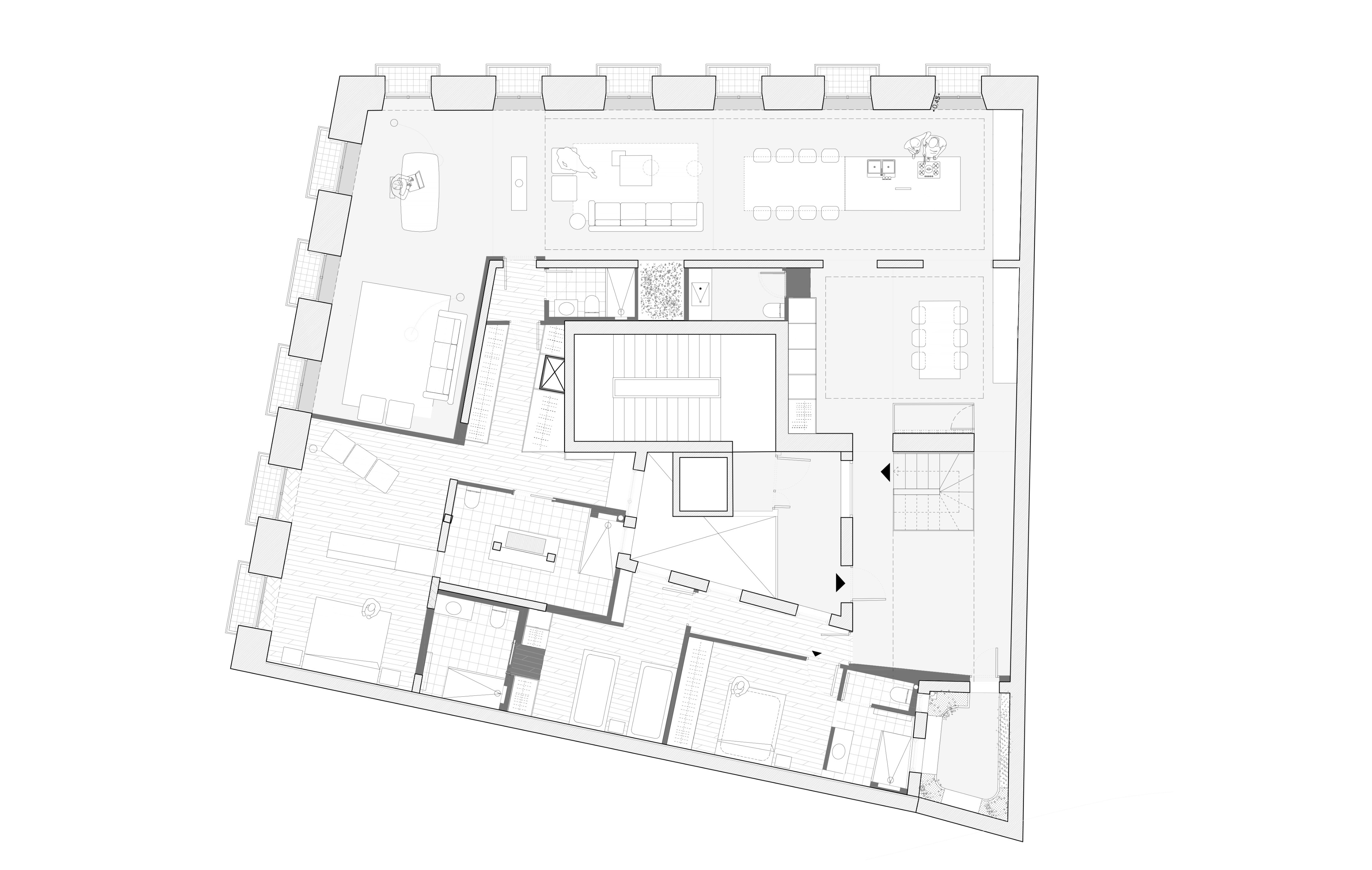
该大平层改造设计在马德里Justicia社区的核心地带,俯瞰Salesas广场的圣卢卡斯公寓,以300平方米的体量与12个错落的阳台,成为城市历史肌理的一部分。当建筑工作室ARQUID接手改造时,他们没有选择大刀阔斧的颠覆,而是以“让历史呼吸,让生活生长”为理念,在保留建筑原始精髓的基础上,注入当代设计的精致与温度。最终,这套公寓不仅成为适配主人生活方式的居所,更完成了一场“传统与现代”的空间对话,为历史建筑的当代活化提供了极具参考价值的范本。圣卢卡斯公寓的改造,始于对传统居住逻辑的突破。ARQUID工作室摒弃了封闭割裂的分隔式布局,转而采用开放式结构,让空间之间的流动自然而顺畅——这种设计不仅契合当代人“无界生活”的需求,更让公寓300平方米的体量与12个阳台的优势得到最大化发挥。而串联起整个开放空间的核心元素,是一道修复后的原始砖墙。



这道沿着公寓全长延伸的砖墙,是空间的“隐形组织者”。它没有采用生硬的隔断形式,而是以温润的肌理划分出功能区域:一侧是餐厨空间的烟火气,另一侧是起居区域的静谧感,中间则预留出通透的行走动线。砖墙表面保留着岁月留下的斑驳痕迹,每一道纹路都承载着建筑的记忆,与开放式布局形成“虚与实”的对比,既保证了空间的开阔感,又赋予其独特的叙事性。12个阳台的战略性利用,进一步强化了空间的流动与通透。ARQUID工作室没有改变阳台的原始布局,而是通过优化门窗设计,让每个阳台都成为“室内外的过渡纽带”。清晨,阳光透过阳台洒入室内,在砖墙上投下错落的光影;傍晚,主人倚在阳台栏杆上,既能俯瞰Salesas广场的城市烟火,又能感受室内传来的温暖气息。这种“室内外无界”的设计,让公寓彻底摆脱了封闭感,成为连接城市与生活的媒介。



“让老材料说老故事,让新材料讲新语言”,这是ARQUID在材料运用上的核心逻辑。他们刻意裸露了公寓原有的木梁与立柱,那些带着年轮与使用痕迹的木材,如同建筑的“骨架”,直白地展露着公寓的历史脉络——木梁的弧度、立柱的纹理,都成为空间中最动人的装饰,为公寓注入了温润的烟火气。
与木质结构形成鲜明对比的,是作为点睛之笔引入的不锈钢。ARQUID工作室没有让不锈钢成为张扬的视觉焦点,而是以克制内敛的方式融入空间,其冷冽精致的质感,为原始结构的温润增添了当代层次。这种“温与冷”的材料对话,在空间中创造出奇妙的平衡:裸露木梁的暖色调与不锈钢的冷光泽相互映衬,原始砖墙的粗粝与不锈钢的光滑形成触感对比,让整个空间既充满历史的厚重感,又不失现代设计的精致度。不锈钢在空间中更是“功能与美学的双重载体”。厨房的中央岛台与酒水区域采用不锈钢材质,简约实用的造型既满足了餐厨操作的需求,又不会破坏空间的整体氛围;而最引人注目的,是一件手工定制的不锈钢360度旋转置物架。它不仅是视觉上的精致符号,更承担着“灵活边界”的功能——白天可旋转至不同角度,划分出临时的工作区或阅读角,让空间感知随用途变化;夜晚则可归位至墙边,还原空间的开阔感,完美适配当代人多元多变的生活习惯。



ARQUID工作室深知,历史建筑的魅力不仅在于材质本身,更在于光影在其上流动的韵律。因此,“最大限度利用自然光”成为改造的核心目标之一,而温暖色调的选用,则让光影效果得到进一步强化,最终营造出宁静而治愈的空间氛围。开放式布局与12个阳台的组合,为自然光的进入创造了绝佳条件。清晨,阳光从东侧阳台涌入,照亮不锈钢置物架的金属光泽,在砖墙上投下长长的影子;正午,阳光透过南侧阳台的玻璃窗,均匀洒在裸露的木梁上,让木材的纹理更加清晰;傍晚,西侧阳台引入的夕阳,为整个空间镀上一层暖金色,与室内的温暖色调相融,消解了不锈钢的冷冽感。随着时间流转,光影在材质表面不断变化,让公寓化作一系列精心布置的场景,功能与氛围在这里被赋予同等重视。灯光设计则作为自然光的补充,延续了“温暖宁静”的基调。ARQUID工作室没有采用复杂的灯具造型,而是以嵌入式筒灯与线性灯带为主,光线柔和地洒在砖墙、木梁与不锈钢表面,既突出了材料的肌理层次,又避免了强光带来的压迫感。在起居区域,一盏简约的落地灯为阅读角落提供局部照明;在餐厨空间,岛台下方的灯带则勾勒出空间轮廓,与窗外的城市灯光遥相呼应,让夜晚的公寓既温馨又不失精致。



圣卢卡斯公寓的改造,不仅关注空间的美学与功能,更将“舒适与环境福祉”纳入核心考量。ARQUID工作室以可持续设计为理念,让公寓在满足当代生活需求的同时,实现与自然的和谐共生。除了最大化利用自然光实现自然采光与热调节,工作室还为公寓安装了先进的空气能系统。这套可持续解决方案通过吸收室外空气的能量,为室内提供供暖、制冷与热水,既降低了能源消耗,又减少了环境影响,确保主人全年都能享受舒适的居住温度。两个内部庭院的优化设计,则进一步提升了公寓的生态品质——其中一个被改造成带有本土植被的室内花园,青翠绿意与砖墙、木梁形成鲜明对比,不仅为空间增添了自然气息,更起到了净化空气、调节湿度的作用,成为主人放松身心的“静谧避风港”;另一个庭院则重点优化通风功能,与12个阳台形成空气对流,让室内始终保持清新的空气循环。这种生态设计并非孤立的技术堆砌,而是与空间美学深度融合。室内花园的本土植被选用与马德里气候适配的品种,无需过多养护即可自然生长;空气能系统的设备被巧妙隐藏在墙体与吊顶内,不破坏空间的整体美感;自然通风与采光的设计,则让主人在日常生活中便能直观感受到与自然的联结,实现了“居住舒适与环境福祉”的双重目标。




圣卢卡斯公寓的改造价值,远超“居住空间升级”的范畴。ARQUID工作室用一道砖墙串联历史与现在,用木与钢的对话诠释传统与现代,用生态设计连接建筑与自然,最终让这套公寓成为“有记忆、有温度、有活力”的居所——当主人在不锈钢岛台旁备餐时,阳光在裸露木梁上流转;当旋转置物架划分出工作区时,室内花园的绿意映入眼帘;当夜晚倚在阳台时,城市的灯火与室内的温暖交融。这套公寓的成功证明,历史建筑的保护并非“冻结时间”的复刻,而是“激活价值”的再创造。优秀的改造设计,应当像ARQUID工作室这样,既能倾听建筑的历史叙事,又能回应居住者的当代需求,更能呼应城市的发展脉动。在圣卢卡斯公寓中,历史不再是陈列的标本,而是融入日常生活的肌理;现代设计也不再是突兀的植入,而是滋养生活的养分——这种“新旧共生”的智慧,正是历史建筑在当代最动人的生命力所在。


