以谦逊的姿态回应场地延续肌理林谷之间创意延伸的度假屋设计

坐落在萨扎瓦河谷与梅德尼克山之间的梅德尼克住宅设计,因地形的弧形特征与开阔的自然景观,成为承载生活与创意的理想场域。2010 年的大规模翻新与悬挑扩建后,随着需求升级,päivä architekti 建筑事务所受委托,以尊重场地、延续肌理为核心,为住宅新增开放式工作室与独立居住区域,在森林与花园的交界处,打造出一处与自然相融、功能完备的延伸空间。





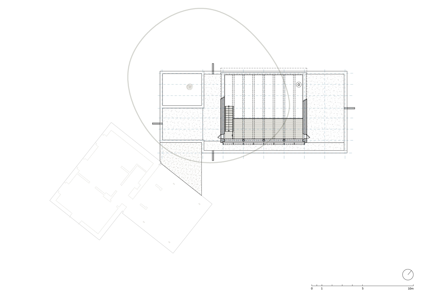
扩建设计的首要原则,是对场地原有特质的深度尊重。设计团队在寻找扩建位置与体量时,既严格保护现有成熟树木,又坚守 “不遮挡花园望向萨扎瓦河谷及梅德尼克山山顶景观” 的核心原则,让自然视野成为空间的核心资产。最终,扩建部分被定位为独立建筑体,坐落于森林与花园的交界处,既避免了对原有住宅格局的破坏,又形成了 “住宅 — 露台 — 扩建建筑” 的空间序列。通过带顶露台与原有住宅相连,露台上特意保留了一棵成年橡树,让树木成为空间的天然点缀,也让新旧建筑的过渡更具自然气息;新增的带顶走廊则为通往花园提供了舒适的动线,让室内外的连接更为流畅。这种 “独立又共生” 的布局,既满足了功能扩容需求,又让扩建部分如同从场地中自然生长而出。






扩建建筑的空间设计精准契合客户需求,在有限体量中实现了 “开放式工作室” 与 “独立居住区域” 的功能平衡。开放式工作室以 “充足采光” 与 “通透视野” 为核心,朝向露台与河谷的一侧采用大面积推拉窗设计,将萨扎瓦河谷的自然风光与充足天光毫无保留地引入室内,为创意活动提供了开阔的灵感场域。靠近原有住宅的一侧则采用封闭结构,既保证了空间的私密性,又与开放式立面形成 “围合与开放” 的对比,让工作室内部动静分区清晰。室内嵌入的简洁悬挑式走廊,不仅优化了动线,更增添了空间的层次感与设计感。独立居住区域包含卧室、浴室与洗手池,功能布局紧凑实用,与开放式工作室形成互补。整体形态设计与原有住宅保持协调统一,避免了风格割裂,让新旧建筑在视觉上形成有机整体,延续了住宅的空间肌理。





结构方案的设计充分考虑了 “客户可自行参与部分施工” 的实际需求,兼顾了专业性与便捷性。微型桩基基础由专业公司施工,确保结构稳固;其余部分采用钢木混合自承重设计,既降低了施工难度,又便于客户参与建造过程,让住宅扩建成为一场充满参与感的创造。材质选择以 “自然、耐用” 为核心,呼应场地的森林与河谷环境。外墙采用经防腐处理的落叶松板材,随着时间推移会呈现出自然的色泽变化,与周边植被形成和谐对话;室内则以云杉木板为饰面材料,温润的木纹肌理为空间注入温暖质感。同时,室内整合了定制家具与储物空间,在保证空间整洁性的同时,最大化利用了有限面积,让功能与美学无缝衔接。





梅德尼克住宅的扩建设计,是对 “如何在既有场地中实现功能扩容与自然共生” 的完美诠释。päivä architekti 建筑事务所没有刻意追求形式的张扬,而是以谦逊的姿态回应场地、延续肌理,让扩建部分既满足了开放式工作室与独立居住的功能需求,又不破坏原有景观与建筑格局。在这里,推拉窗框住的是河谷与山峦的自然画卷,木质材质传递的是与森林的亲密联结,合理的布局让创意与生活各得其所。梅德尼克住宅的扩建不仅是空间的延伸,更是生活与创意的延伸 —— 它证明了在自然环境中,建筑的扩容可以不以牺牲自然为代价,通过尊重场地、优化设计,便能实现功能、美学与自然的和谐共生,为创意人群打造出理想的栖居与工作场域。





















