平衡理性结构与感性光影天窗框着天空的度假屋设计
灵魂之家度假屋设计(Soul House)是一处隐匿于明多谷中心的休憩之所,它植根于周边环境的氛围与物质条件,以及居住者为讲述自身生活而塑造的象征世界。设计通过几何形态规整室内外的每一个元素,构建出一个如同微观宇宙般的空间 —— 室内封闭,与外部环境相隔绝。这栋住宅在两条轴线上均呈对称形态,暗含身体与氛围、物质与情绪之间的二元对立。



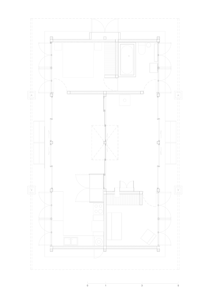
它同时兼具象征意义与物质逻辑。住宅核心处有一个横向的空旷空间,将室内与景观相连,而位于几何中心的发光体块则是这一设计的核心锚点。这个透明的天窗捕捉着天空的瞬息变化,当住宅向内封闭、与外界隔绝时,它便成为天空流转的沉默见证者。




住宅的布局围绕 “打造两个完全独立的环境” 这一理念展开。一组中央滑动面板可将室内划分为两个互不连通的空间,让居住者能够选择退居到这个开阔且独特的空间中的任意一侧。这种空间灵活性满足了共享居住环境中对私密空间的需求。同时,住宅力求减少对周边生态系统的影响。为此,设计了雨水收集系统用于灌溉周边花园,并配套了废水处理系统。该系统依靠特定的植物物种和细菌运作,以尽可能低干预的方式将水回归大地。




其建造体系融合了两种设计传统:场地周边的简易木结构,以及让・普鲁韦(Jean Prouvé)的预制房屋。这些参考指引设计采用了重复的梁柱框架结构,这种结构抗侧向力强且易于组装。住宅中心矗立着一根独立立柱,上方的天窗更凸显出它的纤细感 —— 这一设计呼应了筱原一男(Kazuo Shinohara)的理念,即结构元素既是稳定装置,也是富有诗意的独特存在。在这个空间的中心,光线与重力仿佛融为一体。天窗解除了中央立柱的结构承重职责,使其不再作为支撑构件,而是作为一种象征存在。通过这种设计,它标记出一个景观的精确中心 —— 这个景观并非天然存在,而是由住宅自身框定出的室内地平线。




结构组装由当地工匠完成,他们通过制作每个节点的模型,一步步细化项目细节。设计构想与施工实际(预算限制、突发状况等)之间的碰撞,最终转化为层次丰富的细节设计,让住宅超越了最初的设计构想,更具深度。

