共用街当客厅强化社区核心的别墅住宅区设计
Aug 1 , 2025 |
Views :
655
Ovejitas 是一个别墅群住宅区设计项目,位于阿根廷布宜诺斯艾利斯市周边主要的 residential 郊区之一圣伊西德罗。该项目是该地区多年来 densification 进程的一部分。那些建在大型绿化地块上的旧独立住宅正逐渐被集体住宅项目所取代。绿地面积不断减少,住宅面积逐渐缩小,一些公共服务设施也开始共享。这为年轻群体提供了一种新的住房选择,他们购买力较弱,但希望保留郊区特有的生活方式,这里是他们的发源地。
该建筑群的布局规划为两排住宅,朝向中央的内部街道。这条街道或通道贯穿整个街区,方便车辆和行人从公共道路到达每个单元的门口。然而,在实际使用中,这个空间充当了邻居们聚会和休闲的场所,加强了社区联系,促进了邻里之间的交往。尽管是封闭的,但它具有 “城市” 特质,住宅的正面都朝向这条街道。
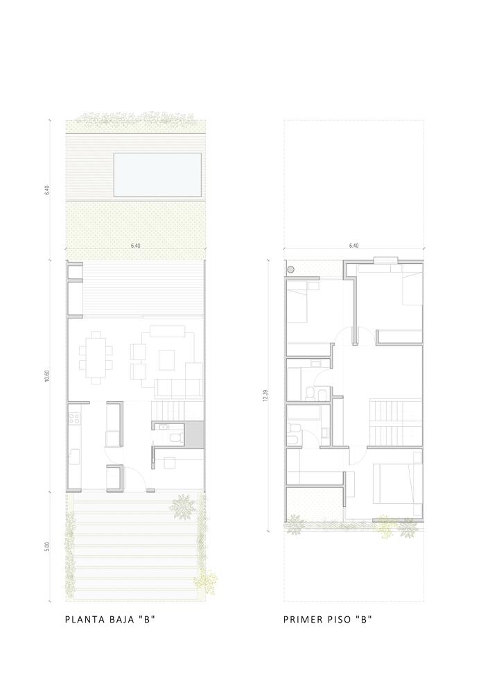
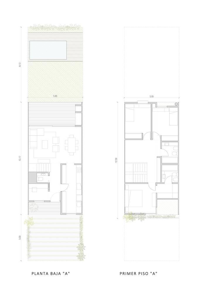
每排住宅的数量由街道两侧可用土地的长度决定,一侧有 13 栋住宅,每栋正面宽 6 米,另一侧有 8 栋住宅,每栋正面宽 6.5 米。在住宅后部,每个单元都有自己的私人庭院 —— 一个包含小型游泳池的绿色空间。

住宅的内部布局非常简洁:一楼是入口区域,位于混凝土楼板下,包含厨房、客厅、餐厅、走廊等公共空间,以及一个小办公室。上层由带有大坡度屋顶的轻型建筑构成,设有卧室、浴室和一个私密的房间。
该项目被视为现代建筑中一种经典类型的典型范例:“联排住宅”。其主要挑战在于在单元的系统重复与每个部分的独特性之间取得平衡,换句话说,就是通过各部分的多样性构成一个和谐的整体。