在复古与现代的碰撞精致与不完美的平衡中创造工作室设计

当办公室设计不再只是办公的容器,而是企业精神的实体表达,ater.architects为Banda公司打造的基辅新办公室,便完成了一次从“功能空间”到“价值宣言”的升维。这座坐落于20世纪初历史建筑中的办公场所,以“公寓式舒适”为底色,将开放包容、尊重历史等企业理念融入每一处肌理,在复古与现代的碰撞、精致与“不完美”的平衡中,为创意人群构建了一处可思考、可协作、可休憩的精神栖居地。




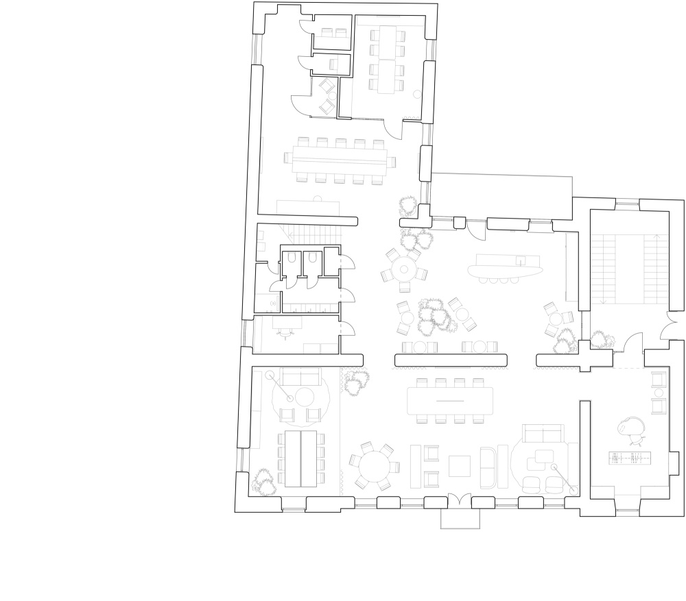
项目的设计起点,是对场地历史的敬畏与激活。办公室位于基辅历史中心雅罗斯拉维夫瓦尔街一栋百年建筑的二层,ater.architects并未割裂这份时光沉淀,而是以“修复优先、植入共生”的策略,让历史肌理成为空间的独特底色。拆除吊顶后,建筑原有的装饰线条与檐口浮雕重见天日,设计师对这些古典元素进行精心修复,使其成为空间的“隐性背景板”,与不锈钢接待台、极简Luceplan灯具形成鲜明的古今对话。这种对话并非表面拼接,而是深入空间体验的细节:入口处的经典木门装配着带有自然瑕疵的复古玻璃,刻意保留的“不完美”既呼应了企业的自嘲态度,也为历史感注入了温度;橡木墙板延续了建筑的典雅基调,同时巧妙隐藏储物空间,实现了历史气质与现代功能的共生;厨房窗户间留存的色卡痕迹,更是将设计过程的“未完成感”定格为空间记忆,成为尊重过程、崇尚真诚的企业理念的生动注脚。




“不该像传统办公室,而更应是一间明亮开阔的公寓”,这一客户诉求成为空间布局的核心指引。ater.architects摒弃了封闭格子间的刻板模式,在保留历史建筑高挑天花板与开放格局的基础上,植入两个带夹层的立方体单元,既划分出功能分区,又维持了空间的通透感,构建出“公共-半私密-私密”的层次化体验。主大厅的公寓式布局打破了办公场景的边界:柔软的休息座椅组与定制公共长桌自由组合,既满足专注办公的需求,又为即兴协作提供了舒适载体;抬高的平台可随时转变为活动舞台,可移动桌椅与折叠椅则让空间能灵活适配会议、展览等多元场景,完美契合创意工作“灵活多变”的特质。




两个立方体单元则承担了相对私密的功能:一个容纳专属工作站、卫生间与设备间,夹层的独立空间为深度工作提供静谧角落;另一个则包含会议室与视频会议间,弧形玻璃门灵感源自基辅有轨电车,为理性办公注入在地文化趣味。最具巧思的是第二个立方体单元的夹层休息区——通过泳池式钢梯可达的空间里,墙面铺着天空图案的地垫,这种充满童趣与想象力的设计,彻底打破了办公空间的严肃感,为创意人群提供了一个放松充电的“秘密基地”,诠释了企业“真诚坦率”的人文关怀。




空间的每一处细节,都是Banda企业价值观的具象化表达。ater.architects从欧洲各地搜罗的复古家具,成为传递“有人居住的生活感”的核心载体:等候区的红色复古Dietiker扶手椅、公共长桌搭配的20世纪80年代弯曲胶合板椅、休息区的Soloform皮质座椅,这些带着时光痕迹的单品,让空间摆脱了商业办公的冰冷,传递出“开放包容”的气质。艺术作品的介入则为空间注入了创意灵魂:当代艺术家达尼克·曼若斯的稚拙风格画作、谢尔盖·德卡柳克的大型视觉核心画作、马克西姆·扎布罗德斯基的诙谐作品,既呼应了企业“创意生成”的核心业务,又以多元风格诠释了“尊重个性”的理念。




而专属工坊中,拉丝铝制挂板收纳着工具与材料,陈列的公司奖项与宜家灯具组装的长条形照明装置形成有趣对比——前者代表“匠心成果”,后者则印证了“简单解决方案也能带来惊喜”的创新精神。即便是功能区域,也暗藏价值观的表达:卫生间的赭石色墙面、圆形壁灯与石英岩水槽营造出温暖质感,镜面吊顶增强自然光反射,体现了对员工体验的细致关怀;厨房兼用餐区的不锈钢中岛台、波浪形吧台与Magis高脚凳构建出社交核心,马里奥·贝利尼设计的Nuvola灯具则为用餐场景注入艺术氛围,让“协作”从工作延伸至生活。




Banda公司办公室的成功,在于它彻底打破了“办公空间=效率工具”的固有认知,证明了优秀的办公设计能够成为企业价值观的“空间宣言”。ater.architects以历史为锚点,以公寓式舒适为载体,用复古家具、艺术作品与灵活布局,将开放包容、尊重历史、崇尚匠心等理念转化为可触摸、可体验的空间语言。
在这里,历史肌理与当代设计共生,精致品味与“不完美”共存,工作场景与生活场景交融——这不仅是为创意人群打造的专属空间,更是Banda公司企业文化的鲜活注脚。当员工在复古扶手椅上交流灵感,在天空图案的夹层中放松思绪,在历史浮雕下专注工作时,空间便完成了它的使命:让价值观看得见、摸得着,让创意在精神共鸣中自然生长。




