有规律插入相互映衬三角形体块独特节奏的综合楼设计
这座小型多功能建筑坐落在韩国首尔汉南大桥的北入口处,是创新设计与环境和谐的灯塔。该建筑地理位置优越,南临汉江,北望风景秀丽的南山,景色一览无余。设计不仅符合而且超越了当地建筑规范的严格标准,体现了城市建筑的深思熟虑。
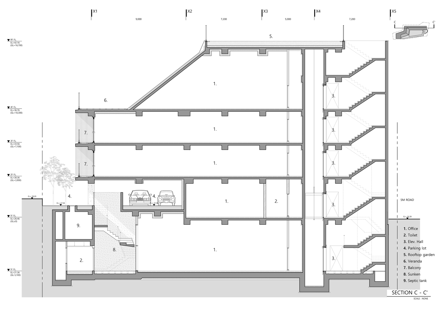
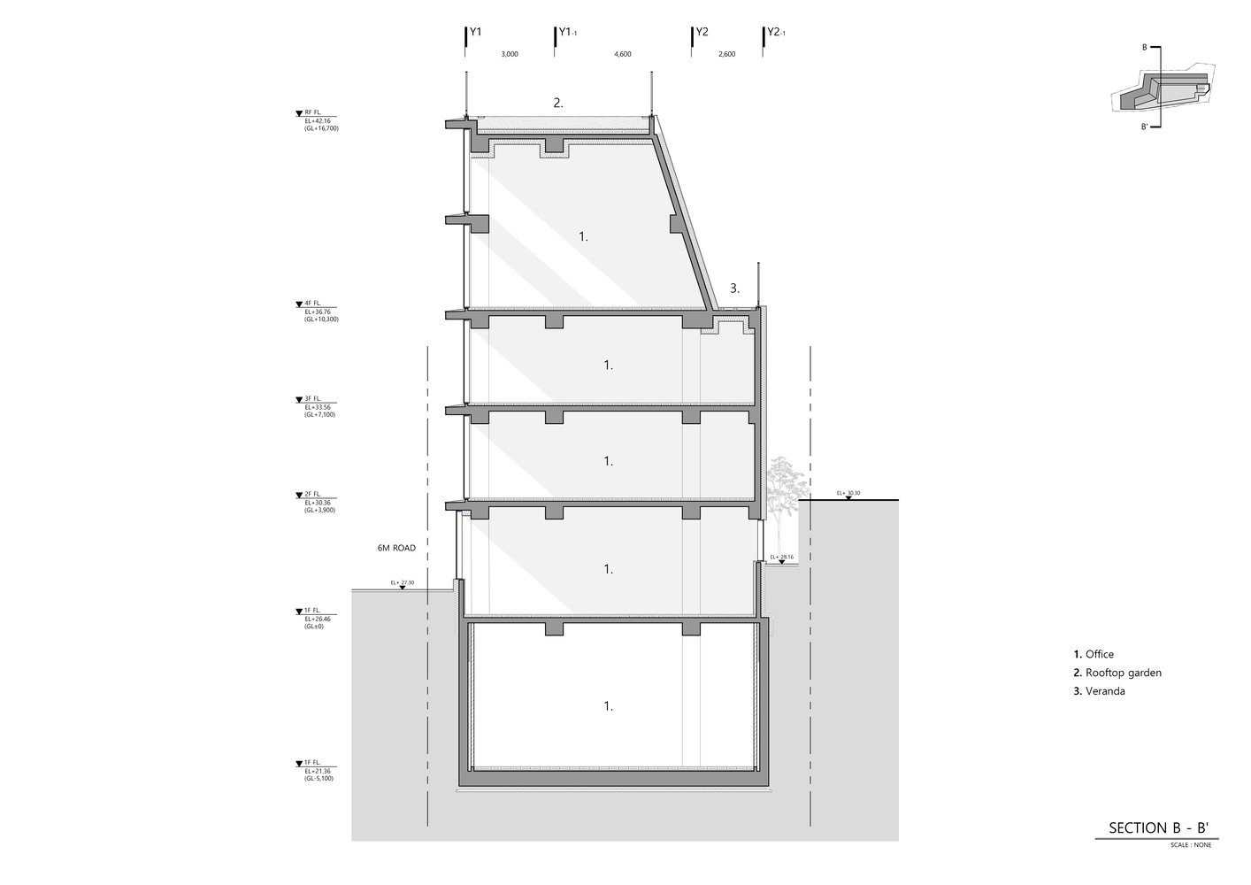
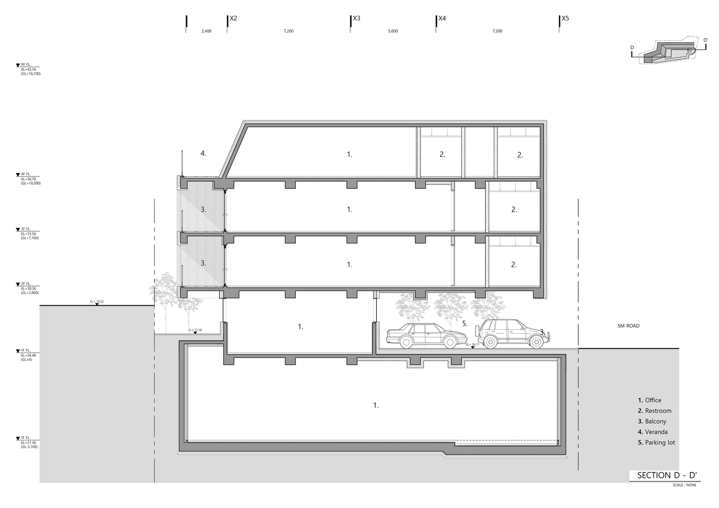
由于场地限制,建筑结构必须狭长,为此,我们引入了一种独特的设计元素,让人联想到音乐中的 “我与变奏 ”概念。这包括在各楼层有规律地插入相互映衬的三角形实心体块,在每个水平分段的楼层上有策略地放置,以提供视觉趣味。这种重复图案的比例经过精心设计,三角形和镜面排列产生了各种反射效果,特别是在中央区域,实心和空心图案相互作用。这为建筑外观增添了多层次的深度,在夜间景观照明下尤为明显。即使从不同角度观察,该建筑也能展现出与众不同的外立面,就像音乐中活泼明快的音符。这样的设计使建筑即使在湍急的车流中也显得格外突出,给人留下了深刻的印象。
该建筑的独特之处在于其新月形的线性结构,与传统的设计方法大相径庭。这种独特的形式允许水平分层,最大限度地加强了与周围景观的视觉联系。该设计没有采用传统的全玻璃幕墙,而是将实体和透明模块图案巧妙地融合在一起。外立面由一系列三角形的实体元素组成,这些元素经过精心调整,形成了视觉上动感十足且具有凝聚力的图案。这种创新的排列方式引入了深度感和复杂性,增强了建筑的美感,确保其在熙熙攘攘的城市环境中吸引人们的目光。
除了引人注目的外观,该建筑还融入了周到的绿化空间,以加强住户与自然的联系。屋顶花园为人们提供了一个宁静的休闲场所,在这里可以俯瞰全景,成为城市景观中的一片宁静绿洲。地下下沉式花园则为人们提供了一个独特、隐蔽的休闲和沉思环境。这些绿地不仅是美观的补充,也是建筑设计不可或缺的组成部分,有助于改善整个建筑的自然采光和通风。
这些自然元素与建筑特色的融合创造了一个和谐宁静的环境。对光线、空间和自然环境的精心考虑,确保了该建筑不仅具有视觉冲击力,还能提升居住者的幸福感和舒适度。此外,大楼的设计还体现了对可持续发展和环境敏感性的承诺。通过融入绿地和创新的立面模式,建筑减少了城市热岛效应,提高了建筑的整体能效。固体和透明元素的动态相互作用也有助于提高建筑的环保性能,减少眩光并优化日光照明。